50.95 m²
359.500 €
2 Zimmer
1. Dachgeschoss - Provisionsfreie 2 Zimmer Wohnung
22.09.2025
Objekt Standort
Brambillagasse , A-1110 Wien
oder
Allgemeine Informationen
Objekt ID: 5387/7528-
VergabeartKauf
-
Kaufpreis359.500 €
-
Wohnfläche50.95 m²
-
Nutzfläche50.95 m²
-
Zimmer2
-
ProvisionProvision bezahlt der Abgeber.
Ausstattung
-
Fahrstuhl
-
Garage
Freiflächen
-
Balkon
-
Terrasse
Beschreibung
1. Dachgeschoss - Provisionsfreie 2 Zimmer Wohnung
PROVISIONSFREI für den Käufer!Alle verfügbaren Wohnungen finden Sie auch auf unserer Homepage.
"Brambilla" - Ihr neues Zuhause, Investment und Vorsorge
Dieses beeindruckende und exklusive Projekt befindet sich im Herzen von Simmering nur einen kurzen Spaziergang von der U3 Station „Simmering“ entfernt. Die Wohnhausanlage befindet sich in einer ruhigen Seitengasse und bietet trotzdem die vollen Vorteile einer urbanen Lage.
Zum Verkauf gelangen 16 freifinanzierte Wohnungen und 4 freifinanzierte Town-Houses.
EIGENGRUND! - KEINE PACHT!
Die voraussichtliche Fertigstellung ist Ende 2026 geplant.
Highlights der Liegenschaft:
Wärmepumpe
PV-Anlage für eine energieeffiziente Wohnhausanlage und niedrigere Betriebskosten
Jede Wohnung mit privater Freifläche! Balkon, Terrasse oder Eigengärten
Echtholzböden
Keramischer Fliesenbelag in den Nassräumen
3 - fach verglaste Kunsstofffenster mit Alu Deckschale
Schließanlage
Personenlift
Tiefgarage
Heizung und Temperierung mittels Fußbodenheizung
Lage: Auto adé
Sollten Sie kein Fahrzeug besitzen, ist das bei dieser Adresse kein Hindernis. Zahlreiche Nahversorger, Dinge des täglichen Bedarfs und die U3 befinden sich unmittelbarer Nähe der Liegenschaft. Für Naturliebhaber und entspannte Stunden im Freien ist die Parkanlage Löwygrube und der Kurpark Oberlaa sowohl mit dem Fahrrad wie auch öffentlich ideal erreichbar.
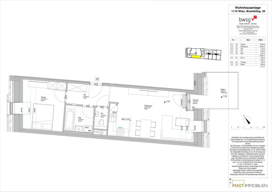
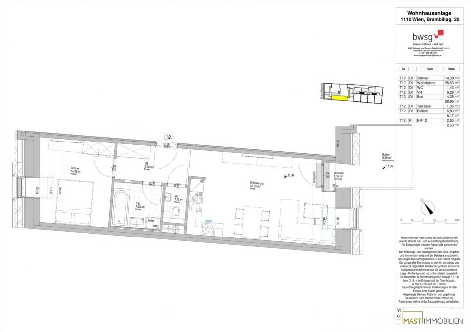
Details Wohnung Top 12:
Die Wohnung befindet sich im 4. Liftstock (1. Dachgeschoss) und verfügt über 50,95 m² Wohnfläche + eine ca. 8,17 m² große Freifläche.
Die Wohnung gliedert sich wie folgt:
Vorraum ca. 5,28 m²
Wohnküche ca. 25,53 m²
Schlafzimmer ca. 14,38 m²
Badezimmer ca. 4,35 m²
Separate Toilette ca. 1,43 m²
Balkon/Terrasse ca. 8,17 m²
Kellerabteil ca. 2,50 m²
Ein Tiefgaragenstellplatz kann um 39.000 € erworben werden. Der Kaufpreis für die Wohnung beträgt für Anleger € 333.161,89 Netto zzgl. 20% USt.
Auf unserer Homepage finden Sie eine Übersicht zu allen verfügbaren 2-Zimmer-Wohnungen sowie nähere Details dazu.
Wir weisen darauf hin, dass zwischen dem Vermittler und dem zu vermittelnden Dritten ein familiäres oder wirtschaftliches Naheverhältnis besteht.Infrastruktur / EntfernungenGesundheitArzt <425mApotheke <150mKlinik <1.900mKrankenhaus <3.575mKinder & SchulenSchule <175mKindergarten <350mUniversität <2.500mHöhere Schule <2.725mNahversorgungSupermarkt <75mBäckerei <125mEinkaufszentrum <875mSonstigeGeldautomat <150mBank <150mPost <125mPolizei <475mVerkehrBus <150mU-Bahn <350mStraßenbahn <375mBahnhof <350mAutobahnanschluss <1.925mAngaben Entfernung Luftlinie / Quelle: OpenStreetMap

Dolores Markovic
MA.ST Immobilien & Design e.U.
dm@mast-immo.at