97.06 m² 648.000 € 4 Zimmer

Energiehit dank Photovoltaik - 4-Zimmer-Erstbezug!

04.09.2023

Objekt Standort

A-1030 Wien

marker Entfernung sowie Fahrtzeit (PKW) zu deinem Standort berechnen
oder
Die Route konnte nicht ermittelt werden

Allgemeine Informationen

Objekt ID: 3167
  • Vergabeart
    Kauf
  • Kaufpreis
    648.000 €
  • Wohnfläche
    97.06 m²
  • Zimmer
    4
  • Provision
    3% des Kaufpreises zzgl. 20% USt.

Ausstattung

  • Klimatisiert
  • Fahrstuhl
  • Abstellraum

Freiflächen

  • Terrasse

Beschreibung

Energiehit dank Photovoltaik - 4-Zimmer-Erstbezug!

Im Falle der Notwendigkeit einer Fremdfinanzierung Ihrer Wunschimmobilie ermittelt unser Wohnbau-Finanzierungsexperte gerne die optimale Finanzierungslösung und findet das passende Zins- und Konditionsangebot für Sie. Er vergleicht die aktuellen Angebote aller relevanten Banken und Bausparkassen. Der Angebotsvergleich kann aus einem Portfolio von über 120 Banken erfolgen. Das Erstgespräch ist für Sie kostenfrei und unverbindlich, gerne auch bei Ihnen vor Ort. So sparen Sie Ihre wertvolle Zeit und erhalten eine professionelle und unabhängige Finanzierungslösung vom Spezialisten. Sprechen Sie uns wegen eines Termins gerne an!

 

Zum Verkauf gelangt eine im Jahr 2020 fertiggestellte und moderne 4-Zimmer Maisonette im Dachgeschoss in der Nähe des Schweizer Gartens.

Die Wohnfläche dieses Objekts erstreckt sich über zwei Etagen, auf einer Fläche von ca. 97,06 m² und teilt sich wie folgt auf: Vorraum, Wohnzimmer, drei Zimmer, Küche mit Essplatz, Badezimmer, Toilette, Abstellraum. Das Highlight der Immobilie sind zweifelsohne die Terrasse und das Flachdach. Von dort aus genießen Sie einen traumhaften Blick über die Dächer Wiens.

Die erste Ebene hat eine Größe von ca. 54,85 m² und ist auf ein Vorraum, drei Zimmer, ein Badezimmer, eine Toilette, und ein Abstellraum aufgeteilt. Die drei Zimmer haben eine Fläche von ca. 12,73 m², 11,18 m² und 7,57 m² und haben direkten Zugang zur erholsamen Terrasse. Das Badezimmer verfügt über eine natürliche Belichtung und ist mit einer Badewanne, einer Dusche und einem Waschbecken ausgestattet. Die Toilette mit Handwaschbecken befindet sich separat vom Badezimmer.

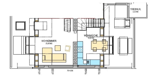
Die zweite Ebene erstreckt sich über 42,21 m². Hier befindet sich das weitläufige Wohnzimmer und eine separate Wohnküche. Durch den offen gestalteten Grundriss bietet die zweite Ebene genügend Raum für individuelle Gestaltungsmöglichkeit. Vom Wohnzimmer gelangt man auf das Highlight der Wohnung. Das ca. 14,74 m² große Flachdach ist modern gestaltet und bietet genügend Platz für gesellige Stunden oder als entspannter Rückzugsort und Wohlfühl-Oase.

Durch die Errichtung einer Photovoltaikanlage am Dach ist jede Wohnung innovativ klimaneutral. Die Photovoltaikanlage speist jeweils eine Luftwärmepumpe (reversibel), die das Warmwasser, die Fußbodenheizung und die Fußbodenkühlung im Sommer versorgt. Eine Klimaanlagen ist daher nicht erforderlich und somit auch nicht geplant. Auch ein ca. 2,2m² großes Kellerabteil ist vorhanden.

Die monatlichen Kosten setzen sich voraussichtlich wie folgt zusammen:
Betriebskosten: ca. € 1,80/m²
Liftbetriebskosten: ca. € 0,30/m²
Rep. Fonds: ca. 0,25/m²

Für Naturliebhaber bietet der nahegelegene Schweizer Garten sowie der wunderschöne Park des Schloss Belvedere ausreichend Platz zum Erholen. Die Infrastruktur ist sehr gut. Folgende Geschäfte des täglichen Bedarfs sind schnell zu erreichen: Penny, Hofer, Billa, Eurospar, Trafik, div. Cafés und Restaurants. Folgende öffentliche Verkehrsmittel befinden sich in der Nähe: Straßenbahnlinien O, 1, 18 und der Hauptbahnhof. Für nähere Informationen zur Infrastruktur, fordern Sie bitte unser Exposé an.

Überzeugen Sie sich selbst von dieser attraktiven Immobilie!

Für Besichtigungen und nähere Informationen stehen wir Ihnen gerne zur Verfügung!

Frau Marie-Louise Eisenburger
national - Tel: 0676 605 9800
international - Tel: +43 676 605 9800
e-mail: eisenburger@lifestyle-properties.at

 

 
Wir weisen darauf hin, dass zwischen dem Vermittler und dem zu vermittelnden Dritten ein familiäres oder wirtschaftliches Naheverhältnis besteht.
Der Vermittler ist als Doppelmakler tätig.  Infrastruktur / EntfernungenGesundheitArzt <500mApotheke <500mKlinik <1.000mKrankenhaus <1.000mKinder & SchulenSchule <500mKindergarten <500mUniversität <1.000mHöhere Schule <1.000mNahversorgungSupermarkt <500mBäckerei <500mEinkaufszentrum <1.000mSonstigeGeldautomat <500mBank <500mPost <1.000mPolizei <1.000mVerkehrBus <500mU-Bahn <1.500mStraßenbahn <500mBahnhof <1.000mAutobahnanschluss <1.500mAngaben Entfernung Luftlinie / Quelle: OpenStreetMap
Agent Name

Marie-Louise Eisenburger

Energie/Heizung

Heizungsart: Etagenheizung

Befeuerung:

HWB (kWh/m²/Jahr): 34.7

HWB Energieklasse: B

fGEE: 0.75

Anbieter


Anfragen

Ergebnisse werden geladen ...