268.51 m² 365.000 €

Neuer Preis! Baubewilligtes Dachgeschoss beim Meiselmarkt in Bestlage! Schönes Altbauhaus + Beste Anbindung und Infrastruktur + Ruhige Seitengasse! Jetzt zugreifen!

07.11.2025

Objekt Standort

Schuselkagasse , A-1150 Wien

marker Entfernung sowie Fahrtzeit (PKW) zu deinem Standort berechnen
oder
Die Route konnte nicht ermittelt werden

Allgemeine Informationen

Objekt ID: 289463
  • Vergabeart
    Kauf
  • Kaufpreis
    365.000 €
  • Wohnfläche
    268.51 m²
  • Nutzfläche
    281.64 m²
  • Provision
    3% des Kaufpreises zzgl. 20% USt.

Beschreibung

Neuer Preis! Baubewilligtes Dachgeschoss beim Meiselmarkt in Bestlage! Schönes Altbauhaus + Beste Anbindung und Infrastruktur + Ruhige Seitengasse! Jetzt zugreifen!

Neuer Preis! Baubewilligtes Dachgeschoss beim Meiselmarkt in Bestlage! Schönes Altbauhaus + Beste Anbindung und Infrastruktur + Ruhige Seitengasse! Jetzt zugreifen!


 


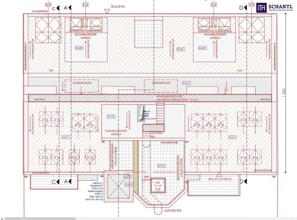
Zum Verkauf steht ein baubewilligter Rohdachboden eines schönen Altbaugebäudes. Der Käufer des Rohdachbodens verpflichtet sich zur Lifterrichtung.


Erzielbare Wohnnutzfläche: ca. 268,51m² + Terrassen: ca. 26,26m²


Kaufpreis: € 365.000.-


Bewilligt wurde ein Dachgeschossausbau im 1. und 2. Dachgeschoss des Gebäudes zur Schaffung von zwei Maisonettewohnungen, inkl. Freiflächen in Form von Terrassen. 


Erzielbare Fläche im Dachgeschoß (1. DG + 2. DG) ca. 268,51 m², zuzüglich Terrassen ca. 26,26 m², Erzielbare Fläche gewichtet daher ca. 281,64 m²


Folgende Wohnungen haben bereits glückliche, neue Eigentümer: TOP 1, TOP 2, TOP 3, TOP 5, TOP 7, TOP 6, TOP 13, TOP 8


Bei Interesse stellen wir Ihnen sehr gerne sämtliche weiterführenden Unterlagen zur Verfügung!


www.schantl-ith.at


Hinweis gemäß Energieausweisvorlagegesetz: Ein Energieausweis wurde vom Eigentümer bzw. Verkäufer, nach unserer Aufklärung über die generell geltende Vorlagepflicht, sowie Aufforderung zu seiner Erstellung noch nicht vorgelegt. Daher gilt zumindest eine dem Alter und der Art des Gebäudes entsprechende Gesamtenergieeffizienz als vereinbart. Wir übernehmen keinerlei Gewähr oder Haftung für die tatsächliche Energieeffizienz der angebotenen Immobilie.


Wir weisen darauf hin, dass zwischen dem Vermittler und dem zu vermittelnden Dritten ein familiäres oder wirtschaftliches Naheverhältnis besteht.


Der Vermittler ist als Doppelmakler tätig.


Infrastruktur / Entfernungen

Gesundheit
Arzt <250m
Apotheke <250m
Klinik <1.250m
Krankenhaus <2.000m
Kinder & Schulen
Schule <250m
Kindergarten <500m
Universität <750m
Höhere Schule <1.000m
Nahversorgung
Supermarkt <250m
Bäckerei <250m
Einkaufszentrum <250m
Sonstige
Geldautomat <250m
Bank <250m
Post <250m
Polizei <250m
Verkehr
Bus <250m
U-Bahn <250m
Straßenbahn <250m
Bahnhof <250m
Autobahnanschluss <4.750m
Angaben Entfernung Luftlinie / Quelle: OpenStreetMap

Agent Name

Samir Agha-Schantl

Schantl ITH Immobilientreuhand GmbH

samir.agha-schantl@schantl-ith.at

Anbieter


Anfragen

Ergebnisse werden geladen ...