180.11 m² 2.300.000 € 6 Zimmer

Ein einzigartiges Wohnensemble – so selten, dass es kein zweites gibt: 2 Einheiten oder eine große Luxus-Einheit

19.01.2026

Objekt Standort

A-1220 Wien

marker Entfernung sowie Fahrtzeit (PKW) zu deinem Standort berechnen
oder
Die Route konnte nicht ermittelt werden

Allgemeine Informationen

Objekt ID: 6633
  • Vergabeart
    Kauf
  • Kaufpreis
    2.300.000 €
  • Wohnfläche
    180.11 m²
  • Zimmer
    6

Ausstattung

  • Einbauküche
  • Klimatisiert
  • Fahrstuhl
  • Barrierefrei
  • Garage

Beschreibung

Ein einzigartiges Wohnensemble – so selten, dass es kein zweites gibt: 2 Einheiten oder eine große Luxus-Einheit

Willkommen in einer der begehrtesten Wohnanlagen der Donaustadt – einem modernen Landmark-Gebäude mit 33 Stockwerken, erstklassiger Architektur und einzigartigen Annehmlichkeiten.
Hier haben Sie die seltene Möglichkeit, ein komplettes Wohnensemble im 22. Stock zu erwerben, bestehend aus zwei separaten, hochwertig ausgestatteten Eigentumswohnungen, oder die gemeinsam eine außergewöhnliche Privatsphäre und vielseitige Nutzung bieten.


Ob als großzügiges Luxus-Penthouse für den Eigenbedarf, als Wohnen & Arbeiten, Mehrgenerationen-Konzept, Teil-Vermietung, Kapitalanlage oder spätere Weiterveräußerung – dieses Objekt eröffnet Ihnen eine seltene Flexibilität, die es so am Markt kaum gibt.



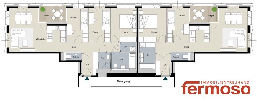
Das Wohnensemble im Überblick


Sie erwerben hier exklusiv zwei vollwertige Wohneinheiten im selben Stockwerk – direkt nebeneinander – die auf Wunsch wie eine große Wohnung genutzt werden können.


Einheit 1 – 3 Zimmer
    •    ca. 80 m²
    •    perfekt für Eigennutzung, Homeoffice oder Vermietung


Einheit 2 – 4 Zimmer
    •    großzügige Familienwohnung oder ideale Anlagemöglichkeit


Gesamtfläche gemeinsam: großzügig, modern, lichtdurchflutet
Flexibel gestaltbar: zusammenlegbar oder getrennt nutzbar


Die Nutzungsmöglichkeiten sind grenzenlos – ein seltenes Investment mit maximaler Freiheit.



Highlights der Ausstattung
    •    Fußbodenheizung
    •    Deckenkühlung in allen Räumen
    •    Nachhaltige Bauweise mit PV-Anlage
    •    Höchste Energieeffizienz – Betriebskosten nur ca. EUR 200
    •    Aufzug direkt bis zur Wohnungstüre
    •    Moderne Sicherheits- & Gegensprechanlage
    •    Großzügige Fahrrad-, Kinderwagen- und Lagerräume
    •    Hundewaschraum
    •    Fahrradwerkstatt
    •    Waschküche
    •    Gemeinschaftsraum mit Küche
    •    Verdunstungskühlung zur Temperatursenkung
    •    Sauna (nur € 6 Buchungsgebühr)
    •    Fitnessraum
    •    Rooftop-Pool mit Panoramablick
    •    Öffentliche WCs im EG und im Community-Stock
    •    Müllraum & praktische Infrastruktur im Haus
    •    2 KFZ-Stellplätze mit E-Ladestation (Nr. 72 & 74)



Lage – exklusiv, urban & perfekt angebunden
    •    Nur 5 Minuten Fußweg zur U1
    •    ca. 5 Minuten bis zur Innenstadt
    •    5 Busstopps bis zum Flughafen
    •    Donauzentrum mit 250 Shops in unmittelbarer Nähe
    •    Ärzte, Apotheken & Polizei im direkten Umfeld
    •    Internationale Schule fußläufig
    •    Grünflächen, Freizeitmöglichkeiten & Donauinsel schnell erreichbar



Preis & Investment-Vorteile
    •    Gesamtpreis Wohnensemble:
    •    Einheit 1 (3 Zimmer): € 1.000.000
    •    Einheit 2 (4 Zimmer): € 1.300.000
    •    KFZ-Stellplätze: € 50.000 je Stellplatz
    •    Gesamt: Exklusiver Wohnwert + Top-Investment


Steuerliche Vorteile
    •    Bei Eigennutzung: ca. € 280.000 Steuer
    •    Bei Vermietung: 20 Jahre steuerfrei laut geltender Regelung
    •    Mieteinnahmen möglich: über ca. € 4.500 pro Einheit


Perfekt für Smart-Investoren, Familien, Unternehmer oder internationale Käufer.



Fazit – Eine Chance, die es so kaum gibt


Ein komplettes Stockwerk-Ensemble mit zwei Einheiten, luxuriöser Ausstattung, Rooftop-Pool, perfekter Infrastruktur und maximaler Flexibilität.
Ob zusammengelegt als große Traumwohnung oder als getrennte Investment-Einheiten – Sie profitieren in jedem Fall.


Dieses Angebot ist am Markt extrem selten – jetzt sichern, bevor es weg ist!
 

Noch nichts gefunden? Wir informieren Sie über geeignete Immobilienangebote noch vor allen anderen.
Legen Sie jetzt Ihren individuellen Suchagenten unter folgendem Link an. Wir schicken Ihnen passende Immobilien exklusiv vorab zu.
Suchagent anlegen - https://fermoso-immobilientreuhand.service.immo/registrieren/de


Wir weisen darauf hin, dass zwischen dem Vermittler und dem zu vermittelnden Dritten ein familiäres oder wirtschaftliches Naheverhältnis besteht.


Infrastruktur / Entfernungen

Gesundheit
Arzt <500m
Apotheke <500m
Klinik <2.500m
Krankenhaus <3.500m
Kinder & Schulen
Schule <500m
Kindergarten <500m
Universität <1.500m
Höhere Schule <1.500m
Nahversorgung
Supermarkt <500m
Bäckerei <500m
Einkaufszentrum <500m
Sonstige
Geldautomat <500m
Bank <500m
Post <500m
Polizei <500m
Verkehr
Bus <500m
U-Bahn <500m
Straßenbahn <500m
Bahnhof <500m
Autobahnanschluss <2.500m
Angaben Entfernung Luftlinie / Quelle: OpenStreetMap

Fermoso Immobilientreuhand GmbH
Agent Name

Ilksev Karakas

Fermoso Immobilientreuhand GmbH

ik@fermoso.at

Energie/Heizung

Heizungsart: Zentralheizung

HWB (kWh/m²/Jahr): 17.63

HWB Energieklasse: A

fGEE: 807

fGEE Energieklasse: A

Anbieter


Anfragen

Ergebnisse werden geladen ...