91.6 m² 1.288,81 € 3 Zimmer

Büro/Ordination in der Josefstadt !

29.11.2024

Objekt Standort

A-1080 Wien

marker Entfernung sowie Fahrtzeit (PKW) zu deinem Standort berechnen
oder
Die Route konnte nicht ermittelt werden

Allgemeine Informationen

Objekt ID: 1094
  • Vergabeart
    Miete
  • monatliche kosten
    1.288,81 €
  • Kaution
    4870€
  • Nutzfläche
    91.6 m²
  • Zimmer
    3
  • Provision
    3 Bruttomonatsmieten zzgl. 20% USt.

Beschreibung

Büro/Ordination in der Josefstadt !

Im Herzen der Josefstadt gelangt ab sofort in einem denkmalgeschützten Haus diese Fläche im Erdgeschoss zur unbefristeten Vermietung. 

Dieses Objekt im Ausmaß von ca. 92 m² kann als Ordination oder Büro genutzt werden und verfügt über einen straßenseitigen Eingang.
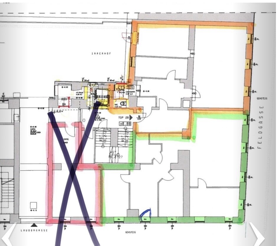
Siehe auf der beiliegenden Planskizze, die grün markierte Fläche.
Optional steht auch die Nachbarfläche mit ca. 85 m² zur Verfügung. 

Eine branchenfreie Vermietung ist möglich, wir denken an eine Ordination, Architekten, Werbeagentur oder ähnliche Berufe.

Ebenso ist eine Vermietung an Personen möglich, die ihre unternehmerischen Umsätze aus einer unechten Umsatzsteuerbefreiung gemäß § 6 (1) 27 UStG, lukrieren. Sollte dies nicht der Fall sein, wird die Umsatzsteuer in der Höhe von 20 % hinzugerechnet.


Am Plan ist die Fläche 2a mit ca. 92 m² grün markiert dargestellt.
Die Fläche 2c mit ca. 85 m² orange markiert.



Raumaufteilung Top 2a:

- 3 Räume
- 1 Küche
- 1 Vorraum
- 2 Toiletten

Infrastruktur im Gebäude:

- Im Haus gibt es einen Telekabel- und Glasfaseranschluss.
- Fernwärme
- Rad- und Kinderwagenabstellraum


Umgebung/Infrastruktur:

- Perfekte Anbindung an den öffentlichen Verkehr.
- In unmittelbarer Nähe befinden sich zahlreiche Geschäfte des täglichen Bedarfs, Restaurants, und Kaffeehäuser.
- Zu Fuß ist der Hamerlingpark in 2 Minuten erreichbar. 

Öffentliche Verkehrsmittel:

- U-Bahnlinie 6, Station: Josefstädter Straße
- Straßenbahnlinien: 2, 12, 5, 43, 44
- Buslinie: 13A

Laut Energieausweis vom 3.2.2025:

weist dieser einen Heizwärmebedarf von 161,8 kWh/m² pro Jahr auf.

 

Aufgrund der bereits seit 2014 geltenden EU-Richtlinien zum Fernabsatz- und Auswärtsgeschäfte-Gesetz bitten wir um Ihr Verständnis, dass wir Ihnen die Objekt-Unterlagen erst nach Ihrer Bestätigung, dass Sie unser Tätigwerden wünschen und über Ihre Rücktrittsrechte aufgeklärt wurden, zusenden können.
Bevor wir Ihnen die Unterlagen zuschicken, erhalten Sie eine Mail in der Sie dies bestätigen müssen.
Wir bedanken uns für Ihr Vertrauen!
Wir weisen darauf hin, dass zwischen dem Vermittler und dem zu vermittelnden Dritten ein familiäres oder wirtschaftliches Naheverhältnis besteht.
Der Vermittler ist als Doppelmakler tätig.Infrastruktur / EntfernungenGesundheitArzt <500mApotheke <500mKlinik <500mKrankenhaus <500mKinder & SchulenSchule <500mKindergarten <500mUniversität <500mHöhere Schule <500mNahversorgungSupermarkt <500mBäckerei <500mEinkaufszentrum <1.500mSonstigeGeldautomat <500mBank <500mPost <500mPolizei <500mVerkehrBus <500mU-Bahn <500mStraßenbahn <500mBahnhof <500mAutobahnanschluss <3.500mAngaben Entfernung Luftlinie / Quelle: OpenStreetMap
Agent Name

Andrea Jäger

IMMOBILIENJÄGER

office@immobilienjaeger.at

Energie/Heizung

Heizungsart: Fernwärme

Befeuerung: Fernwärme

Anbieter


Anfragen

Ergebnisse werden geladen ...