Da ist er – Ihr Wiener Wohntraum! Altbaujuwel im letzten Stock mit Balkon & Klima – jetzt zugreifen!
Objekt Standort
Reinprechtsdorfer Straße , A-1050 Wien
Allgemeine Informationen
Objekt ID: 288931-
VergabeartKauf
-
Kaufpreis530.000 €
-
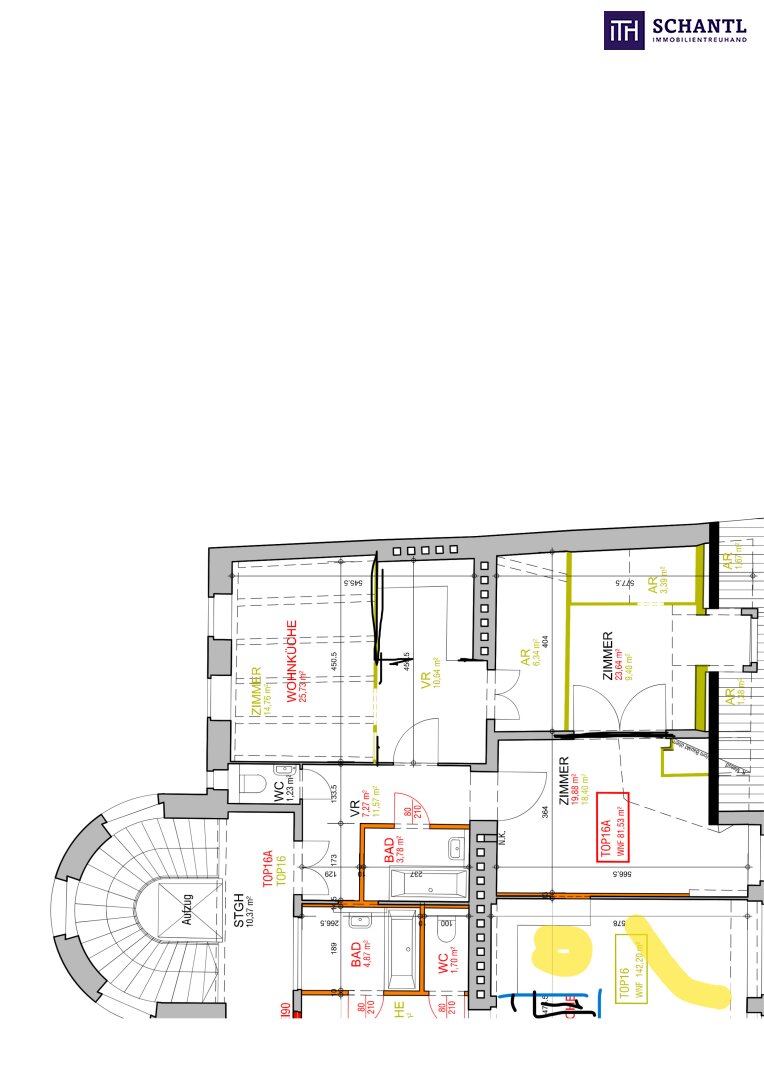
Wohnfläche81.53 m²
-
Nutzfläche85.28 m²
-
Zimmer3
Ausstattung
-
Klimatisiert
-
Fahrstuhl
-
Barrierefrei
-
Abstellraum
Beschreibung
Da ist er – Ihr Wiener Wohntraum! Altbaujuwel im letzten Stock mit Balkon & Klima – jetzt zugreifen!
Da ist er – Ihr Wiener Wohntraum! Altbaujuwel im letzten Stock mit Balkon & Klima – jetzt zugreifen!
81 m² Traumwohnung mit neuem Balkon, Klimaanlage & Top-Grundriss
Stellen Sie sich vor: Sie öffnen die Türe zu Ihrer neuen Wohnung im letzten Stockwerk – hell, ruhig, mit hohen Decken und dem besonderen Flair eines echten Wiener Altbaus.
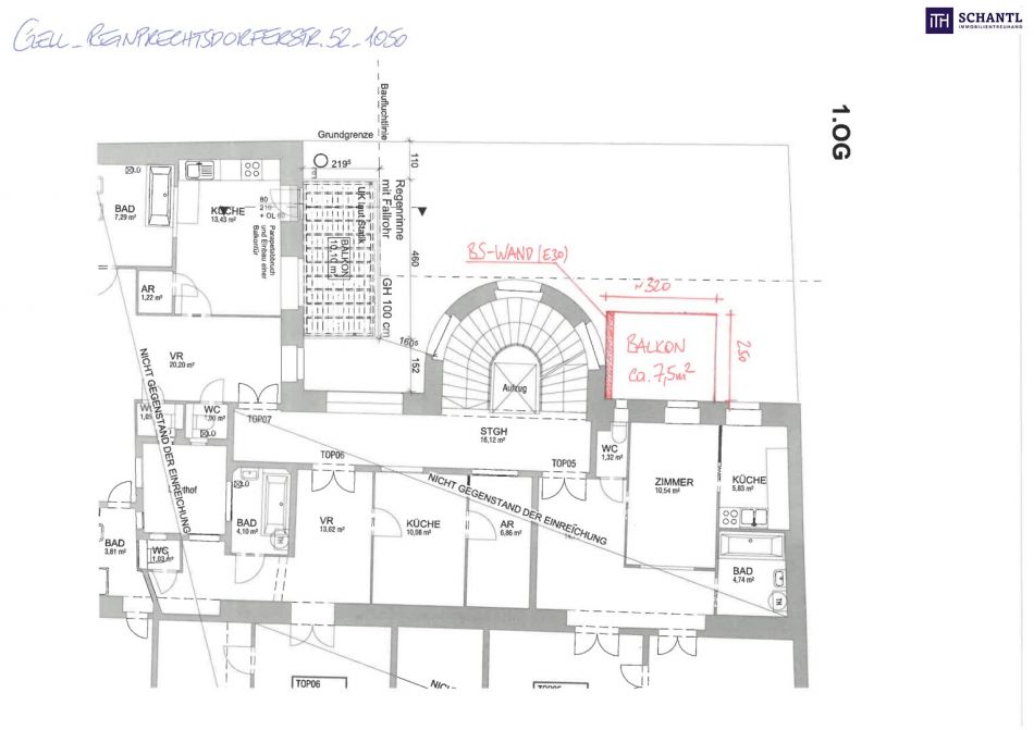
Und das absolute Highlight: Ihre großzügige Wohnküche erhält einen eigenen Balkon Richtung Innenhof – bereits genehmigt und vom Verkäufer errichtet. Ein echtes Stück Lebensqualität, das im Altbau nur selten zu finden ist!
Highlights auf einen Blick:
81,63 m² Wohnfläche im letzten Stock (Lift vorhanden)
2 Schlafzimmer – ideal für Paare, kleine Familien oder Homeoffice
Großzügige Wohnküche mit Zugang zum neuen Balkon (ca. 7,5 m², genehmigt & vom Verkäufer errichtet)
Separates Badezimmer mit Badewanne & separates WC
Charmantes Vorzimmer/Entree mit klassischem Altbaucharme
Praktischer Abstellraum für zusätzlichen Stauraum
Klimaanlage wird vom Verkäufer eingebaut – inklusive im Kaufpreis!
Frisch ausgemalt vor Übergabe
Kaufpreis: € 530.000,-
(+ € 30.000,- für den genehmigten und vom Verkäufer errichteten Balkon)
Solche Altbauwohnungen mit Balkon im letzten Stock kommen äußerst selten auf den Markt – und sind entsprechend gefragt.
? Vereinbaren Sie noch heute Ihren Besichtigungstermin, bevor es jemand anderes tut!
Jetzt besichtigen – bevor es zu spät ist!
Bei konkretem Interesse senden wir Ihnen sehr gerne weiterführende Dokumente zu, wie:
o Grundbuchauszug
o Wohnungseigentumsvertrag
o Nutzwertgutachten
o Eigentümerversammlungsprotokoll (Falls vorhanden) etc...
www.schantl-ith.at
Infrastruktur / Entfernungen
Gesundheit
Arzt <250m
Apotheke <250m
Klinik <750m
Krankenhaus <750m
Kinder & Schulen
Schule <250m
Kindergarten <250m
Universität <750m
Höhere Schule <750m
Nahversorgung
Supermarkt <250m
Bäckerei <250m
Einkaufszentrum <1.000m
Sonstige
Geldautomat <250m
Bank <250m
Post <500m
Polizei <500m
Verkehr
Bus <250m
U-Bahn <250m
Straßenbahn <750m
Bahnhof <750m
Autobahnanschluss <3.500m
Angaben Entfernung Luftlinie / Quelle: OpenStreetMap

Dejan Ljepoja, MBA
Schantl ITH Immobilientreuhand GmbH
dejan.ljepoja@schantl-ith.atEnergie/Heizung
Heizungsart: Etagenheizung
Befeuerung: Gas
HWB (kWh/m²/Jahr): 128
HWB Energieklasse: D
fGEE: 2.51
fGEE Energieklasse: E