Exklusiv: Stilvolle Zinsvilla in Währing mit drei autarken Wohneinheiten
Objekt Standort
A-1180 Wien
Allgemeine Informationen
Objekt ID: 288492-
VergabeartKauf
-
Kaufpreis3.250.000 €
-
Wohnfläche505 m²
-
Nutzfläche525 m²
-
Grundfläche378 m²
-
Zimmer13
-
Provision3% des Kaufpreises zzgl. 20% USt.
Ausstattung
-
Einbauküche
-
Klimatisiert
-
Sauna
-
Rolladen
-
Abstellraum
Freiflächen
-
Garten
-
Terrasse
-
Wintergarten
Beschreibung
Exklusiv: Stilvolle Zinsvilla in Währing mit drei autarken Wohneinheiten
Exklusiv: Stilvolle Zinsvilla in Währing mit drei autarken Wohneinheiten
In einer der exklusivsten Lagen Wiens präsentiert sich diese prachtvolle Gründerzeitvilla als außergewöhnliches Gesamtobjekt mit ca. 505 m² Wohnfläche. Auf vier Ebenen, aufgeteilt in drei autarke Wohneinheiten, eröffnet sich ein flexibles Raumkonzept, das sich ideal für Familien, Mehrgenerationenwohnen, eine Kombination aus Wohnen und Praxis/Büro oder als Investmentobjekt eignet.
Diese Immobilie eröffnet vielfältige Nutzungsmöglichkeiten – in Alleineigentum und nur als Gesamteinheit zu erwerben.
Highlights und Luxuriöse Ausstattung auf einen Blick
Ca. 505 m² Wohnfläche inkl. Wellness- & Nebenräume im Souterrain
Drei autarke Wohneinheiten (Top 1–3)
13 großzügige, ruhige Zimmer + Nebenräume
Außenliegender Lift – inkl. direktem Zugang ins DG
Edle Natursteinböden in den repräsentativen Bereichen
Elegantes Fischgrätparkett aus Echtholz in den Wohnräumen
Fußbodenheizung in allen Wohneinheiten
Thermen je Top separat
Isolierverglaste Holz-Alu-Fenster
Großzügige Raumhöhen mit klassischen Stilelementen
Designbäder mit Walk-in-Duschen, freistehenden Badewannen und hochwertigen Armaturen, hochwertiges Naturstein-Waschbecken im SPA-Bereich
Maßgefertigte Einbauschränke und elegante Innenausstattung - Stilvolle Möblierung auf Wunsch inklusive
Modernste Haustechnik, u.a. mit Video-Gegensprechanlage und teilweiser Klimatisierung
Großzügige Terrassenflächen
Dachterrasse mit Wien- und Kahlenbergblick
Trennbarkeit einzelner Tops für Wohnen und Arbeiten möglich
Schlafzimmer mit luxuriösen Bädern en suite
Uneinsehbarer, pflegeleichter Garten mit ca 101 m²
Historische Details wie Gewölbedecke im Souterrain, Kaminumrahmungen aus echtem Marmor, stuckverzierte Fassaden
Repräsentatives Entree, prachtvolles Stiegenhaus, Lift modern verglast mit Blick ins Grüne
Ideale Infrastruktur und Grünruhelage
Möglichkeit zur Parifizierung und Abverkauf einzelner Tops (nachträglich)
Parkmöglichkeiten direkt vor dem Haus
Aufteilung im Detail
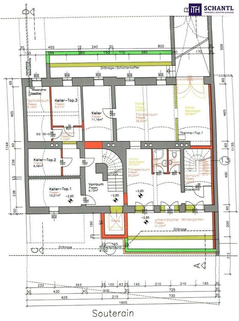
Top 1 – Erdgeschoss + Souterrain (ca. 195 m²)
Diese großzügige Einheit mit bis zu 5 Zimmern verbindet klassische Wohnbereiche mit Erholungs- und Arbeitszonen:
4 Zimmer + 2 Bäder im Hochparterre
zusätzlich: unterirdischer Wintergarten, Sauna, Badezimmer, Whirlpool und Fitnessräume, Waschraum, Keller, Garten mit separatem Zugang
edle weiße Feinsteinböden, historische Flügeltüren, Tageslichtbad
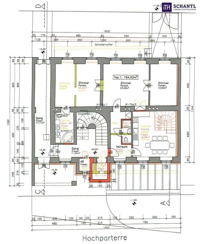
Top 2 – 1. Obergeschoss (ca. 133 m²)
Bel Etage mit Eleganz & Weite
4 Schlafzimmer, 2 Bäder, Schrankraum, Küche, verglaster Wintergarten
bis zu 3,60 m Raumhöhe
Stuckdecken, Kristallluster, Echtholzparkett
Top 2 verfügt über zwei gegenüberliegende, separat zugängliche Eingangsbereiche, was eine elegante Grundlage für eine flexible Nutzung schafft – sei es als großzügige Wohneinheit mit Bürotrakt oder durch eine mögliche Teilung in zwei unabhängige Einheiten
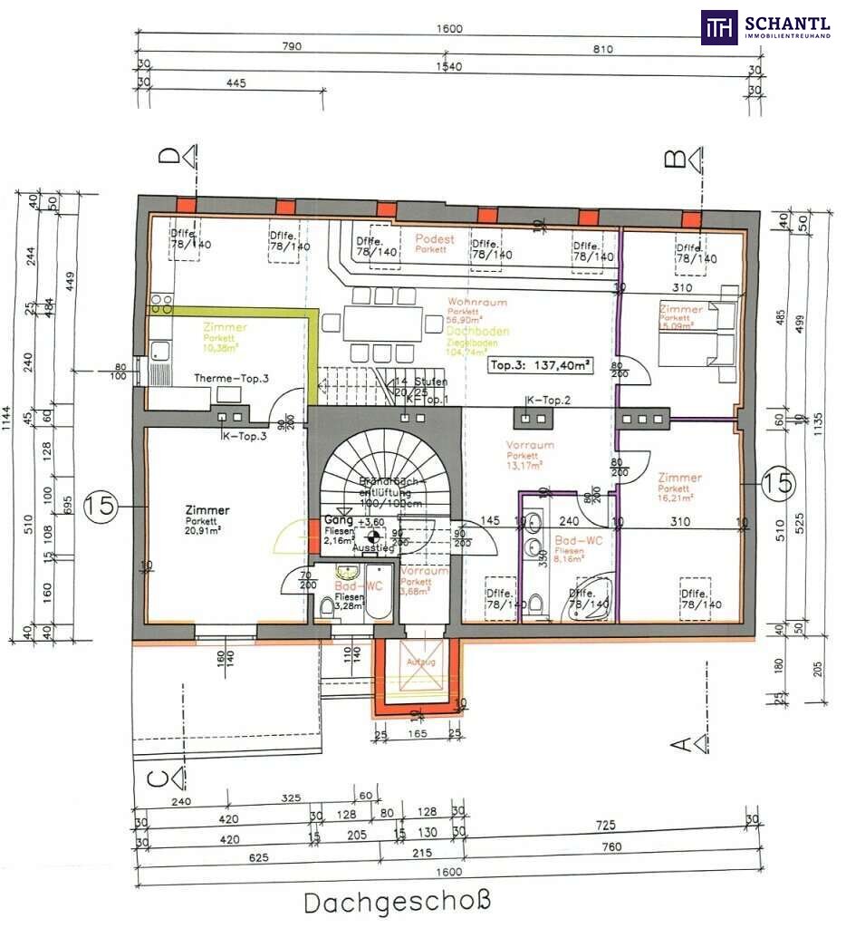
Top 3 – Dachgeschoss (ca. 137 m²)
Luxuriöser Rückzugsort mit modernem Flair:
direkter Liftzugang in die Wohnung
weitläufiger Wohn-Essbereich mit offenem Küchenkonzept
4 Zimmer, 2 Bäder
Die private Dachterrasse eröffnet einen herrlichen Ausblick über Wien bis hin zum Kahlenberg
Eichenparkett, maßgefertigte Tischlerküche, Klimaanlage
Loftartiger Wohn-/Essbereich mit offener Küche
Großzügiges Atelier/Büro
Das Dachgeschoss verfügt bereits über einen direkten Liftzugang sowie einen Zugang über das Stiegenhaus; ein weiterer separater Zugang über das bestehende Stiegenhaus ließe sich bei Bedarf unkompliziert realisieren –– eine architektonisch elegante Möglichkeit, die Einheit bei Bedarf in zwei separate Wohnungen zu teilen
Eine Rarität am Wiener Immobilienmarkt – klassisch, edel, flexibel. Diese Villa überzeugt nicht nur durch ihr charmantes Erscheinungsbild, sondern auch durch ihren Zustand, ihre Nutzungsmöglichkeiten und ihre außergewöhnlich gute Lage. Ob als großzügiger Familiensitz, elegante Firmenadresse oder wertbeständige Anlage – hier eröffnen sich Perspektiven, die ebenso vielseitig wie einzigartig sind.
Kaufpreis: €3.250.000
Bezug: nach Vereinbarung
www.schantl-ith.at
Bei konkretem Interesse senden wir Ihnen sehr gerne weiterführende Dokumente zu.
Unser Service für Sie: Wenn Sie sich für diese Immobilie entschieden haben, begleiten wir Sie gerne vom Kaufanbot weg inkl. Klärung von Sonderwünschen und der Vertragsunterzeichnung über die Wohnungsübergabe bis hin zu diversen Ummeldungen wie Strom und Gas. Entsprechende Formulare oder auch Meldezettel stellen wir Ihnen sehr gerne zur Verfügung.
Gerne unterstützen wir Sie auch bei der Finanzierung Ihres Traumobjekts und finden mit unseren langjährigen Partnern die besten Konditionen für Sie.
Vereinbaren Sie noch heute einen Termin, wir beraten Sie gerne!
Der Vermittler ist als Doppelmakler tätig.
Infrastruktur / Entfernungen
Gesundheit
Arzt <500m
Apotheke <500m
Klinik <1.000m
Krankenhaus <2.000m
Kinder & Schulen
Schule <500m
Kindergarten <500m
Universität <1.000m
Höhere Schule <500m
Nahversorgung
Supermarkt <500m
Bäckerei <500m
Einkaufszentrum <1.500m
Sonstige
Geldautomat <500m
Bank <500m
Post <1.000m
Polizei <1.000m
Verkehr
Bus <500m
U-Bahn <1.500m
Straßenbahn <500m
Bahnhof <500m
Autobahnanschluss <3.000m
Angaben Entfernung Luftlinie / Quelle: OpenStreetMap

Hanna Herzenstein
Schantl ITH Immobilientreuhand GmbH
hanna.herzenstein@schantl-ith.atEnergie/Heizung
Heizungsart: Etagenheizung
Befeuerung: Gas
HWB (kWh/m²/Jahr): 78.37
HWB Energieklasse: C