141.77 m² 949.000 € 4.5 Zimmer

Ein Altbau, der verzaubert! Umfangreich und hochwertig sanierte Wohnschönheit mit großem Balkon und effizienter Erdwärme! Viel Privatsphäre + Viel Raum + Viel Grün!

19.01.2026

Objekt Standort

Fenzlgasse , A-1140 Wien

marker Entfernung sowie Fahrtzeit (PKW) zu deinem Standort berechnen
oder
Die Route konnte nicht ermittelt werden

Allgemeine Informationen

Objekt ID: 293198
  • Vergabeart
    Kauf
  • Kaufpreis
    949.000 €
  • Wohnfläche
    141.77 m²
  • Nutzfläche
    147.89 m²
  • Zimmer
    4.5
  • Provision
    3% des Kaufpreises zzgl. 20% USt.

Ausstattung

  • Fahrstuhl
  • Barrierefrei
  • Abstellraum

Freiflächen

  • Balkon
  • Garten

Beschreibung

Ein Altbau, der verzaubert! Umfangreich und hochwertig sanierte Wohnschönheit mit großem Balkon und effizienter Erdwärme! Viel Privatsphäre + Viel Raum + Viel Grün!

Ein Altbau, der verzaubert! Umfangreich und hochwertig sanierte Wohnschönheit mit großem Balkon und effizienter Erdwärme! Viel Privatsphäre + Viel Raum + Viel Grün!


Happy family... Familienparadies mit großem Balkon und Blick ins Grüne sowie jeder Menge Lebensqualität!


Mit viel Liebe zum Detail saniert / Beste Qualität und Verarbeitung / Nachhaltig und zukunftssicher investiert


Hier haben wir ein TOP-Projekt für anspruchsvolle und qualitätsbewusste KundInnen! Hier in der Fenzlgasse wurden 4 Altbauwohnung hochwertig saniert und attraktive Balkone mit Blick ins Grüne angebaut, sowie 3 stylische Wohnungen mit Terrassen im Dachgeschoss ausgebaut. Genießen Sie einen unbeschreiblichen Blick auf das Schloss Schönbrunn und viel Privatspähre!


SCHAUEN SIE SICH DAS AN! WIR ZEIGEN IHNEN GERNE ALLE VERFÜGBAREN EINHEITEN!


Der Umwelt und dem Geldbörserl zuliebe! Kosten- und Energieeffiziente Erdwärmepumpe (Tiefenbohrung) für Heizung und Kühlung + Fancoils zur Unterstützung!


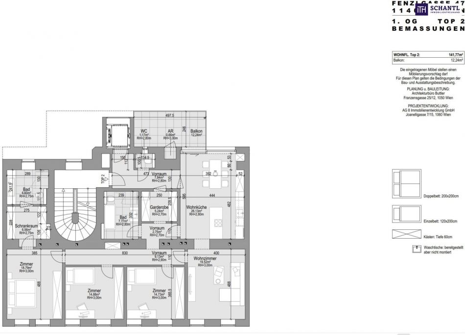
TOP 2 (1.Stock, Balkonwohnung, 4-5 Zimmer)


Mit dem Lift direkt in Ihre neue Wohnung! Genießen Sie den Komfort und gelangen Sie barrierefrei mit Ihren Einkäufen direkt in Ihre neue Wohnung als Option zum "normalen" Eingang...


Ihre neue Wohnung wird Sie restlos begeistern und teilt sich in einen geräumigen Vorraum, eine separate und sehr geräumige Garderobe inkl. Waschmaschinenanschluss, ein separates WC mit Handwaschbecken und Fenster, ein großes Familien-Badezimmer mit Dusche, Badewanne und 2.WC, 2 getrennt begehbare und geräumige Schlafzimmer und ein großes Master-Bedroom mit angeschlossenem Schrankraum und eigenem Badezimmer mit Dusche, 3.WC und Fenster mit Blick in den grünen Innenhof, sowie das Herzstück der Wohnung - einen Wohn-Essbereich mit Zugang zum Traum-Balkon. Der Wohn-Essbereich ist großzügig gestaltet und teilt sich in ein Esszimmer mit vorbereiteten Küchenanschlüssen und ein direkt verbundenes, separates Wohnzimmer.


Es ist auch möglich, das Wohn-Esszimmer zu kombinieren, so wäre es möglich ein 4.Schlafzimmer zu schaffen.


Vom Wohnzimmer gelangen Sie auf den großen Balkon mit Wasser- Licht- und Stromanschluss und einem raffinierten Abstellraum!


Genug Platz für die ganze Familie! 3WCs / 2 Bäder / 2 Abstellräume in der Wohnung + 1 Abstellraum am Balkon


Highlights: Erdwärme (11 Tiefenbohrungen) / Fußbodenheizung und Kühlung / Sicherheitstüren WK3 / 3-fach isolierte Holz-Fenster bzw. Holz-Alu-Fenster / Videogegensprechanlage uvm.


Wohnfläche: ca. 141,77m² + Balkon: ca. 12,24m² + Kellerabteil: ca. 3,78m²


Kaufpreis: € 949.000.-


Bezug: ab sofort


Folgende Wohnungen haben bereits glückliche, neue Eigentümer: TOP 7, TOP 4


www.schantl-ith.at


Bei konkretem Interesse senden wir Ihnen sehr gerne weiterführende Dokumente zu, wie:


o Grundbuchauszug


o Wohnungseigentumsvertrag


o Nutzwertgutachten


o Eigentümerversammlungsprotokoll (Falls vorhanden) etc...


Unser Service für Sie: Wenn Sie sich für diese Immobilie entschieden haben, begleiten wir Sie gerne vom Kaufanbot weg inkl. Klärung von Sonderwünschen und der Vertragsunterzeichnung über die Wohnungsübergabe bis hin zu diversen Ummeldungen wie Strom und Gas. Entsprechende Formulare oder auch Meldezettel stellen wir Ihnen sehr gerne zur Verfügung.


Gerne unterstützen wir Sie auch bei der Finanzierung Ihres Traumobjekts und finden mit unseren langjährigen Partnern die besten Konditionen für Sie.


Vereinbaren Sie noch heute einen Termin, wir beraten Sie gerne!


www.schantl-ith.at


Wir weisen darauf hin, dass zwischen dem Vermittler und dem zu vermittelnden Dritten ein familiäres oder wirtschaftliches Naheverhältnis besteht.


Der Vermittler ist als Doppelmakler tätig.


Infrastruktur / Entfernungen

Gesundheit
Arzt <500m
Apotheke <250m
Klinik <1.000m
Krankenhaus <1.750m
Kinder & Schulen
Schule <500m
Kindergarten <250m
Universität <750m
Höhere Schule <1.750m
Nahversorgung
Supermarkt <250m
Bäckerei <250m
Einkaufszentrum <1.000m
Sonstige
Geldautomat <750m
Bank <750m
Post <750m
Polizei <1.000m
Verkehr
Bus <250m
U-Bahn <750m
Straßenbahn <250m
Bahnhof <500m
Autobahnanschluss <4.250m
Angaben Entfernung Luftlinie / Quelle: OpenStreetMap

Agent Name

Samir Agha-Schantl

Schantl ITH Immobilientreuhand GmbH

samir.agha-schantl@schantl-ith.at

Energie/Heizung

Befeuerung:

HWB (kWh/m²/Jahr): 59

HWB Energieklasse: C

fGEE: 1.04

fGEE Energieklasse: C

Anbieter


Anfragen

Ergebnisse werden geladen ...