133.88 m² 960.000 € 3 Zimmer

Stark reduziert - Stylischer Wohntraum im Dachgeschoss! Frisch saniert + Ruhelage + Traumhaftes Altbauhaus + Hofseitige Terrasse + U-Bahn ums Eck + Beste Infrastruktur und Anbindung!

17.03.2026

Objekt Standort

Baumgasse , A-1030 Wien

marker Entfernung sowie Fahrtzeit (PKW) zu deinem Standort berechnen
oder
Die Route konnte nicht ermittelt werden

Allgemeine Informationen

Objekt ID: 296049
  • Vergabeart
    Kauf
  • Kaufpreis
    960.000 €
  • Wohnfläche
    133.88 m²
  • Nutzfläche
    139.1 m²
  • Zimmer
    3
  • Provision
    3% des Kaufpreises zzgl. 20% USt.

Ausstattung

  • Klimatisiert
  • Fahrstuhl
  • Abstellraum

Freiflächen

  • Terrasse

Beschreibung

Stark reduziert - Stylischer Wohntraum im Dachgeschoss! Frisch saniert + Ruhelage + Traumhaftes Altbauhaus + Hofseitige Terrasse + U-Bahn ums Eck + Beste Infrastruktur und Anbindung!

Stark reduziert!


WOW! Stylischer Wohntraum im Dachgeschoss! Frisch saniert + Ruhelage + Traumhaftes Altbauhaus + Hofseitige Terrasse + U-Bahn ums Eck + Beste Infrastruktur und Anbindung!


Traumhaft schönes Altbauhaus!


Privater Zugang aus dem Stiegenhaus mit exklusivem Liftzugang!


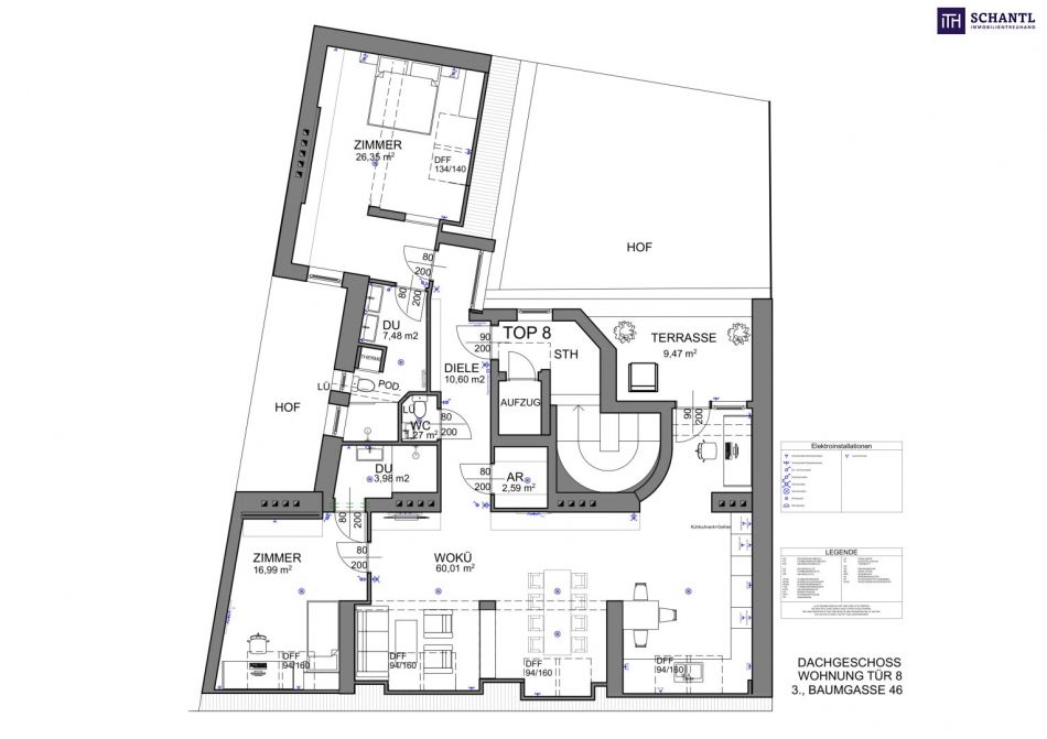
Ihre neue Wohnung in einer ruhigen Seitengasse wird Sie begeistern und teilt sich in einen geräumigen Vorraum mit genügend Platz für eine Garderobe, ein separates Gäste-WC mit Handwaschbecken, einen praktischen Abstellraum mit Waschmaschinenanschluss, ein komplett hofseitiges Schlafzimmer mit großem Badezimmer ausgestattet mit großer Walk-In Dusche, privatem WC, Fenster und Doppel-Waschbecken, ein weiteres Schlafzimmer mit eigenem Badezimmer mit Walk-In Dusche, sowie das Herzstück der Wohnung, ein riesiger Wohnbereich mit leicht abgetrenntem Küchenbereich und Zugang zur hofseitigen Sonnen-Terrasse.


Highlights: Supermarkt quasi vor der Haustüre / U-Bahn nur 4 Gehminuten entfernt / Frisch renoviertes Altbauhaus / Frisch sanierte Wohnung


Wohnfläche: ca. 133,88m² + Terrasse: ca. 10,44m² + Kellerabteil: ca. 5,4m²


Kaufpreis: € 960.000.-


Bezug: ab sofort


Worauf warten Sie, dieses Schmuckstück wird nicht lange zu haben sein!


www.schantl-ith.at


Bei konkretem Interesse senden wir Ihnen sehr gerne weiterführende Dokumente zu, wie:


o Grundbuchauszug


o Wohnungseigentumsvertrag


o Nutzwertgutachten


o Eigentümerversammlungsprotokoll (Falls vorhanden) etc...


Unser Service für Sie: Wenn Sie sich für diese Immobilie entschieden haben, begleiten wir Sie gerne vom Kaufanbot weg inkl. Klärung von Sonderwünschen und der Vertragsunterzeichnung über die Wohnungsübergabe bis hin zu diversen Ummeldungen wie Strom und Gas. Entsprechende Formulare oder auch Meldezettel stellen wir Ihnen sehr gerne zur Verfügung.


Gerne unterstützen wir Sie auch bei der Finanzierung Ihres Traumobjekts und finden mit unseren langjährigen Partnern die besten Konditionen für Sie.


Vereinbaren Sie noch heute einen Termin, wir beraten Sie gerne!


www.schantl-ith.at


Wir weisen darauf hin, dass zwischen dem Vermittler und dem zu vermittelnden Dritten ein familiäres oder wirtschaftliches Naheverhältnis besteht.


Der Vermittler ist als Doppelmakler tätig.


Infrastruktur / Entfernungen

Gesundheit
Arzt <250m
Apotheke <500m
Klinik <500m
Krankenhaus <500m
Kinder & Schulen
Schule <250m
Kindergarten <250m
Universität <750m
Höhere Schule <750m
Nahversorgung
Supermarkt <250m
Bäckerei <500m
Einkaufszentrum <750m
Sonstige
Geldautomat <500m
Bank <500m
Post <500m
Polizei <500m
Verkehr
Bus <250m
U-Bahn <250m
Straßenbahn <250m
Bahnhof <250m
Autobahnanschluss <750m
Angaben Entfernung Luftlinie / Quelle: OpenStreetMap

Agent Name

Samir Agha-Schantl

Schantl ITH Immobilientreuhand GmbH

samir.agha-schantl@schantl-ith.at

Energie/Heizung

Heizungsart: Etagenheizung

Befeuerung: Gas

HWB (kWh/m²/Jahr): 124.3

HWB Energieklasse: D

fGEE: 2.26

fGEE Energieklasse: D

Anbieter


Anfragen

Ergebnisse werden geladen ...