Stadt-Wohnung, 2-Zimmer, sanierungsbefürftig für 200.000 €
Objekt Standort
A-1030 Wien
Allgemeine Informationen
Objekt ID: 5735/3277- 
							VergabeartKauf
- 
								Kaufpreis200.000 €
- 
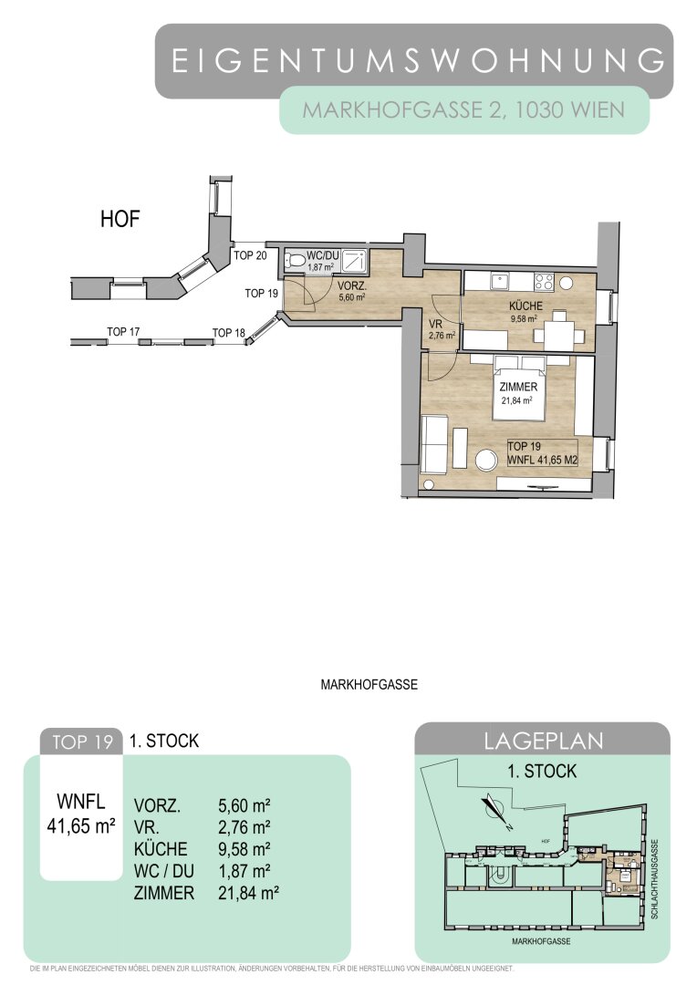
								Wohnfläche41.65 m²
- 
								Zimmer2
- 
								Provision3% des Kaufpreises zzgl. 20% USt.
Ausstattung
- 
										Einbauküche
Beschreibung
Stadt-Wohnung, 2-Zimmer, sanierungsbefürftig für 200.000 €
Helle Stadt-Wohnung, 2 Zimmer im Wiener Altbau! 3. Bezirk
Diese 2-Zimmer Wohnung im 1. Stock bietet viel Potential zur Neugestaltung für ein komfortables Stadtleben. Mit 41,65 m² aufgeteilt auf 1 großes Zimmer und extra Wohnküche, ist die Wohnung perfekt für Singles oder Paare geeignet.
Die Wohnung besticht durch die hellen und hohen Räume (Raumhöhe 3,20-3,40 m) mit viel Gestaltungspotential für ein extra Schlafzimmer und ein großes Wohnzimmer mit integrierter Küche. Das Badezimmer ist mit Dusche, und Toilette ausgestattet. Das Waschbecken befindet sich derzeit daneben, könnte aber leicht ins Badezimmer integriert werden.
Für zusätzlichen Stauraum ist ein Kellerabteil vorhanden.
Ein Lift wird in den nächsten Jahren noch im Haus errichtet und ist bereits in Planung.
Besonders hervorzuheben ist die Stadtnähe, die Nähe zum Donaukanal und auch die perfekte öffentliche Verkehrsanbindung.
Diese Wohnung ist optimal für Stadt-Liebhaber, Studenten und auch bestens zur Vermietung geeignet.
 
Raumaufteilung:
- Vorzimmer
- Wohn-Küche
- Wohnzimmer/Schlafraum
- Bad mit WC
Lage:
Tolle Lage mit Nähe zur Innnenstadt und Donaukanal sowie Prater-Auen, alles fußläufig erreichbar.
Die beliebte Landstraße Hauptstraße mit zahlreichen Lokalen und Einkaufsmöglichkeiten ist ebenfalls in unmittelbarer Nähe.
Eine hervorragende Verkehrsanbindung dank Nähe zur U-Bahn, Bussen, Straßenbahnen und dem Bahnhof sowie der schnelle Autobahnanschluss machen die Lage unschlagbar. Sie finden alle wichtigen Einrichtungen wie Ärzte, Apotheken, Schulen, Kindergärten und Universitäten in der Umgebung. Zahlreiche Einkaufsmöglichkeiten, Supermärkte, Bäckereien und ein Einkaufszentrum sind ebenfalls fußläufig erreichbar.
Ergreifen Sie die Chance und vereinbaren Sie gerne einen Besichtigungstermin! Wir freuen uns auf Sie.
Öffentliche Verkehrsmittel:
- Buslinien: 77A, 80A, N71
- U-Bahnlinie: U3 (Kardinal-Nagl-Platz)
- Straßenbahnlinien: 18 und 71
----------------
Für eine unverbindliche Besichtigung:
Wir freuen uns Ihnen das Objekt jederzeit persönlich vorzustellen zu dürfen.
Kontaktieren Sie gerne Frau Petra Gepp persönlich unter +43 660 201 89 47 sowie auch unter gepp@thurner-realitaeten.at. Unser Büro erreichen Sie unter office@thurner-realitaeten.at.
Nebenkosten:
Grundbucheintragung: 1,1% d.KP.
Grunderwerbssteuer: 3,5% d.KP.
Maklerprovision: 3% d.KP. + 20% USt.
Kaufvertragshonorar: 1,2% des Kaufpreises zzgl. Barauslagen und USt. | Die Errichtung und Durchführung des Kaufvertrages erfolgt durch die Kanzlei Tiefenthaler Gnesda Rechtsanwälte GmbH.
Maklervereinbarung: Wir ersuchen um Verständnis, dass wir bei Anfragen zur Objektadresse, bzw. Besichtigungstermin aufgrund neuer gesetzlicher Bestimmungen Unterlagen erst dann zusenden können, wenn Sie vorab bestätigen, dass Sie unser sofortiges Tätigwerden wünschen und über Ihre Rücktrittsrechte aufgeklärt wurden. Sie bekommen nach Ihrer schriftlichen Anfrage mit vollständiger Angabe des Namens, Anschrift und Telefonnummer ein Email, in dem Sie diese Punkte bestätigen müssen.
Haftungsausschluss:  Wir weisen darauf hin, dass sämtliche Daten im vorliegenden Angebot sowie die von unserem Büro an Sie weitergegebenen Auskünfte, vom Eigentümer der Immobilie zur Verfügung gestellt wurden. Ebenso sind Informationen von Dritten (z.B. behördliche Informationen) eingeholt worden, auch für diese können wir unsererseits keinerlei Haftung für deren uneingeschränkte Richtigkeit übernehmen.
Wir weisen darauf hin, dass zwischen dem Vermittler und dem zu vermittelnden Dritten ein familiäres oder wirtschaftliches Naheverhältnis besteht.
Der Vermittler ist als Doppelmakler tätig.
Infrastruktur / Entfernungen
Gesundheit
Arzt <500m
Apotheke <500m
Klinik <1.000m
Krankenhaus <1.000m
Kinder & Schulen
Schule <500m
Kindergarten <500m
Universität <1.000m
Höhere Schule <1.000m
Nahversorgung
Supermarkt <500m
Bäckerei <500m
Einkaufszentrum <1.000m
Sonstige
Geldautomat <500m
Bank <500m
Post <500m
Polizei <500m
Verkehr
Bus <500m
U-Bahn <500m
Straßenbahn <500m
Bahnhof <500m
Autobahnanschluss <500m
Angaben Entfernung Luftlinie / Quelle: OpenStreetMap
 
																					Petra Gepp
THURNER REALITÄTEN GMBH
gepp@thurner-realitaeten.atEnergie/Heizung
Heizungsart: Zentralheizung
Befeuerung: Gas
HWB (kWh/m²/Jahr): 128.84
HWB Energieklasse: D
fGEE: 2.29
fGEE Energieklasse: D
 
									 
									 
									 
									 
									 
									 
									 
									 
									 
									 
									 
									 
									 
									 
                 
                 
                 
                 
                 
                 
                 
                 
                 
                 
                 
                 
                