76 m² 349.000 € 3 Zimmer

++NEU++ TOP-sanierter 3-Zimmer Altbau-ERSTBEZUG! optimaler Grundriss!

26.08.2024

Objekt Standort

Effingergasse , A-1160 Wien

marker Entfernung sowie Fahrtzeit (PKW) zu deinem Standort berechnen
oder
Die Route konnte nicht ermittelt werden

Allgemeine Informationen

Objekt ID: 58170
  • Vergabeart
    Kauf
  • Kaufpreis
    349.000 €
  • Wohnfläche
    76 m²
  • Zimmer
    3
  • Provision
    3% des Kaufpreises zzgl. 20% USt.

Beschreibung

++NEU++ TOP-sanierter 3-Zimmer Altbau-ERSTBEZUG! optimaler Grundriss!

Zum Verkauf gelangt diese generalsanierte, ca. 76große 3-Zimmer Altbauwohnung in guter Lage des 16. Wiener Gemeindebezirks.


*****ZUR VEREINBARUNG eines BESICHTIGUNGSTERMINS lassen SIE uns BITTE JEDENFALLS eine schriftliche ANFRAGE zukommen! (wir antworten verlässlich am selben Tag!)*****


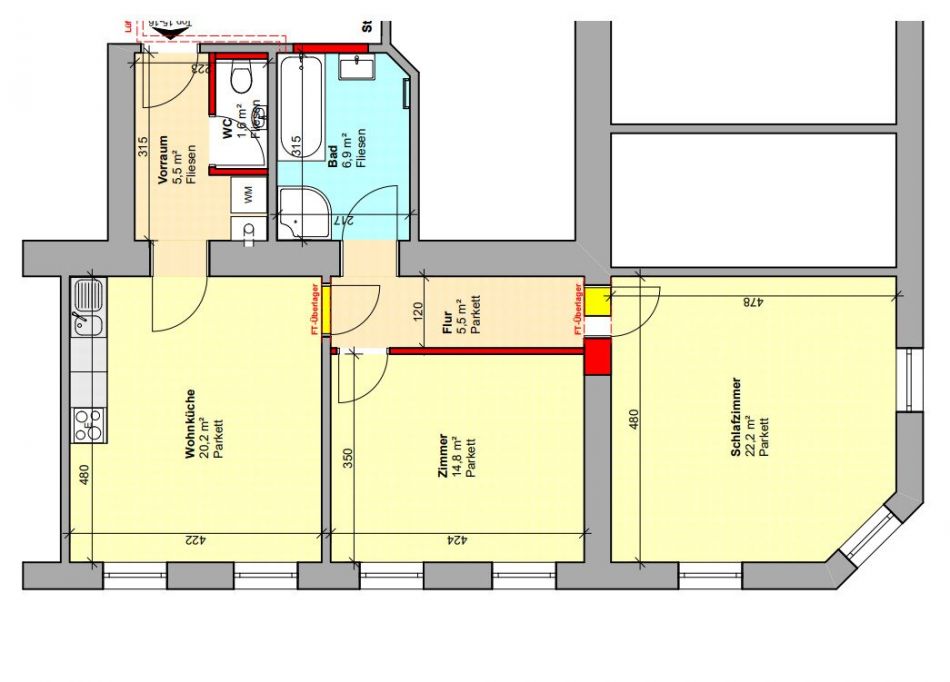
Räumlichkeiten: 2. Stock



  • Vorraum

  • getrenntes WC

  • Wohnküche

  • Badezimmer mit Dusche u. Wanne

  • Zimmer

  • Eckzimmer


(siehe aktuelle Fotodokumentation und Grundriss)


In diesem Haus steht noch eine weitere Wohnung zum Verkauf:
Top 21        3.OG   57m2   2Zimmer   249.000€ (saniert)


Zustand:


Die Wohnung wurde generalsaniert und ist ab sofort verfügbar!


Im Zuge der Generalsanierung wurden alle Leitung innerhalb der Wohnung komplett erneuert.


Haus:


Die Wohnung befindet sich im zweiten Stock eines gepflegten Altbaus (derzeit noch ohne Lift).


Es ist geplant das Dachgeschoss auszubauen.


Lage: 


Die Wohnung befindet sich in der Effingergasse und somit in sehr guter Lage des 16. Wiener Gemeindebezirks welcher von seinen Bewohnern vor allem wegen seiner gleichzeitigen Nähe zum Stadtzentrum (Universitäts- und Rathausviertel, Altes und Neues AKH) und zu Naherholungsbieten (Schwarzenbergpark, Schafberg, Kongresspark und -Bad) geschätzt. 


Fußläufig sind in der unmittelbaren Umgebung zahlreiche Geschäfte des täglichen Bedarfs (Lebensmittel, Restaurants, Bekleidungsgeschäfte, Apotheken, Banken) sowie auch diverse Arztpraxen binnen weniger Minuten zu erreichen.
Auch Kindergärten, Schulen und Universitäten sind mit den oben genannten öffentlichen Verkehrsmitteln bestens angebunden. Die Wirtschaftsuniversität ist in weniger als 10 Minuten zu Fuß erreichbar.
Verkehrsanbindung: 


Die Wohnung ist über die Autobuslinie 10A sowie die Straßenbahnlinien 1, 2, 9 und 43 sehr gut öffentlich angebunden


Preis:


Der lastenfreie Kaufpreis für diese Wohnung beträgt Euro 349.000.-


Sollten Sie Fragen haben oder einen Besichtigungstermin wünschen, zögern Sie bitte nicht mich zu kontaktieren. (am besten via E-Mail Anfrage)


Zur Vereinbarung eines Besichtigungstermins lassen Sie uns bitte jedenfalls eine E-Mailanfrage zukommen!


Der IMMY ist die renommierteste Auszeichnung für Wiener Makler- und Verwalterbetriebe im Bereich Wohnimmobilien. Wir sind stolz den goldenen IMMY für das Jahr 2019 gewonnen zu haben!


Vielen Dank vor allem an unsere Kunden! Unser Unternehmen wurde auch zum Besten Start Up und in den Jahren 2015, 2018, 2019 und 2020 als Qualitätsmakler ausgezeichnet!


Bitte achten Sie darauf, dass Sie diese Immobilie, nach Ihrer Anfrage bei Adonia Immobilien, nicht auch bei einem anderen Immobilienmaklerbüro anfragen! Vielen Dank!


Nicht alle unsere Immobilien finden Sie auf den gängigen Plattformen. Wir freuen uns auf Ihren Besuch auf unserer Homepage unter adonia.at 


Wir weisen ausdrücklich auf unser wirtschaftliches Naheverhältnis mit dem Abgeber/ der Abgeberin hin!  Unsere gesetzlichen Pflichten als Doppelmakler werden dadurch jedoch nicht beeinträchtigt. Irrtum und Änderungen vorbehalten. 


Alle hier veröffentlichen Informationen basieren auf den uns von dem Abgeber/ der Abgeberin zur Verfügung gestellten Informationen und wurden nicht selbst erhoben.


Unsere Allgemeinen Geschäftsbedingungen können Sie sowohl in dem Ihnen zugesandten Expose einsehen als auch auf unserer Homepage. Wir weisen ausdrücklich darauf hin, dass diese AGBs Vertragsinhalt werden.


Der Schutz von personenbezogenen Daten ist uns wichtig und auch gesetzlich gefordert. Die Verarbeitung Ihrer personenbezogenen Daten erfolgt nach den datenschutzrechtlichen Bestimmungen. Auf unserer Homepage (unter Datenschutzinformation) finden Sie eine Übersicht die Sie über die wichtigsten Aspekte der Verarbeitung personenbezogener Daten informieren soll.


Wir weisen darauf hin, dass zwischen dem Vermittler und dem Auftraggeber ein familiäres oder wirtschaftliches Naheverhältnis besteht.


Der Vermittler ist als Doppelmakler tätig.


Infrastruktur / Entfernungen

Gesundheit
Arzt <500m
Apotheke <250m
Klinik <1.000m
Krankenhaus <1.000m
Kinder & Schulen
Schule <250m
Kindergarten <250m
Universität <1.750m
Höhere Schule <1.250m
Nahversorgung
Supermarkt <250m
Bäckerei <500m
Einkaufszentrum <1.000m
Sonstige
Geldautomat <250m
Bank <250m
Post <250m
Polizei <750m
Verkehr
Bus <250m
U-Bahn <750m
Straßenbahn <500m
Bahnhof <750m
Autobahnanschluss <4.000m
Angaben Entfernung Luftlinie / Quelle: OpenStreetMap

Agent Name

Luca Schelodetz

Adonia Immobilien GmbH

pr@adonia-immobilien.at

Energie/Heizung

Heizungsart: Etagenheizung

Befeuerung: Gas

HWB (kWh/m²/Jahr): 167.1

fGEE: 3.62

Anbieter

Agent Name

Luca Schelodetz

pr@adonia-immobilien.at

Anfragen

Ergebnisse werden geladen ...