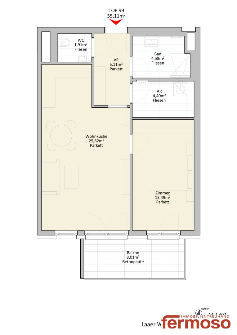
55.11 m² 1.026,36 € 2 Zimmer

Moderne 2-Zimmer-Wohnung mit Balkon – Laaer Wald 1, 1100 Wien

13.12.2025

Objekt Standort

A-1100 Wien

marker Entfernung sowie Fahrtzeit (PKW) zu deinem Standort berechnen
oder
Die Route konnte nicht ermittelt werden

Allgemeine Informationen

Objekt ID: 6545
  • Vergabeart
    Miete
  • monatliche kosten
    1.026,36 €
  • Wohnfläche
    55.11 m²
  • Zimmer
    2
  • Provision
    Gemäß Erstauftraggeberprinzip bezahlt der Abgeber die Provision.

Ausstattung

  • Barrierefrei

Freiflächen

  • Balkon

Beschreibung

Moderne 2-Zimmer-Wohnung mit Balkon – Laaer Wald 1, 1100 Wien

Moderne 2-Zimmer-Wohnung mit Balkon – Laaer Wald 1, 1100 Wien


Liebe Interessentin, lieber Interessent,


in attraktiver Lage am Laaer Wald 1 im 10. Bezirk erwartet Sie diese optimal geschnittene 2-Zimmer-Wohnung mit ca. 55,11 m² Wohnfläche und einem großzügigen Balkon mit ca. 8,01 m². Die Wohnung überzeugt durch eine klare Raumaufteilung, helle Wohnräume und moderne Materialien – ideal für Singles, Paare oder als Anlagewohnung.


Raumaufteilung & Flächen




  • Wohnküche: ca. 25,62 m² – großzügiger Wohn- und Essbereich mit direktem Zugang zum Balkon




  • Zimmer: ca. 13,49 m² – ruhig gelegenes Schlafzimmer




  • Vorraum: ca. 5,11 m² – mit Platz für Garderobe




  • Abstellraum: ca. 4,40 m² – praktischer Stauraum




  • Badezimmer: ca. 4,58 m² – modern verfliest




  • Separates WC: ca. 1,91 m²




  • Balkon: ca. 8,01 m² – angenehme Freifläche für entspannte Stunden im Freien




Ausstattung




  • Parkettboden in Wohnküche, Zimmer und Vorraum




  • Hochwertige Fliesen in Bad, WC und Abstellraum




  • Funktionaler Grundriss mit klarer Trennung von Wohn- und Schlafbereich




  • Balkon als zusätzliche Wohnfläche im Außenbereich




Lage


Die Wohnung befindet sich in unmittelbarer Nähe zum Laaer Wald, einem der beliebtesten Erholungsgebiete im Süden Wiens. Öffentliche Verkehrsmittel, Einkaufsmöglichkeiten sowie Freizeit- und Sportangebote sind gut erreichbar. Die Anbindung an die Wiener Innenstadt ist ausgezeichnet und macht diese Lage besonders attraktiv.




Kontakt:
Dean Banovic
db@fermoso.at
? +43 676 926 15 29

Noch nichts gefunden? Wir informieren Sie über geeignete Immobilienangebote noch vor allen anderen.
Legen Sie jetzt Ihren individuellen Suchagenten unter folgendem Link an. Wir schicken Ihnen passende Immobilien exklusiv vorab zu.
Suchagent anlegen - https://fermoso-immobilientreuhand.service.immo/registrieren/de


Wir weisen darauf hin, dass zwischen dem Vermittler und dem zu vermittelnden Dritten ein familiäres oder wirtschaftliches Naheverhältnis besteht.


Der Immobilienmakler erklärt, dass er – entgegen dem in der Immobilienwirtschaft üblichen Geschäftsgebrauch des Doppelmaklers – einseitig nur für den Vermieter tätig ist.


Infrastruktur / Entfernungen

Gesundheit
Arzt <1.000m
Apotheke <500m
Klinik <1.000m
Krankenhaus <3.000m
Kinder & Schulen
Schule <500m
Kindergarten <500m
Universität <1.000m
Höhere Schule <2.500m
Nahversorgung
Supermarkt <500m
Bäckerei <500m
Einkaufszentrum <1.500m
Sonstige
Geldautomat <1.000m
Bank <1.000m
Post <1.000m
Polizei <1.500m
Verkehr
Bus <500m
U-Bahn <1.500m
Straßenbahn <500m
Bahnhof <1.000m
Autobahnanschluss <500m
Angaben Entfernung Luftlinie / Quelle: OpenStreetMap

Fermoso Immobilientreuhand GmbH
Agent Name

Dean Banovic

Fermoso Immobilientreuhand GmbH

db@fermoso.at

Energie/Heizung

Befeuerung: Fernwärme

HWB (kWh/m²/Jahr): 15.5

HWB Energieklasse: A

fGEE: 0.65

fGEE Energieklasse: A+

Anbieter


Anfragen

Ergebnisse werden geladen ...