63.53 m² 951,75 € 2 Zimmer

Mietkauf! Provisionsfreie 2-Zimmer Wohnung in U3 Nähe!

14.03.2026

Objekt Standort

A-1110 Wien

marker Entfernung sowie Fahrtzeit (PKW) zu deinem Standort berechnen
oder
Die Route konnte nicht ermittelt werden

Allgemeine Informationen

Objekt ID: 5387/8281
  • Vergabeart
    Miete
  • monatliche kosten
    951,75 €
  • Wohnfläche
    63.53 m²
  • Nutzfläche
    63.53 m²
  • Zimmer
    2
  • Provision
    Gemäß Erstauftraggeberprinzip bezahlt der Abgeber die Provision.

Ausstattung

  • Fahrstuhl
  • Abstellraum

Freiflächen

  • Balkon

Beschreibung

Mietkauf! Provisionsfreie 2-Zimmer Wohnung in U3 Nähe!

? Mietkauf – heute einziehen, morgen Eigentümer sein



Direktkaufpreis: 425.500 €
oder clever ins Eigentum starten mit unserem attraktiven Mietkaufmodell


Einmalige Mietzinsvorauszahlung:
800 € pro m² → nur 50.824 €
✅ Wird beim späteren Kauf zu 100 % angerechnet
✅ Gültig auch bei Kauf nach 5, 10 oder 15 Jahren


Monatliche Gesamtmiete: 1.075,16 €
(inkl. Betriebskosten & Steuer)


Das Besondere:
Vom Hauptmietzins (805,14 € netto) werden
➜ 75 % beim Kauf zusätzlich als Eigenkapital angerechnet


Maximale Flexibilität:
Kaufentscheidung nach 5, 10 oder 15 Jahren möglich


Der Kaufpreis wird gemäß vereinbarter Indexierung angepasst



? Ihr Vorteil:

Sie wohnen bereits in Ihrem zukünftigen Zuhause, bauen Monat für Monat Eigenkapital auf und halten sich alle Optionen offen.
Miete zahlen – und gleichzeitig Eigentum schaffen.

 

PROVISIONSFREI für den Mieter mit Kaufoption!

Alle verfügbaren Wohnungen finden Sie auch auf unserer Homepage.

 

"Brambilla" - Ihr neues Zuhause, Investment und Vorsorge

Dieses beeindruckende und exklusive Neubauprojekt befindet sich im Herzen von Simmering – nur wenige Gehminuten von der U3-Station „Simmering“ entfernt. Die Wohnhausanlage liegt in einer ruhigen Seitengasse und verbindet urbanes Lebensgefühl mit angenehmer Wohnruhe.

Im Rahmen eines typischen Mietkaufmodells (Miete mit Kaufoption) stehen Ihnen hier 16 freifinanzierte Wohnungen sowie 4 freifinanzierte Townhouses zur Verfügung.

Sie starten als Mieter und sichern sich gleichzeitig die Möglichkeit, die Immobilie zu einem späteren Zeitpunkt zu erwerben. Ein Teil der geleisteten Zahlungen wird auf den späteren Kaufpreis angerechnet werden.

Eigengrund – keine Pacht!

Die voraussichtliche Fertigstellung ist für Herbst 2026 geplant.

 

Highlights der Liegenschaft:


Wärmepumpe
PV-Anlage für eine energieeffiziente Wohnhausanlage und niedrigere Betriebskosten
Jede Wohnung mit privater Freifläche! Balkon, Terrasse oder Eigengärten
Echtholzböden
Keramischer Fliesenbelag in den Nassräumen
3 - fach verglaste Kunsstofffenster mit Alu Deckschale
Schließanlage
Personenlift
Tiefgarage
Heizung und Temperierung mittels Fußbodenheizung
Ein Tiefgaragenstellplatz kann um € 149,- brutto pro Monat angemietet werden


 

Mietkauf – Ihre Vorteile



Geringerer Eigenkapitalbedarf zu Beginn


Wohnen mit langfristiger Kaufperspektive


Preisliche Absicherung bereits heute möglich


Schrittweise Vermögensbildung


Ideal zur Eigennutzung oder als Vorsorgemodell



 

Lage: Auto adé

Auch ohne eigenes Fahrzeug sind Sie hier bestens angebunden. Zahlreiche Nahversorger sowie Einrichtungen des täglichen Bedarfs befinden sich in unmittelbarer Umgebung. Die U3-Station „Simmering“ sorgt für eine rasche Anbindung in die Wiener Innenstadt.

Für Naturliebhaber und entspannte Stunden im Freien sind die Parkanlage Löwygrube sowie der Kurpark Oberlaa sowohl mit dem Fahrrad als auch öffentlich bequem erreichbar.

 

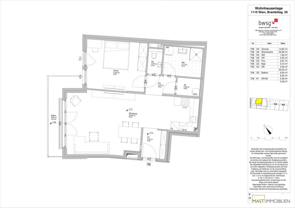
Details Wohnung Top 8:

Die Wohnung befindet sich im 2. Liftstock und verfügt über 63,53 m² Wohnfläche + einen 6,94 m²  großen Balkon. 

Die Wohnung gliedert sich wie folgt: 


Vorraum ca. 3,53 m²
Gang ca. 2,81 m²
Wohnküche ca. 32,95 m²
Schlafzimmer ca. 14,85 m²
Abstellraum ca. 2,06 m²
Badezimmer ca. 5,72 m²
Separate Toilette ca. 1,62 m²
Balkon ca. 6,94 m²
Kellerabteil ca. 2,56 m²


 

Auf unserer Homepage finden Sie eine Übersicht zu allen verfügbaren 2-Zimmer-Wohnungen sowie nähere Details dazu. 
Wir weisen darauf hin, dass zwischen dem Vermittler und dem zu vermittelnden Dritten ein familiäres oder wirtschaftliches Naheverhältnis besteht.
Der Immobilienmakler erklärt, dass er – entgegen dem in der Immobilienwirtschaft üblichen Geschäftsgebrauch des Doppelmaklers – einseitig nur für den Vermieter tätig ist.Infrastruktur / EntfernungenGesundheitArzt <500mApotheke <500mKlinik <2.000mKrankenhaus <4.000mKinder & SchulenSchule <500mKindergarten <500mUniversität <2.500mHöhere Schule <3.000mNahversorgungSupermarkt <500mBäckerei <500mEinkaufszentrum <1.000mSonstigeGeldautomat <500mBank <500mPost <500mPolizei <500mVerkehrBus <500mU-Bahn <500mStraßenbahn <500mBahnhof <500mAutobahnanschluss <2.000mAngaben Entfernung Luftlinie / Quelle: OpenStreetMap
Agent Name

Dolores Markovic

MA.ST Immobilien & Design e.U.

dm@mast-immo.at

Anbieter

Agent Name

Dolores Markovic

dm@mast-immo.at

Anfragen

Ergebnisse werden geladen ...