323.5 m² 3.094,61 €

Einladendes Fitnesscenter mit Sauna in Toplage

02.03.2026

Objekt Standort

A-1080 Wien

marker Entfernung sowie Fahrtzeit (PKW) zu deinem Standort berechnen
oder
Die Route konnte nicht ermittelt werden

Allgemeine Informationen

Objekt ID: 5219
  • Vergabeart
    Miete
  • monatliche kosten
    3.094,61 €
  • Nutzfläche
    323.5 m²
  • Provision
    3 Bruttomonatsmieten zzgl. 20% USt.

Ausstattung

  • Einbauküche
  • Sauna

Beschreibung

Einladendes Fitnesscenter mit Sauna in Toplage

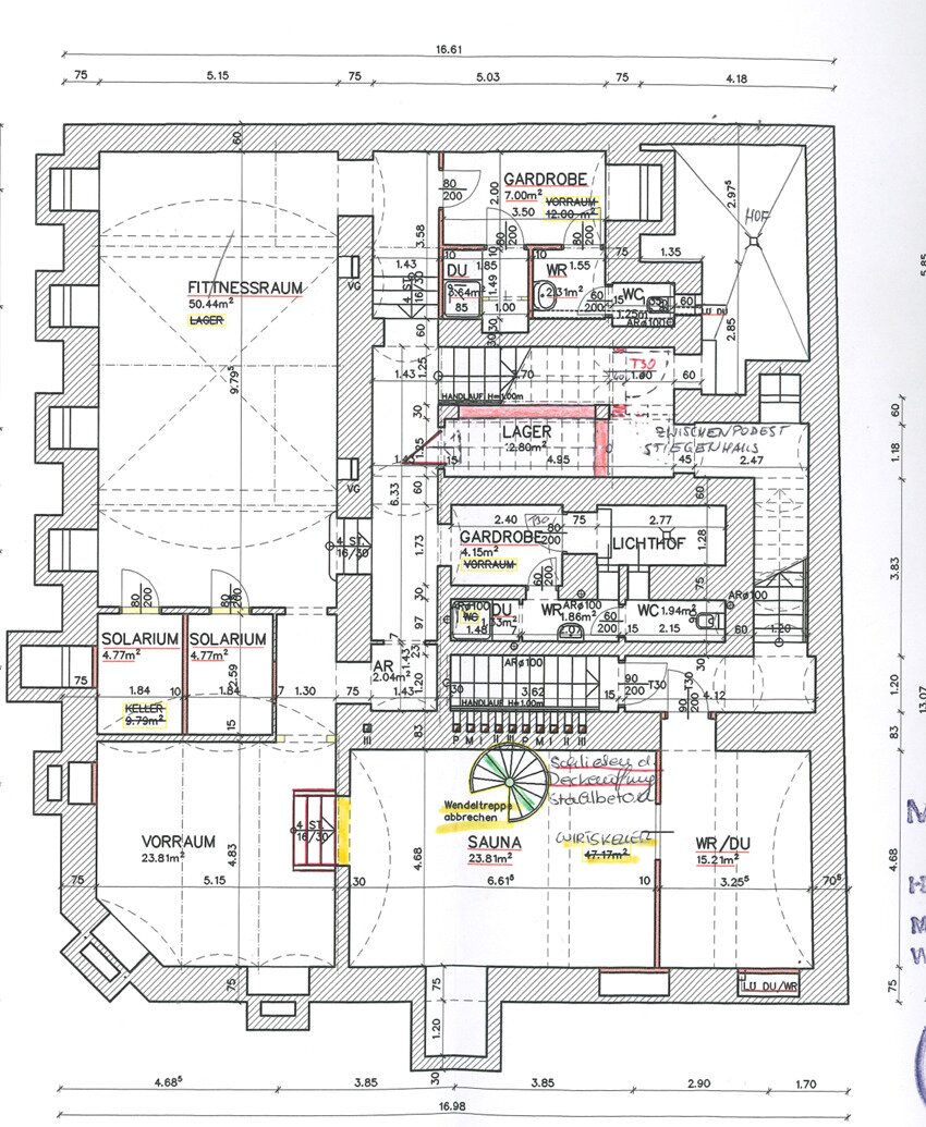
Zur Vermietung gelangt ein Fitnesscenter mit Sauna auf 2 Ebenen ( Souterrain und Keller ) auf einer Fläche von ca. 323,50 m² im 8. Wiener Gemeindebezirk. 


Das Objekt verfügt über eine vollausgestattete Küche mit Bar sowie über einen Saunabereich mit einer Finnischen Sauna und einem Dampfbad als auch einen Ruheraum. Des Weiteren gibt es geteilte Garderoben mit verschließbaren Spinten und ausreichend Duschen. Den Fitnessbereich kann man sowohl im Souterrain als auch im Keller auf verschiedene Flächen aufteilen. Es gibt auch abgetrennte Räume, diese sich für ein Solarium eignen.
Eine funktionstüchtige Be- und Entlüftung und eine Klimaanlage ist bereits auf beiden Ebenen vorhanden.


Im Gebäude befindet sich eine Pension mit Fremdenzimmern.


Die Lage der Wohnung ist als sehr gut zu bewerten. Sie erreichen in kürzester Zeit diverse Geschäfte des täglichen Lebens wie beispielsweise den Supermarkt "Hofer". Die Anbindung an den öffentlichen Verkehr ist über die U-Bahn-Linien U3, U2, Bus 13 A, 48 A und Straßenbahn 46 zu erreichen. Sie genießen hier eine ruhige aber dennoch sehr zentrale Lage. Sie sind nur wenige Gehminuten von der Inngenstadt und den wichtigsten Sehenswürdigkeiten entfernt.


Überzeugen Sie sich selbst von diesen charmanten Objekt.


Für Besichtigungen und nähere Informationen stehen wir Ihnen gerne zur Verfügung!


Herr Christian Kiedl
national - Tel: 0664 336 0836
international - Tel: +43 664 336 0836
e-mail: kiedl@lifestyle-properties.at


Wir weisen darauf hin, dass zwischen dem Vermittler und dem zu vermittelnden Dritten ein familiäres oder wirtschaftliches Naheverhältnis besteht.


Infrastruktur / Entfernungen

Gesundheit
Arzt <500m
Apotheke <500m
Klinik <1.000m
Krankenhaus <1.500m
Kinder & Schulen
Schule <500m
Kindergarten <500m
Universität <500m
Höhere Schule <1.000m
Nahversorgung
Supermarkt <500m
Bäckerei <500m
Einkaufszentrum <1.000m
Sonstige
Geldautomat <500m
Bank <500m
Post <500m
Polizei <500m
Verkehr
Bus <500m
U-Bahn <500m
Straßenbahn <500m
Bahnhof <500m
Autobahnanschluss <4.000m
Angaben Entfernung Luftlinie / Quelle: OpenStreetMap

Agent Name

Christian Kiedl

Lifestyle Properties

kiedl@lifestyle-properties.at

Anbieter


Anfragen

Ergebnisse werden geladen ...