100.94 m² 519.000 € 4 Zimmer

Traumhafte 4-Zimmer-Wohnung in Wattens: Terrasse, Garage und viel Platz , neuer Preis € 519.000.- !

10.02.2026

Objekt Standort

A-6112 Wattens

marker Entfernung sowie Fahrtzeit (PKW) zu deinem Standort berechnen
oder
Die Route konnte nicht ermittelt werden

Allgemeine Informationen

Objekt ID: 5231/1452
  • Vergabeart
    Kauf
  • Kaufpreis
    519.000 €
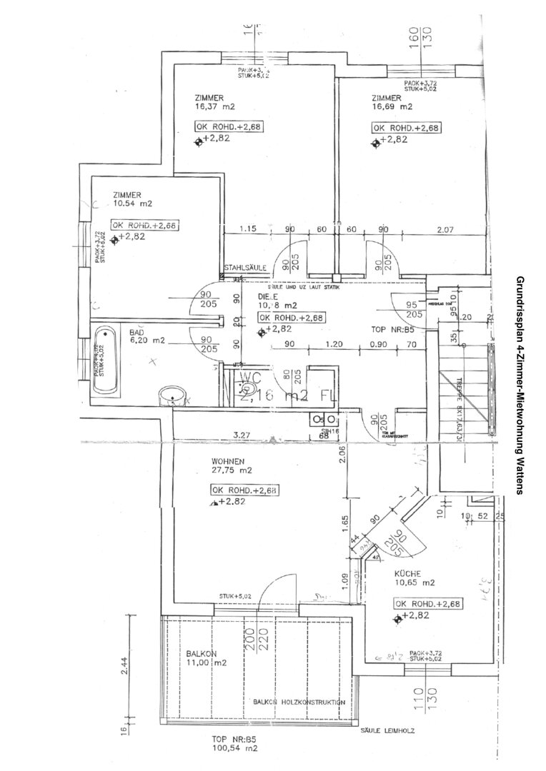
  • Wohnfläche
    100.94 m²
  • Zimmer
    4

Ausstattung

  • Einbauküche
  • Garage

Freiflächen

  • Terrasse

Beschreibung

Traumhafte 4-Zimmer-Wohnung in Wattens: Terrasse, Garage und viel Platz , neuer Preis € 519.000.- !

Willkommen in Ihrer neuen Traumwohnung in 6112 Wattens, Tirol – ein Ort, an dem sich modernes Wohnen mit atemberaubender Natur verbindet!

Diese einladende Wohnung befindet sich in der 1. Etage eines gepflegten Wohnhauses und bietet Ihnen auf großzügigen 100,94 m² alles, was das Herz begehrt. Mit einem Kaufpreis von € 519.000.- investieren Sie in ein Zuhause, das sowohl Komfort als auch Lebensqualität verspricht.

Die Wohnung erstreckt sich über vier lichtdurchflutete Zimmer, die Ihnen ausreichend Platz für individuelle Gestaltungsmöglichkeiten bieten. Ob als Familiennest oder Rückzugsort – hier finden Sie Raum für Ihre persönlichen Wünsche und Bedürfnisse. Die hochwertige Ausstattung mit Fliesen und Parkett sorgt für ein modernes und gleichzeitig warmes Wohnambiente.

Ein Highlight dieser Immobilie ist die großzügige Terrasse, die nach Südwesten ausgerichtet ist. Genießen Sie auf Ihrer eigenen Terrasse den herrlichen Bergblick und den Blick ins Grüne – der perfekte Ort, um den Tag bei einem Glas Wein ausklingen zu lassen oder den Sonntag mit einem entspannten Frühstück im Freien zu beginnen.

Die moderne Einbauküche ist nicht nur funktional, sondern lädt auch dazu ein, kulinarische Köstlichkeiten zuzubereiten und gesellige Abende mit Freunden und Familie zu verbringen. Das Badezimmer mit Fenster bietet Ihnen nicht nur einen praktischen Vorteil, sondern auch eine angenehme Atmosphäre zum Entspannen und Wohlfühlen.

Ein weiterer Pluspunkt ist die Tiefgarage, die Ihnen nicht nur einen sicheren Stellplatz für Ihr Fahrzeug bietet, sondern auch zusätzlichen Stauraum für Sportgeräte oder andere Utensilien.

Die Lage dieser Wohnung ist ebenso bemerkenswert. Mit einer ausgezeichneten Verkehrsanbindung sind Sie schnell und unkompliziert unterwegs – sei es mit dem Bus, dem Auto über die nahegelegene Autobahn oder dem Zug am Bahnhof.

In der Umgebung finden Sie alles, was Sie für den täglichen Bedarf benötigen. Ärzte, Apotheken, Schulen, Kindergärten, Supermärkte und Bäckereien sind bequem erreichbar und sorgen dafür, dass Sie sich in Ihrer neuen Heimat rundum wohlfühlen.

Nutzen Sie diese einmalige Gelegenheit und verwirklichen Sie Ihren Traum vom Eigenheim in einer der schönsten Regionen Österreichs. Kontaktieren Sie uns noch heute für eine Besichtigung und überzeugen Sie sich selbst von dieser attraktiven Immobilie in Wattens!

 

Kaufnebenkosten vom Kaufpreis:
Grunderwerbssteuer 3,5%
Eintragung Eigentumsrecht 1,1% (derzeit besteht die Möglichkeit einer Befreiung von dieser Gebühr)
Vermittlungshonorar 3,0% (+20% Ust)
Kaufvertragserrichtung/Beglaubigungskosten lt. Tarif
Finanzierungskosten lt. Bank

Anmerkung:
Für weitere Informationen oder einen Besichtigungstermin stehen wir Ihnen gerne jederzeit unverbindlich zur Verfügung. Rufen Sie uns einfach an (05223/52204) oder senden Sie uns eine E-Mail (info@jindra-immobilien.at).
© sämtlicher Fotos/Abbildungen Jindra Immobilien
Wir bitten um Verständnis, dass wir unserer Nachweispflicht nachkommen müssen und wir Anfragen nur unter Angabe der vollständigen Kontaktdaten (Vorname, Nachname, Adresse, Telefonnummer, E-Mail) beantworten können!

Das Angebot ist freibleibend. Die Angaben erfolgen aufgrund der Informationen und Unterlagen die uns als Jindra-Hellebrand Immobilien e.U. vom Eigentümer und von Dritten zur Verfügung gestellt wurden und sind somit ohne Gewähr.

 

 Infrastruktur / EntfernungenGesundheitArzt <1.000mApotheke <1.000mKlinik <5.500mKrankenhaus <5.500mKinder & SchulenSchule <500mKindergarten <1.000mUniversität <5.000mNahversorgungSupermarkt <1.000mBäckerei <1.000mEinkaufszentrum <10.000mSonstigeBank <1.000mGeldautomat <1.500mPost <1.500mPolizei <1.000mVerkehrBus <1.000mAutobahnanschluss <500mBahnhof <1.000mStraßenbahn <9.500mAngaben Entfernung Luftlinie / Quelle: OpenStreetMap
Agent Name

Robert T. Jindra-Hellebrand

Jindra Immobilien GmbH

info@jindra-immobilien.at

Energie/Heizung

Heizungsart: Zentralheizung

Befeuerung: Gas

HWB (kWh/m²/Jahr): 65

HWB Energieklasse: C

fGEE: 1.24

Anbieter

Agent Name

Robert T. Jindra-Hellebrand

info@jindra-immobilien.at

Anfragen

Ergebnisse werden geladen ...