7247 m² 2.800.000 €

Moderne Produktions- und Lagerhalle | 3.057 m² Nutzfläche | 7.247 m² Grundstück | PV-Anlage | 6,35 m Raumhöhe – St. Pölten

23.03.2026

Objekt Standort

A-3105 St. Pölten

marker Entfernung sowie Fahrtzeit (PKW) zu deinem Standort berechnen
oder
Die Route konnte nicht ermittelt werden

Allgemeine Informationen

Objekt ID: 6268/213
  • Vergabeart
    Kauf
  • Kaufpreis
    2.800.000 €
  • Nutzfläche
    3057 m²
  • Grundfläche
    7247 m²

Ausstattung

  • Parkplatz

Beschreibung

Moderne Produktions- und Lagerhalle | 3.057 m² Nutzfläche | 7.247 m² Grundstück | PV-Anlage | 6,35 m Raumhöhe – St. Pölten

 

Das Wichtigste auf einen Blick

Produktions- und Lagerkomplex auf einem Grundstück von 7.247 m². Gesamtnutzfläche: 3.057 m², davon 2.492 m² Lager- und Produktionsfläche, 492 m² Büro. Lichte Raumhöhe in der Halle: 6,35 m. Das Gebäude wurde 1989 errichtet und 2025 umfassend saniert. Zustand: sehr gut. Kaufpreis: 2.800.000 € netto.

Ausstattung und Nutzung

Drei ebenerdige Hallentore, jeweils LKW-befahrbar — Fahrzeuge fahren direkt in die Halle. Die lichte Raumhöhe von 6,35 m ermöglicht den Einsatz von Hochregalsystemen und den Betrieb größerer Maschinen. Die Konstruktion erlaubt den Einsatz einer mobilen Rampe zur Be- und Entladung; eine solche ist derzeit nicht im Lieferumfang enthalten. Sämtliche Bereiche sind zentral begehbar und miteinander verbunden.

Auf dem Gelände befinden sich 15 Stellplätze.

Das Objekt ist voll erschlossen.

Sicherheit und Genehmigungen

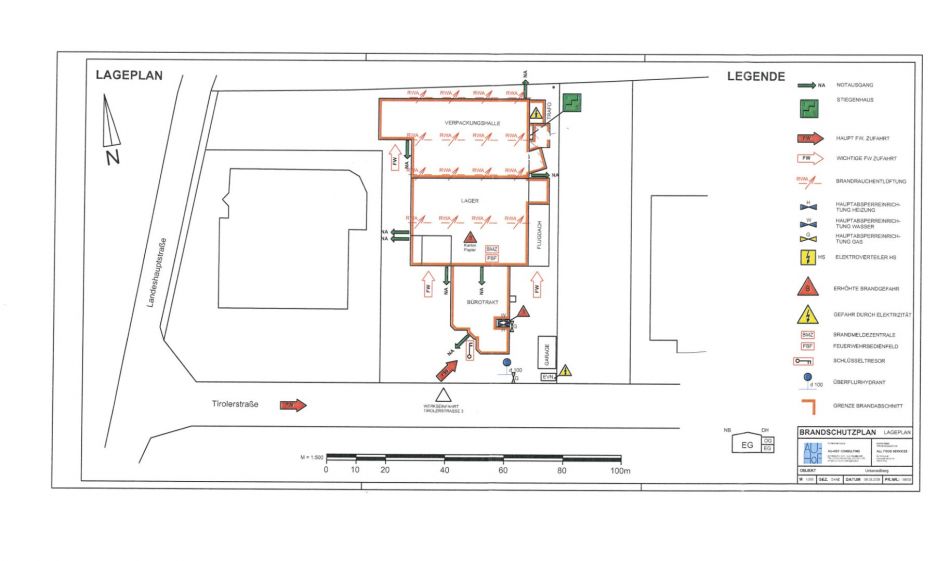
Das Gebäude wurde zuvor als lebensmittelbezogene Betriebsanlage genutzt. Die technische Infrastruktur ist entsprechend auf hohe Anforderungen ausgelegt.

Dokumentiert und genehmigt sind: Brandmeldeanlage im Vollschutz nach TRVB S 123, Brandrauchentlüftung in der Halle, Blitzschutzanlage nach ÖVE/ÖNORM sowie weitere brandschutz- und anlagentechnische Maßnahmen. Für Nutzer mit Produktions- oder Verarbeitungshintergrund bedeutet das: monatelange Genehmigungsverfahren und erhebliche Investitionen in die Gebäudetechnik entfallen.

Photovoltaikanlage auf Dach und Fassade

Auf dem Gebäude ist eine Photovoltaikanlage mit einer Gesamtleistung von rund 43 kWp installiert — 32 kWp auf dem Dach, 11 kWp an der Fassade. Der kalkulierte Jahresertrag liegt bei rund 47.300 kWh. Bei einem Strompreis von 0,25 €/kWh und vollständigem Eigenverbrauch ergibt sich eine jährliche Einsparung von rund 11.825 €. Selbst bei 90 % Eigenverbrauch liegt der Vorteil noch bei rund 10.640 € pro Jahr.

Lage und Anbindung

Entfernung zur Schnellstraße S33: 1,3 km. Entfernung zum Zentrum von St. Pölten: 8,5 km. Logistisch günstig gelegen — schneller Zugang zur Hauptverkehrsachse ohne Umwege durch Wohngebiete.

Renditebetrachtung

Bei einer kalkulatorischen Miete von 9,50 €/m² auf die Lagerfläche von 2.492 m² ergibt sich ein potenzieller Mietertrag von 23.674 € monatlich bzw. 284.088 € jährlich. Bezogen auf den Kaufpreis von 3.200.000 € entspricht dies einer rechnerischen Bruttorendite von rund 8,9 % p. a. — vor Kosten und Leerstand. Die Photovoltaikanlage bringt darüber hinaus eine zusätzliche Einsparung von knapp 11.000 € pro Jahr.


Das Objekt eignet sich für Nutzer, die eine bezugsfertige Immobilie für Produktion, Verarbeitung oder Lagerung suchen — mit bereits erteilten Genehmigungen, zeitgemäßer Energieversorgung und klarer logistischer Anbindung.
Der Vermittler ist als Doppelmakler tätig.Infrastruktur / EntfernungenGesundheitArzt <2.500mApotheke <3.000mKlinik <4.500mKrankenhaus <7.000mKinder & SchulenSchule <3.000mKindergarten <5.500mUniversität <7.000mHöhere Schule <8.000mNahversorgungSupermarkt <1.500mBäckerei <3.000mEinkaufszentrum <2.500mSonstigeBank <2.500mGeldautomat <2.500mPost <2.500mPolizei <2.500mVerkehrBus <500mAutobahnanschluss <1.000mBahnhof <1.000mAngaben Entfernung Luftlinie / Quelle: OpenStreetMap
Agent Name

Anton Iakovlev

Immolöwin GmbH

iakovleva@immoloewin.com

Energie/Heizung

Heizungsart: Zentralheizung

Befeuerung: Elektro Gas

Anbieter


Anfragen

Ergebnisse werden geladen ...