286.57 m² 899.000 € 10 Zimmer

Arbeiten & Wohnen vereint – Modernes Bürohaus mit Umwidmungspotenzial in Top-Lage!

15.11.2025

Objekt Standort

Tullnerstraße , A-3423 St. Andrä-Wördern

marker Entfernung sowie Fahrtzeit (PKW) zu deinem Standort berechnen
oder
Die Route konnte nicht ermittelt werden

Allgemeine Informationen

Objekt ID: 5585/186
  • Vergabeart
    Kauf
  • Kaufpreis
    899.000 €
  • Nutzfläche
    286.57 m²
  • Zimmer
    10
  • Provision
    32.364,00 € inkl. 20% USt.

Ausstattung

  • Einbauküche
  • Fahrstuhl
  • Abstellraum
  • Carport
  • Parkplatz

Freiflächen

  • Terrasse

Beschreibung

Arbeiten & Wohnen vereint – Modernes Bürohaus mit Umwidmungspotenzial in Top-Lage!

Modernes Geschäftshaus mit Wohnpotenzial – Neubau 2021 in gefragter Lage!

Willkommen in Ihrem künftigen Geschäfts- oder Wohnsitz – in der aufstrebenden Gemeinde Sankt Andrä-Wördern, optimal angebunden und mit hervorragender Infrastruktur! Dieses außergewöhnliche Objekt vereint modernes Arbeiten mit der Möglichkeit zur Umwidmung für kombiniertes Wohnen und Arbeiten – Flexibilität auf höchstem Niveau! 

Mit einer großzügigen Nutzfläche von ca. 286,57 m² auf drei Ebenen und durchdachter Raumaufteilung bietet dieses Domizil vielfältige Nutzungsmöglichkeiten – ob als Firmensitz, für Freiberufler, gemischte Nutzung oder als wertbeständige Investition! Das gesamte Haus ist mit elektrischen Beschattungssystemen (Zip-Außenbeschattungen, Rollläden, straßenseitig Raffstore) ausgestattet, dies sorgt für angenehmes Raumklima und Privatsphäre.


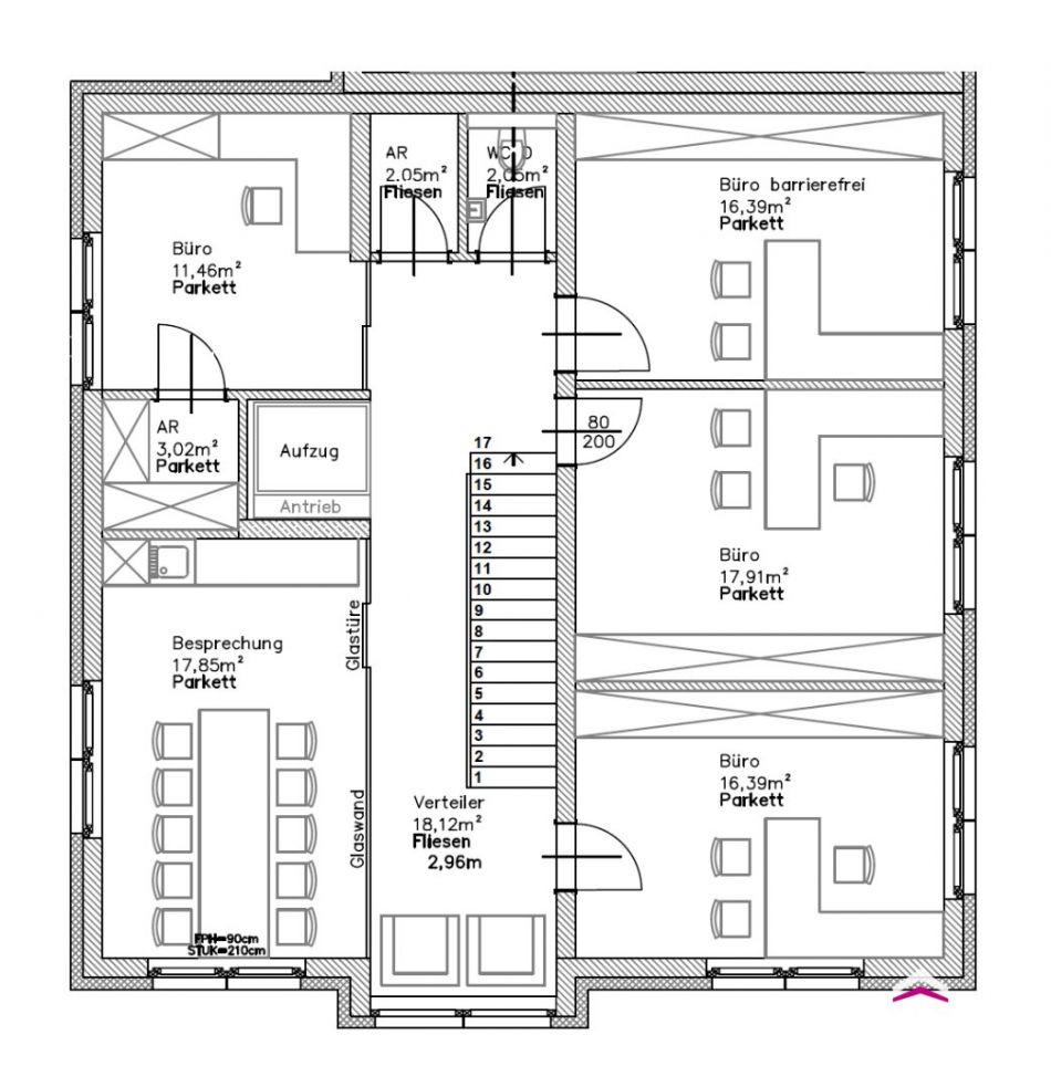
Erdgeschoss – Funktional & praktisch!

Das Erdgeschoss mit ca. 65,1 m² Nutzfläche bietet Stauraum-Räumlichkeiten, ein Badezimmer sowie eine Waschküche. Der barrierefreie Zugang und die Anbindung an den modernen Lastenaufzug garantieren komfortables und behindertengerechtes Arbeiten.

1. Obergeschoss – Großzügigkeit trifft Komfort!

Im ersten Obergeschoss erwartet Sie ein durchdachtes Raumkonzept mit mehreren lichtdurchfluteten Büroräumen. Eine große Küche auch als Besprechungsraum ideal, ein praktischer Abstellraum sowie ein WC vervollständigen diese Etage.

Die angenehme Raumhöhe und die energieeffiziente Fußbodenheizung sorgen für ein perfektes Arbeitsklima das ganze Jahr über. Der barrierefreie Zugang per Lastenaufzug macht dieses Geschoss besonders attraktiv.

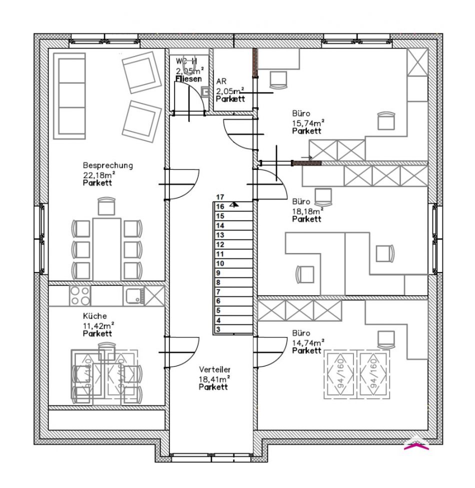
Modernes Dachgeschoss mit vielseitigem Potenzial! 

Das stilvolle Dachgeschoss besticht durch seine hochwertige Ausstattung. Große, 3-fach verglaste Velux-Dachfenster mit elektrischer Fernbedienung und Regensensor schaffen ein besonderes Wohlfühlambiente und sorgen das ganze Jahr über für angenehme Lichtverhältnisse.

Gemeinsam mit dem ersten Obergeschoss bietet die Fläche großzügige 221,47 m² und damit vielfältige Nutzungsmöglichkeiten. Neben einer Küche, einem WC und mehreren flexibel gestaltbaren Büroräumen überzeugt das Dachgeschoss vor allem durch sein attraktives Potenzial zum Umbau in eine moderne Wohnung – ideal für alle, die Arbeiten und Wohnen elegant miteinander verbinden möchten.

Die Vorbereitung für eine Klimaanlage ist bereits vorhanden – perfekt für höchsten Komfort, auch an heißen Sommertagen!

 

AUSSTATTUNG & HIGHLIGHTS


3 Stockwerke ohne Keller mit Lastenaufzug bis zur 1. OG (behindertengerecht)
6 PKW-Stellplätze, davon 4 Carport-Stellplätze mit Wallbox-Anschluss (1x Charger, 1x Vorbereitung)
Photovoltaikanlage 9-10 kW mit Stromspeicher (Südausrichtung)
Vollausgestattetes Badezimmer mit integriertem WC 
Wärmepumpe mit Fußbodenheizung – energieeffizient & nachhaltig
Velux-Fenster mit Fernbedienung & Regensensor im DG
Schallschutzglas für ruhiges Arbeiten oder Wohnen trotz Straßenlage
Größtenteils elektrische Beschattung (Zip-Außenbeschattung, Rollläden, Raffstore)
LAN-Anschluss in jedem Büroraum
LED-Band im Handlauf des Stiegenhauses
Alarmsicherung für maximale Sicherheit
Klimaanlagen-Vorbereitung im Dachgeschoss



HARD FACTS


Baujahr 2020 – Fertigstellung 2021
Ziegel-Massivbauweise
Luftwärmepumpe, hochwertige Wärmedämmung
3-fach verglaste Kunststofffenster mit Schallschutzglas
Robuster Vinylboden, im Schauraum Parkettboden
Beschattung: Größtenteils elektrisch steuerbar (Zip, Rollläden, Raffstore)
Waschküche im Erdgeschoss



WIDMUNG & POTENZIAL

Derzeit: Bürowidmung im Bauland-Kerngebiet
Potenzial: Umwidmung in Wohnnutzung oder gemischte Nutzung (Wohnen & Arbeiten) möglich – seitens der Eigentümer bereits geprüft!

Diese Flexibilität eröffnet vielfältige Nutzungsszenarien: vom reinen Geschäftssitz über Co-Working-Spaces bis hin zu modernen Wohneinheiten oder der perfekten Kombination aus beidem!


INFRASTRUKTUR

Ideale Lage: Alle Nahversorger in unmittelbarer Nähe, ein Billa-Markt wird in Kürze eröffnet. Das Ortszentrum ist in nur 5 Gehminuten erreichbar. Die Gemeinde Sankt Andrä-Wördern bietet alle erforderlichen Einrichtungen: Ärzte, Apotheke, Schule, Kindergarten sowie diverse Einkaufsmöglichkeiten.

Restaurants, Cafés und Freizeitmöglichkeiten an der nahen Donau runden das Angebot ab. Die Region zeichnet sich durch hohe Wohn- und Lebensqualität aus.


ÖFFENTLICHE ANBINDUNG


St. Andrä-Wördern Bahnhof S40 – optimale Pendleranbindung
Bus-Anbindung 411 nur 314 m entfernt
Busanbindung an Tullnerfeld Bahnhof
Gute Straßenanbindung durch Straßenlage



PARKPLÄTZE & E-MOBILITÄT


6 PKW-Stellplätze insgesamt
4 Carport-Stellplätze
Wallbox-Anschluss installiert (1x Charger aktiv)
1x Vorbereitung für weiteren E-Ladeanschluss
Zukunftssicher für Elektromobilität!



ENERGIEEFFIZIENZ & NACHHALTIGKEIT

Dieses Objekt wurde mit Fokus auf Energieeffizienz und Nachhaltigkeit errichtet:


Hochwertige Wärmedämmung
Wärmepumpe für umweltfreundliches Heizen
Fußbodenheizung auf allen Ebenen
Photovoltaikanlage 9-10 kW mit Stromspeicher (Südausrichtung)
3-fach verglaste Fenster für optimale Isolierung
Geringe Betriebskosten durch moderne Technik



SONSTIGES

Diese Immobilie steht für modernes Arbeiten mit Zukunftsperspektive – hochwertige Ausstattung, energieeffiziente Bauweise und die einzigartige Möglichkeit zur Umwidmung machen dieses Objekt zu einer außergewöhnlichen Investition! Ob als Firmensitz, Praxisräumlichkeiten, Co-Working-Space oder als kombinierte Wohn- und Arbeitsstätte – die Möglichkeiten sind vielfältig! Vereinbaren Sie noch heute Ihren Besichtigungstermin und überzeugen Sie sich selbst von diesem einzigartigen Objekt!

Das Haus kann wahlweise um EUR 899.000,- (ohne ausgewiesene Mehrwertsteuer) oder um netto EUR 849.000,- zzgl. 20 % USt. (brutto EUR 1.018.800,-) erworben werden.

KAUF-NEBENKOSTEN-ÜBERSICHT
Maklerhonorar: 3% zzgl. 20% USt.
Grundbuchseintragungsgebühr: 1,1%
Grunderwerbssteuer: 3,5%
Kaufvertragserrichtung 1-3% plus USt. plus Barauslagen

Besichtigungen können jederzeit nach telefonischer oder schriftlicher Voranmeldung vereinbart werden! FEELING HOME freuet sich auf Ihre Kontaktaufnahme!

Nutzen Sie die Gelegenheit und profitieren Sie zudem von der Gebührenbefreiung seit 1.04.2024 (1,1% Grundbuch-Eintragungsgebühr, 1,2% Eintragungsgebühr der Pfandurkunde bis EUR 500.000,- KP) beim Kauf vom Eigenheim! Sie sparen diese Gebühren im Zeitraum vom 01. Juli 2024 bis 30. Juni 2026 und profitieren schon jetzt davon! Im neuen Haus melden Sie für die nächsten fünf Jahre Ihren Hauptwohnsitz an.

Bitte haben Sie Verständnis, dass wir aufgrund der Nachweispflicht gegenüber dem Eigentümer nur Anfragen mit vollständiger Anschrift und Telefonnummer beantworten können. 

Die Daten stammen direkt vom Eigentümer. Eine Haftung für deren Richtig- oder Vollständigkeit kann nicht übernommen werden. Änderungen und Irrtümer vorbehalten.

Haben Sie eine Immobilie zu vermieten oder zu verkaufen? Vereinbaren Sie noch heute Ihren kostenlosen Beratungstermin unter 0660 34 69 538 oder unter christiani@feeling-home.at.

»Zusätzlich bieten Ihnen meine Geschäftspartner eine kompetente Finanzierungsbegleitung zu aktuellen Bestkonditionen an. Fragen Sie mich sehr gern danach!«
Der Vermittler ist als Doppelmakler tätig.Infrastruktur / EntfernungenGesundheitArzt <250mApotheke <500mKrankenhaus <7.250mKlinik <5.500mKinder & SchulenSchule <500mKindergarten <250mUniversität <4.250mNahversorgungSupermarkt <250mBäckerei <750mSonstigeBank <250mGeldautomat <250mPost <500mPolizei <500mVerkehrBus <250mAutobahnanschluss <6.500mBahnhof <1.500mFlughafen <6.500mAngaben Entfernung Luftlinie / Quelle: OpenStreetMap
Agent Name

Helene Christiani

FEELING HOME IMMOBILIEN

christiani@feeling-home.at

Energie/Heizung

Befeuerung:

HWB (kWh/m²/Jahr): 34.1

HWB Energieklasse: B

fGEE: 0.66

fGEE Energieklasse: A+

Anbieter

Agent Name

Helene Christiani

christiani@feeling-home.at

Anfragen

Ergebnisse werden geladen ...