320 m² 5.350 €

SERFAUS - attraktive Geschäftsfläche in Premiumlage!

29.12.2025

Objekt Standort

Dorfbahnstraße , A-6534 Serfaus

marker Entfernung sowie Fahrtzeit (PKW) zu deinem Standort berechnen
oder
Die Route konnte nicht ermittelt werden

Allgemeine Informationen

Objekt ID: 494
  • Vergabeart
    Miete
  • monatliche kosten
    5.350 €
  • Nutzfläche
    320 m²
  • Provision
    2 Bruttomonatsmieten zzgl. 20% USt.

Beschreibung

SERFAUS - attraktive Geschäftsfläche in Premiumlage!

Zur Vermietung gelangt eine ansprechende Geschäftsfläche in Top Lage von Serfaus, zur vielseitigen Nutzung: 


Verkaufsfläche, Studio, Büro, Praxis, Showroom


Die zentrale Lage ist perfekt zugänglich und ideal angebunden. Sie gilt als repräsentativ und bietet Ihnen den entscheidenden Standortvorteil.


Serfaus-Fiss-Ladis ist eine der begehrtesten Tourismusregionen Tirols und bietet sowohl im Sommer als auch im Winter Urlaubserlebnisse der Spitzenklasse. Sie haben nunmehr die Chance, sich in alpiner Traumlage unternehmerisch zu verwirklichen. 


 


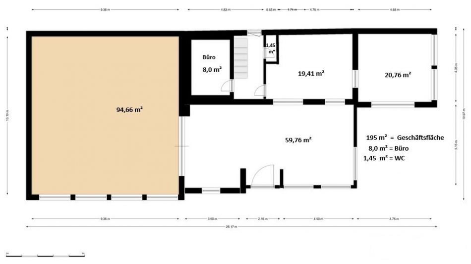
Die Nutzflächen im Detail: 




  • Geschäftsfläche, 195 m² 




  • Büro, 8,0 m² 




  • WC, 1,45 m² 




  • Abstell-/Kellerräume, 120 m²




  • Nebengebäude, 45 m² 




 


Ihr Kontakt zu uns:


markus@geos.cc


+4369919076108 


 


 


Bitte beachten Sie:


Wir sind gegenüber unserem Auftraggeber nachweispflichtig und bitten daher im Zuge Ihrer Anfrage um Übermittlung Ihrer kompletten Kontaktdaten, andernfalls kann Ihre Anfrage nicht bearbeitet werden. Alle Angaben und erteilten Informationen beruhen auf Aussagen und Unterlagen des Eigentümers. Es gelten unsere Allgemeinen Geschäftsbedingungen. Alle Angaben, inkl. Mietzinsangaben sind unverbindlich und freibleibend. Nebenkosten bei Abschluss des Mietvertrages: Vergebührung Finanzamt, Vermittlungshonorar (2 BMM), Vertragskosten (ca. € 1.500.-). Dieses Offert ist unverbindlich und freibleibend, Zwischenvermietung vorbehalten. Alle Angaben sind ohne Gewähr von Richtigkeit und Vollständigkeit / Irrtum vorbehalten.  


Der Vermittler ist als Doppelmakler tätig.


Infrastruktur / Entfernungen

Gesundheit
Arzt <350m
Apotheke <800m
Klinik <1.750m
Kinder & Schulen
Schule <50m
Kindergarten <75m
Nahversorgung
Supermarkt <175m
Bäckerei <175m
Sonstige
Bank <150m
Geldautomat <2.050m
Polizei <575m
Post <25m
Verkehr
Bus <175m
Bahnhof <100m
U-Bahn <100m
Angaben Entfernung Luftlinie / Quelle: OpenStreetMap

Agent Name

Markus Ortler

GEOS Spezialbau GmbH

markus@geos.cc

Energie/Heizung

Befeuerung: Pellets

Anbieter


Anfragen

Ergebnisse werden geladen ...