190 m² 9 Zimmer

Ein Ort zum Aufatmen & Wohlfühlen – charmantes Zuhause für Naturliebhaber, Familien & Generationen! Provisionsfrei!

02.09.2025

Objekt Standort

Kirchenviertel , A-8255 Sankt Jakob im Walde

marker Entfernung sowie Fahrtzeit (PKW) zu deinem Standort berechnen
oder
Die Route konnte nicht ermittelt werden

Allgemeine Informationen

Objekt ID: 3980
  • Vergabeart
    Kauf
  • Wohnfläche
    190 m²
  • Nutzfläche
    310 m²
  • Grundfläche
    729 m²
  • Zimmer
    9

Ausstattung

  • Sauna
  • Möbeliert/Teilmöbeliert

Freiflächen

  • Balkon
  • Garten
  • Terrasse

Beschreibung

Ein Ort zum Aufatmen & Wohlfühlen – charmantes Zuhause für Naturliebhaber, Familien & Generationen! Provisionsfrei!

Dieses großzügige Wohnhaus auf ca. 950 m Seehöhe besticht durch seine sonnige, idyllische Lage inmitten unberührter Natur – umgeben von Wiesen, Wäldern und drei Bauernhöfen. Die Wohnfläche von ca. 190 m² verteilt sich auf zwei separat nutzbare Wohneinheiten, ergänzt durch drei Terrassen, einen Balkon, einen gepflegten Garten mit Fischteich, Obstbäumen und blühenden Sträuchern sowie zusätzlichen Nutzflächen im Untergeschoss.


Das Haus ist wie folgt aufgeteilt:



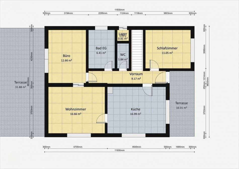
  • Wohngeschoss (ca. 95m2): zentrales Vorzimmer, Wohnküche, Wohnzimmer mit Kamin, 2 Schlafzimmer, modernes Bad mit Fenster, WC extra,  zuzügl. 2 Terrassen (ostseitig und große Westterrasse)

  • Obergeschoss (ca, 95m2): kleine Wohnküche, offen zu Wohnzimmer, 3 Schlafzimmer, Duschbad mit Fenster, extra WC, zuzügl. Ostterrasse und großer Süd-Westbalkon mit traumhaftem Fernblick.

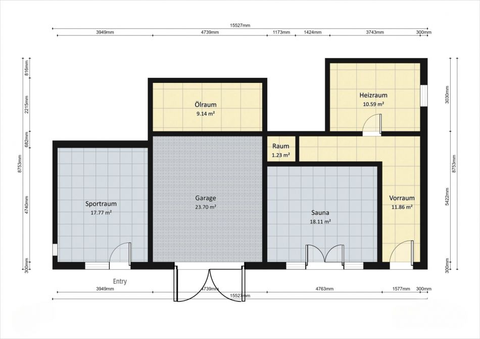
  • Untergeschoss (ca. 120m2): Keller mit Heizraum (Öl-Zentralheizung auf Holz umschaltbar), Saunaraum mit Dusche, Sportraum mit Fitnessgeräten, Garage für 2 PKW geeignet.


Besonderheiten:



  • Zwei getrennte Wohnbereiche – ideal für zwei Familien oder als Generationenhaus

  • Auch als Zweitwohnsitz oder Ferienimmobilie bestens geeignet

  • Guter Zustand

  • Ruhige, sonnige Lage mit herrlicher Aussicht

  • Provisionsfrei – direkt vom Eigentümer!


Ein perfektes Zuhause für Naturfreunde und Ruhesuchende – oder ein attraktiver Rückzugsort für Wochenenden und Ferien.
Kontaktieren Sie uns gerne für weitere Informationen oder einen Besichtigungstermin – wir freuen uns auf Ihre Anfrage!


Hinweis gemäß Energieausweisvorlagegesetz: Ein Energieausweis wurde vom Eigentümer bzw. Verkäufer, nach unserer Aufklärung über die generell geltende Vorlagepflicht, sowie Aufforderung zu seiner Erstellung noch nicht vorgelegt. Daher gilt zumindest eine dem Alter und der Art des Gebäudes entsprechende Gesamtenergieeffizienz als vereinbart. Wir übernehmen keinerlei Gewähr oder Haftung für die tatsächliche Energieeffizienz der angebotenen Immobilie.


Wir weisen darauf hin, dass zwischen dem Vermittler und dem zu vermittelnden Dritten ein familiäres oder wirtschaftliches Naheverhältnis besteht.


Infrastruktur / Entfernungen

Gesundheit
Arzt <4.025m
Kinder & Schulen
Schule <3.700m
Kindergarten <3.700m
Nahversorgung
Supermarkt <4.125m
Bäckerei <4.100m
Sonstige
Post <1.400m
Geldautomat <4.750m
Bank <4.075m
Polizei <4.075m
Verkehr
Bus <200m
Angaben Entfernung Luftlinie / Quelle: OpenStreetMap

AKTUELL Immobilien GmbH
Agent Name

Anna Pötz

AKTUELL Immobilien GmbH

nicole.gruber@aktuell-imm.at

Energie/Heizung

Heizungsart: Zentralheizung

Befeuerung: Öl

Anbieter


Anfragen

Ergebnisse werden geladen ...