106.32 m² 395.000 € 3 Zimmer

Exklusiver Bungalow– modernes Neubauprojekt in Raab zu kaufen

28.03.2026

Objekt Standort

A-4760 Raab

marker Entfernung sowie Fahrtzeit (PKW) zu deinem Standort berechnen
oder
Die Route konnte nicht ermittelt werden

Allgemeine Informationen

Objekt ID: 5950/4474
  • Vergabeart
    Kauf
  • Kaufpreis
    395.000 €
  • Wohnfläche
    106.32 m²
  • Grundfläche
    500 m²
  • Zimmer
    3
  • Provision
    3% des Kaufpreises zzgl. 20% USt.

Ausstattung

  • Swimming-Pool
  • Garage

Freiflächen

  • Garten

Beschreibung

Exklusiver Bungalow– modernes Neubauprojekt in Raab zu kaufen

Exklusiver Bungalow – modernes Neubauprojekt in Raab zu kaufen 

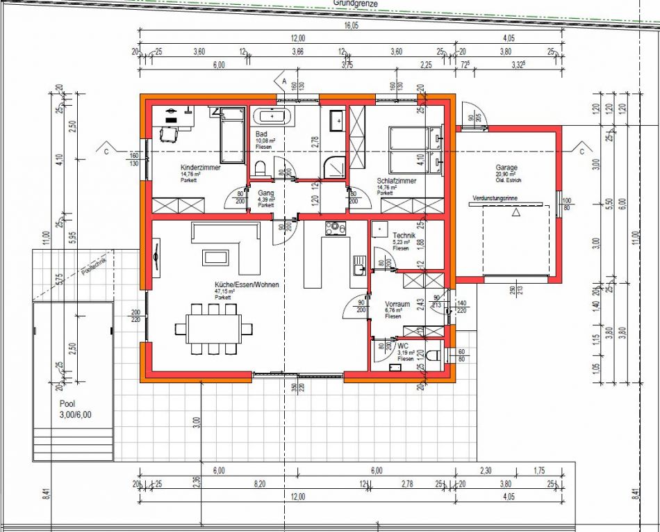
Dieser moderne Bungalow überzeugt durch seine klare Architektur, eine durchdachte Raumaufteilung und komfortables Wohnen auf einer Ebene. Das Haus wird nach einem architektonisch abgestimmten Konzept neu errichtet und bietet eine Wohnfläche von rund 106 m². Der Grundriss umfasst eine großzügige, offene Wohnküche mit Wohn- und Essbereich von ca. 47 m². Große Fensterflächen sorgen für viel Tageslicht und ermöglichen einen direkten Zugang zur Terrasse. Der offen gestaltete Wohnbereich bildet das Herzstück des Hauses und schafft eine helle und freundliche Wohnatmosphäre. Das Raumangebot wird durch ein Schlafzimmer, ein Kinderzimmer, ein Badezimmer, ein separates WC, einen Technikraum sowie einen Vorraum mit Gang, der alle Räume optimal verbindet, ergänzt. Zusätzlich verfügt der Bungalow über eine direkt angeschlossene Garage mit rund 21 m², die einen komfortablen Zugang zum Haus bietet. Im Gartenbereich besteht die Möglichkeit zur Errichtung eines Pools (ca. 3 x 6 m), der gegen Aufpreis ausgeführt werden kann. Der Bungalow kann wahlweise auch schlüsselfertig ausgeführt werden. Für die schlüsselfertige Ausführung fällt ein Aufpreis von EUR 55.000,- an. Der Entwurf überzeugt durch eine klare, moderne Architektur und eine funktionale Raumaufteilung und eignet sich ideal für komfortables Wohnen auf einer Ebene. Hinweis: Bei den dargestellten Bildern handelt es sich um Visualisierungen eines möglichen Bauprojekts. Änderungen in Planung, Ausführung und Ausstattung sind möglich. Auf dem Grundstück ist die Errichtung von zwei modernen Bungalows vorgesehen. Der Grundriss kann individuell an die Bedürfnisse der Käufer angepasst werden. So besteht beispielsweise die Möglichkeit, zusätzliche Schlafzimmer zu realisieren oder die Raumaufteilung flexibel zu gestalten. Auch eine Erweiterung des Gebäudes ist – vorbehaltlich behördlicher Genehmigung – grundsätzlich möglich.

Lage

In nur 5 Minuten erreichen Sie das Ortszentrum, dort finden Sie alles was Sie für ihren Alltag brauchen (Schule, Kindergarten, Lebensmittelhändler, Ärzte, ...)

Sie haben Interesse?
Ansehen lohnt sich - wir freuen uns über Ihr Interesse! Für weitere Fragen stehen wir Ihnen gerne unter der Rufnummer 0664 398 34 62 zur Verfügung. Auf Wunsch stellen wir gerne einen Kontakt zu Finanzierungsexperten her.

Rechtliche Informationen
Bitte beachten Sie, dass wir aufgrund unserer ALLEINBEAUFTRAGUNG und Nachweispflicht für den Abgeber ausschließlich Anfragen unter Angabe Ihrer VOLLSTÄNDIGEN DATEN bearbeiten können (NAME, ANSCHRIFT, E-MAIL, TELEFONNUMMER). Explizit weisen wir darauf hin, dass alle Angaben nach bestem Wissen erstellt wurden. Irrtümer, Druckfehler und Änderungen vorbehalten. Für Auskünfte und Angaben, die uns von Seiten der Eigentümer und Dritten zur Verfügung gestellt wurden, können wir keine Haftung übernehmen. 

Haben Sie die richtige Immobilie noch nicht gefunden?
Dann registriere dich hier:  https://girkinger-immobilien.at/suchagent/#section-2-113717Infrastruktur / EntfernungenGesundheitArzt <5.500mApotheke <500mKinder & SchulenSchule <4.500mKindergarten <500mNahversorgungSupermarkt <500mBäckerei <500mEinkaufszentrum <10.000mSonstigeBank <500mGeldautomat <500mPost <4.500mPolizei <5.500mVerkehrBus <500mBahnhof <4.500mFlughafen <7.000mAngaben Entfernung Luftlinie / Quelle: OpenStreetMap
Agent Name

Aldin Tahic

Thomas Girkinger Immobilien GmbH

tahic@girkinger-immobilien.at

Energie/Heizung

Befeuerung:

Anbieter


Anfragen

Ergebnisse werden geladen ...