123 m² 365.000 € 5 Zimmer

Traumlage im Ennstal! Gartenwohnung mit Hauptwohnsitzbegründung!

28.09.2025

Objekt Standort

A-8960 Niederöblarn

marker Entfernung sowie Fahrtzeit (PKW) zu deinem Standort berechnen
oder
Die Route konnte nicht ermittelt werden

Allgemeine Informationen

Objekt ID: 4734
  • Vergabeart
    Kauf
  • Kaufpreis
    365.000 €
  • Wohnfläche
    123 m²
  • Grundfläche
    1175 m²
  • Zimmer
    5

Ausstattung

  • Einbauküche
  • Parkplatz

Freiflächen

  • Balkon

Beschreibung

Traumlage im Ennstal! Gartenwohnung mit Hauptwohnsitzbegründung!

Sie sind schon länger auf der Suche nach einem Eigenheim in sonniger und absoluten ruhigen Traumlage? Und das mitten in der Schladming-Dachstein-Region? Dann wird Ihnen das Objekt sicher gefallen.

Diese helle und charmante Wohnung bietet nicht nur viel Platz, sondern auch ein durchdachtes Raumkonzept, das perfekt auf die Bedürfnisse einer großen Familie zugeschnitten ist.
Das Haus besteht aus nur zwei Wohneinheiten und wurde 1984 in Ziegelmassivbauweise erbaut. Der Zubau und Umbau erfolgte in den Jahren 2008 und 2009.“

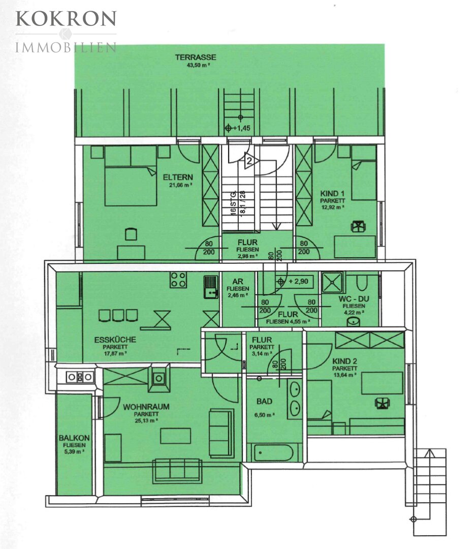
Die zum Verkauf stehende Wohnung Top 2 befindet sich im Obergeschoss (1 Zimmer - aktuell Büro im Erdgeschoss) und hat eine Größe von ca. 123 m² Wohnfläche, einen ca. 5 m² großen Balkon und einen ca. 475 m² großen herrlichen Eigengarten. Die Wohnung wurde von den Eigentümer immer gepflegt und instand gehalten.

Beheizt wird die Wohnung mittels Ölheizung und mit einem Kaminofen. 8m² Solar am Prefa-Dach. 

Hat diese Immobilie Ihr Interesse geweckt? Ich freue mich auf Ihre Anfrage! Besichtigungen sind sehr gerne auch zu Tagesrandzeiten oder am Wochenende möglich. Für weitere Fragen stehe ich Ihnen sehr gerne jederzeit zur Verfügung! Lediglich Anfragen mit vollständigem Namen, einer Telefonnummer sowie einer E-Mail-Adresse können unsererseits bearbeitet werden. Die von uns erbrachten Informationen beruhen auf Angaben des Abgebers. Für die Richtigkeit und Vollständigkeit der Angaben kann keine Gewähr bzw. Haftung übernommen werden. Änderungen vorbehalten!
 
Wir weisen darauf hin, dass zwischen dem Vermittler und dem zu vermittelnden Dritten ein familiäres oder wirtschaftliches Naheverhältnis besteht.
Der Vermittler ist als Doppelmakler tätig.Infrastruktur / EntfernungenGesundheitArzt <3.500mApotheke <9.500mKinder & SchulenSchule <3.000mKindergarten <3.000mNahversorgungSupermarkt <3.000mBäckerei <3.000mSonstigeBank <3.000mGeldautomat <3.000mPost <7.000mPolizei <7.500mVerkehrBus <500mBahnhof <1.000mFlughafen <1.000mAngaben Entfernung Luftlinie / Quelle: OpenStreetMap
Kokron Immobilien e.U.
Agent Name

Mele Bell

Kokron Immobilien e.U.

bell@kokron-immobilien.at

Energie/Heizung

Befeuerung: Öl

HWB (kWh/m²/Jahr): 128

HWB Energieklasse: D

fGEE: 1.53

fGEE Energieklasse: C

Anbieter


Anfragen

Ergebnisse werden geladen ...