419 m² 429.000 €

Neuhofen an der Krems, Gasthof mit Kleinwohnungen und Zimmer zu kaufen! PROVISIONSFREI

01.03.2025

Objekt Standort

A-4501 Neuhofen an der Krems

marker Entfernung sowie Fahrtzeit (PKW) zu deinem Standort berechnen
oder
Die Route konnte nicht ermittelt werden

Allgemeine Informationen

Objekt ID: 5950/4094
  • Vergabeart
    Kauf
  • Kaufpreis
    429.000 €
  • Nutzfläche
    341.15 m²
  • Grundfläche
    419 m²
  • Provision
    Provision bezahlt der Abgeber.

Ausstattung

  • Abstellraum

Beschreibung

Neuhofen an der Krems, Gasthof mit Kleinwohnungen und Zimmer zu kaufen! PROVISIONSFREI

Neuhofen an der Krems, Gasthof mit Kleinwohnungen und Zimmer zu kaufen! PROVISIONSFREI

Sie suchen nach einer vielversprechenden Anlageimmobilie in einer aufstrebenden Region? Dann haben wir genau das Richtige für Sie! In der idyllischen Gemeinde Neuhofen an der Krems, nur wenige Minuten vom Haid Center entfernt, steht ein beeindruckendes Zinshaus zum Verkauf. Mit einer Nutzfläche von 341 m² (exkl. Keller und Rohdachboden) und einem Kaufpreis von 429.000,00 NETTO + MWST€ bietet diese Immobilie vielfältige Nutzungsmöglichkeiten.

Das Gebäude umfasst eine großzügige Gewerbefläche im Erdgeschoss samt Kleinwohnung sowie Zimmer im ersten Obergeschoss. Die Immobilie wurde in den letzten Jahren teilweise saniert, darunter die Heizung und die Zimmer/Gaststätte. Das Dachgeschoss bietet weiteres Potenzial zur Ausbaumöglichkeit, z. B. in Form von Kleinwohnungen oder einem zusätzlichen Gästebereich.

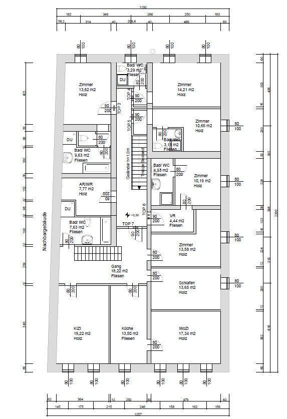
Etagenaufteilung

EG : ca. 156,17 m² (Gasthaus, WCs, Kleinwohnung)
1.OG: ca. 184,98 m² (verschiedene Zimmer mit Bädern und WCs, Küche)
DG :  ca. 165 m² Rohdachboden
KG: ca. 58 m² Kellerfläche (Heizraum, Tankraum, Lagerraum, Getränkekeller und Weinlager)

Lage
Das Objekt befindet sich in unmittelbarer Nähe des Haid Centers und ist bestens an den öffentlichen Verkehr angebunden. Eine Bushaltestelle ist nur wenige Meter entfernt, und auch die Zugstation ist fußläufig erreichbar. In der Umgebung finden Sie alle wichtigen Einrichtungen wie Nahversorger, Banken, Kindergarten, Schulen, Ärzte, Apotheken und vieles mehr – alles bequem zu Fuß erreichbar.

Sie haben Interesse?

Ansehen lohnt sich - wir freuen uns über Ihr Interesse! Für weitere Fragen stehen wir Ihnen gerne unter der Rufnummer 0664 386 26 80 zur Verfügung.

Rechtliche Informationen

Bitte beachten Sie, dass aufgrund unserer ALLEINBEAUFTRAGUNG und Nachweispflicht für den Abgeber ausschließlich Anfragen unter Angabe Ihrer VOLLSTÄNDIGEN DATEN bearbeiten können ( NAME,ANSCHRIFT, E MAIL, Telefonnummer).
Explizit weisen wir daraufhin , dass alle Angaben nach besten Wissen erstellt wurden . Irrtümer , Druckfehler und Änderungen vorbehalten.
Für Auskünfte u. Angaben, die uns von Seiten der Eigentümer und Dritten zur Verfügung gestellt wurden, können wir keine Haftung übernehmen. Besichtigungen u. Beratungen erfolgen kostenlos , lediglich im Falle einer erfolgreichen Vermittlung ist die gesetzliche Provision zur Zahlung fällig.
Agent Name

Thomas Thomas

Thomas Girkinger Immobilien GmbH

office@girkinger-immobilien.at

Energie/Heizung

Befeuerung: Öl

HWB (kWh/m²/Jahr): 101

HWB Energieklasse: D

fGEE: 1.76

fGEE Energieklasse: D

Anbieter


Anfragen

Ergebnisse werden geladen ...