170.19 m² 2.173 € 5 Zimmer

ERSTBEZUG! Doppelhaushälfte mit 170 m2 Wohnfläche in ruhiger Wohnlage mit Grünblick!

23.11.2025

Objekt Standort

A-3001 Mauerbach

marker Entfernung sowie Fahrtzeit (PKW) zu deinem Standort berechnen
oder
Die Route konnte nicht ermittelt werden

Allgemeine Informationen

Objekt ID: 5522
  • Vergabeart
    Miete
  • monatliche kosten
    2.173 €
  • Kaution
    10000€
  • Wohnfläche
    170.19 m²
  • Zimmer
    5
  • Provision
    Gemäß Erstauftraggeberprinzip bezahlt der Abgeber die Provision.

Ausstattung

  • Rolladen
  • Abstellraum
  • Parkplatz

Freiflächen

  • Balkon
  • Garten
  • Terrasse

Beschreibung

ERSTBEZUG! Doppelhaushälfte mit 170 m2 Wohnfläche in ruhiger Wohnlage mit Grünblick!

ERSTBEZUG, Doppelhaushälfte in Untermauerbach in absoluter Grünruhelage! Haus 5A / 5B


+ Ziegelmassivbauweise 
+ 2 Parkplätzen vor der Tür
+ Fussbodenheizung mittels effizienter Vaillant Erdwärmepumpe
+ Fussbodenkühlung mittels Erdwärmepumpe
+ Inklusive Küche, Badezimmerausstattung und Zentralstaubsauger 
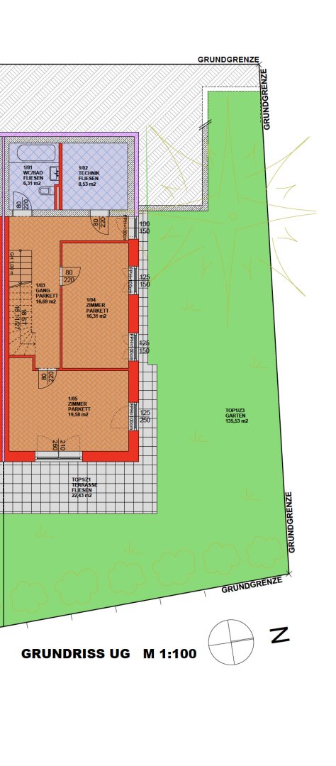
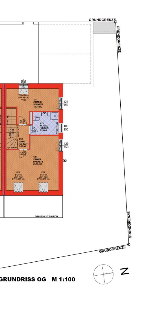
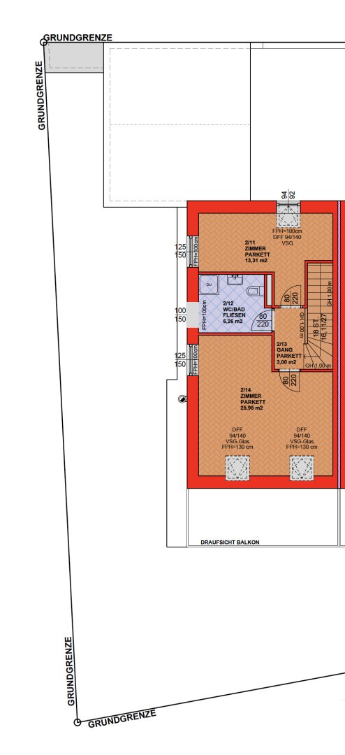
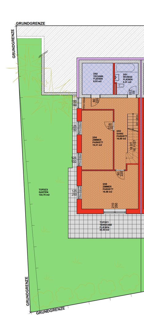
+ 5 Zimmer, 170,19 m² Wohnnutzfläche, 22,43 m² Terrasse, 13,80 m2 Balkon, Haus A mit 135,53 m² Garten bzw. Haus B mit 133,70 m² Garten
+ bereits fertiggestellt und sofort bezugsbereit!


Vermietet wird eine Doppelhaushälfte in Ziegelmassivbauweise in Untermauerbach welche neu errichtet wurde. Das Haus verfügt über 5 Zimmer und die Wohnfläche beläuft sich auf 170,19 m2 aufgeteilt auf drei Geschosse. Der Garten ist 133,70 m2 groß. Das Haus ist bereits fertiggestellt und kann sofort bezogen werden. 


Das Haus teilt sich wie folgt auf: 


Erdgeschoß mit 49,46 m2:


- ein großzügiger Eingangsbereich
- eine 35 m2 große Wohnküche mit Ausgang zum 13,80 m2 großen Balkon
- ein separate Toilette mit Handwaschbecken und Fenster 


Im 72,21 m2 großen Untergeschoss:
- ein geräumiger Flur von dem aus alle Räume separat begehbar sind
- ein 19,58 m2 großes, helles Schlafzimmer mit Zugang zur 22,43 m2 großen Terrasse und 133,70 m2 großen Garten 
- ein weiteres zirka 16,31 m2 großes Schlafzimmer
- ein geräumiges Badezimmer mit Badewanne und Toilette
- ein Technikraum 


Im 48,82 m2 großen Obergeschoss:


- ein 13,31 m2 Arbeits- oder Schlafzimmer
- ein geräumiges Badezimmer mit Dusche und Toilette
- ein 25,95 m2 großes Schlafzimmer


Es sind 2 Autoabstellplätze vorhanden. Die Beheizung und Kühlung erfolgt über eine Fußbodenheizung bzw. Fussbodenkühlung mit einer effizienten Erdwärmepumpe von Vaillant. Ein 375 Liter Warmwasserspeicher ist installiert. 


Infrastruktur:


Die Lage des Hauses ist als absolute Ruhelage in einer Wohnsiedlung zu bezeichnen. Der nächstgelegene Bahnhof befindet sich 4,5 km entfernt und ist der Bahnhof Hadersdorf ( Schnellbahn 50) im 14. Wiener Gemeindebezirk. Supermärkte, Billa und Spar befindet sich auf der Hauptstraße in Mauerbach. Der nächstgelegene Kindergarten und die Volksschule sowie die nächste Apotheke befinden sich ebenfalls in Mauerbach, 4 Autominuten entfernt. Das Einkaufszentrum Auhof und die A1 Westautobahn ist in 10 Autominuten erreichbar. 


Öffentliche Verkehrsmittel: Bus 450, Bus 458, Bahnhof Hadersdorf in 4,5 km erreichbar, Schnellbahn S50 Richtung U4 Hütteldorf, U3, U6 Westbahnhof 


Kosten & Dauer:


Hauptmiete inkl. Betriebskosten und Ust: 2.390,30,- Euro pro Monat 
Heizkosten und Stromkosten nach Verbrauch! 
Kaution: 10.000 Euro 
Das Haus wird auf 5 Jahre befristet mit Verlängerungsoption vermietet. 
Verfügbar AB SOFORT! 


Verfügbare Einheiten:


Haus 5A: 170,19 m² Wohnnutzfläche, 22,43 m² Terrasse, 13,80 m2 Balkon, 135,53 m² Garten


Haus 5B: 170,19 m² Wohnnutzfläche, 22,43 m² Terrasse, 13,80 m2 Balkon, 133,70 m² Garten


Kontakt und Besichtigungstermine


Für weitere Fragen oder einen unverbindlichen und kostenlosen Besichtigungstermin kontaktieren Sie gleich Herr Bigus unter 0699 / 12 47 15 92 oder per E-Mail bigus@immobilienquartier.at oder Herr Uyar unter 0699 / 17 1059 18 oder per E-Mail uyar@immobilienquartier.at. 


Ich bitte um schriftliche Anfragen mit vollständiger Angabe Ihrer Kontaktdaten ( Name, Adresse, Telefonnummer).


Der Immobilienmakler erklärt, dass er – entgegen dem in der Immobilienwirtschaft üblichen Geschäftsgebrauch des Doppelmaklers – einseitig nur für den Vermieter tätig ist.


Infrastruktur / Entfernungen

Gesundheit
Arzt <1.000m
Apotheke <1.000m
Klinik <8.000m
Krankenhaus <7.000m
Kinder & Schulen
Schule <3.500m
Kindergarten <3.500m
Universität <4.500m
Höhere Schule <10.000m
Nahversorgung
Supermarkt <1.000m
Bäckerei <2.500m
Einkaufszentrum <4.500m
Sonstige
Geldautomat <2.000m
Bank <2.000m
Post <2.500m
Polizei <1.000m
Verkehr
Bus <500m
Straßenbahn <6.500m
U-Bahn <7.000m
Bahnhof <4.000m
Autobahnanschluss <4.500m
Angaben Entfernung Luftlinie / Quelle: OpenStreetMap

Agent Name

Peter Bigus

Immobilienquartier iQ OG

bigus@immobilienquartier.at

Anbieter


Anfragen

Ergebnisse werden geladen ...