160 m² 449.000 € 5 Zimmer

Großzügige 5-Zimmer-Wohnung in Toplage von Linz-Ebelsberg

29.10.2025

Objekt Standort

A-4030 Linz

marker Entfernung sowie Fahrtzeit (PKW) zu deinem Standort berechnen
oder
Die Route konnte nicht ermittelt werden

Allgemeine Informationen

Objekt ID: 5950/4341
  • Vergabeart
    Kauf
  • Kaufpreis
    449.000 €
  • Nutzfläche
    160 m²
  • Zimmer
    5
  • Provision
    3% des Kaufpreises zzgl. 20% USt.

Ausstattung

  • Einbauküche
  • Abstellraum

Beschreibung

Großzügige 5-Zimmer-Wohnung in Toplage von Linz-Ebelsberg

Großzügige 5-Zimmer-Wohnung in Toplage von Linz-Ebelsberg

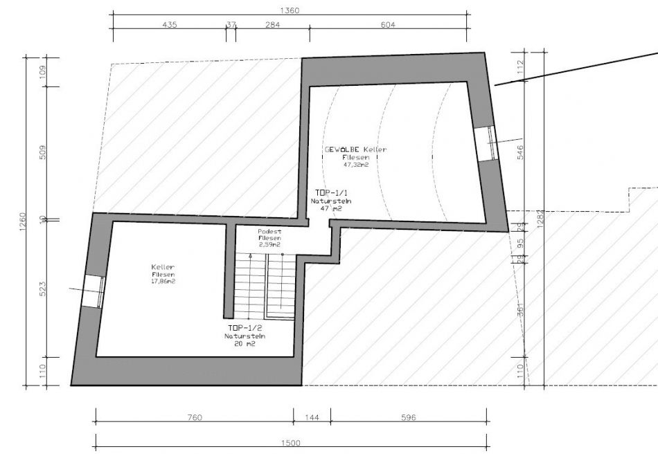
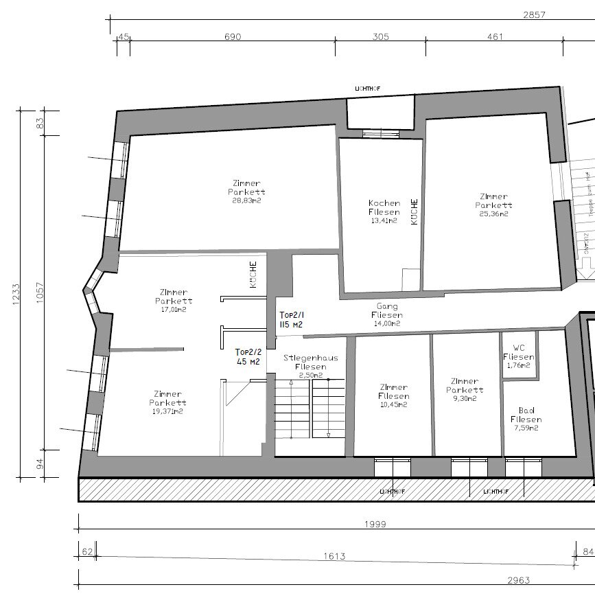
Diese großzügig geschnittene Wohnung im 2. Obergeschoss eines Wohn- und Gewerbeobjekts bietet auf ca. 160m² viel Potenzial zur individuellen Gestaltung. Mit fünf Zimmern eignet sie sich ideal für große Haushalte, Wohngemeinschaften oder als Kapitalanlage mit Entwicklungsperspektive. Die Wohnung ist sanierungsbedürftig und befindet sich in einem Gebäude, das ursprünglich um 1940 errichtet und seither mehrfach erweitert wurde. Die Wohnung ist ausschließlich über das Stiegenhaus erreichbar – ein Aufzug ist nicht vorhanden. Ein Kellerabteil ist vorhanden. 

Raumaufteilung 

Vorraum - Schlafzimmer - Küche - Kinderzimmer - Ankleideraum - Büro - Wohnzimmer - WC - Badezimmer 

Lage 

Die Wohnung punktet mit einer hervorragenden Lage und Infrastruktur: Direkt gegenüber dem Gebäude befinden sich Haltestellen für Bus und Straßenbahn, wodurch eine optimale Anbindung an das öffentliche Verkehrsnetz gewährleistet ist. Eine Kurzparkzone vor dem Haus erleichtert die Erreichbarkeit zusätzlich. Ein besonderes Highlight ist die direkte angrenzende Lage des hinteren Grundstücksteils an das Naherholungsgebiet Ebelsberger Schlossberg – ein wertvoller Grünraum, der sowohl für Wohn- als auch Gewerbenutzung einen hohen Freizeitwert bietet.

Sie haben Interesse?
Ansehen lohnt sich - wir freuen uns über Ihr Interesse! Für weitere Fragen stehen wir Ihnen gerne unter der Rufnummer 0664 386 26 80 zur Verfügung.

Rechtliche Informationen
Bitte beachten Sie, dass aufgrund unserer ALLEINBEAUFTRAGUNG und Nachweispflicht für den Abgeber ausschließlich Anfragen unter Angabe Ihrer VOLLSTÄNDIGEN DATEN bearbeiten können ( NAME,ANSCHRIFT, E MAIL, Telefonnummer).
Explizit weisen wir daraufhin , dass alle Angaben nach besten Wissen erstellt wurden . Irrtümer , Druckfehler und Änderungen vorbehalten.
Für Auskünfte u. Angaben, die uns von Seiten der Eigentümer und Dritten zur Verfügung gestellt wurden, können wir keine Haftung übernehmen. Besichtigungen u. Beratungen erfolgen kostenlos , lediglich im Falle einer erfolgreichen Vermittlung ist die gesetzliche Provision zur Zahlung fällig.
Wir weisen darauf hin, dass zwischen dem Vermittler und dem zu vermittelnden Dritten ein familiäres oder wirtschaftliches Naheverhältnis besteht.
Der Vermittler ist als Doppelmakler tätig.Infrastruktur / EntfernungenGesundheitArzt <500mApotheke <500mKrankenhaus <4.500mKlinik <3.000mKinder & SchulenKindergarten <500mSchule <1.000mUniversität <5.500mHöhere Schule <7.000mNahversorgungSupermarkt <500mBäckerei <500mEinkaufszentrum <3.500mSonstigeBank <500mGeldautomat <1.500mPost <1.500mPolizei <1.500mVerkehrBus <500mStraßenbahn <500mBahnhof <2.000mAutobahnanschluss <2.500mFlughafen <6.000mAngaben Entfernung Luftlinie / Quelle: OpenStreetMap
Agent Name

Thomas Girkinger akad.IM

Thomas Girkinger Immobilien GmbH

office@girkinger-immobilien.at

Energie/Heizung

Heizungsart: Fernwärme

Befeuerung: Gas

HWB (kWh/m²/Jahr): 121

HWB Energieklasse: D

fGEE: 1.95

fGEE Energieklasse: D

Anbieter


Anfragen

Ergebnisse werden geladen ...