5624 m²
2.445.000 €
EXZELLENT! BAUBEWILLIGTES Wohnbauprojekt in aufstrebender Nachbarschaft im Bezirk Leibnitz! Rasche Realisierung möglich!
09.10.2025
Objekt Standort
A-8430 Leibnitz
oder
Allgemeine Informationen
Objekt ID: 288196-
VergabeartKauf
-
Kaufpreis2.445.000 €
-
Nutzfläche3972 m²
-
Grundfläche5624 m²
-
Provision3% des Kaufpreises zzgl. 20% USt.
Beschreibung
EXZELLENT! BAUBEWILLIGTES Wohnbauprojekt in aufstrebender Nachbarschaft im Bezirk Leibnitz! Rasche Realisierung möglich!
EXZELLENT! BAUBEWILLIGTES Wohnbauprojekt in aufstrebender Nachbarschaft im Bezirk Leibnitz! Rasche Realisierung möglich!8430 Leibnitz, Rudolf-Hans-Bartsch-Gasse
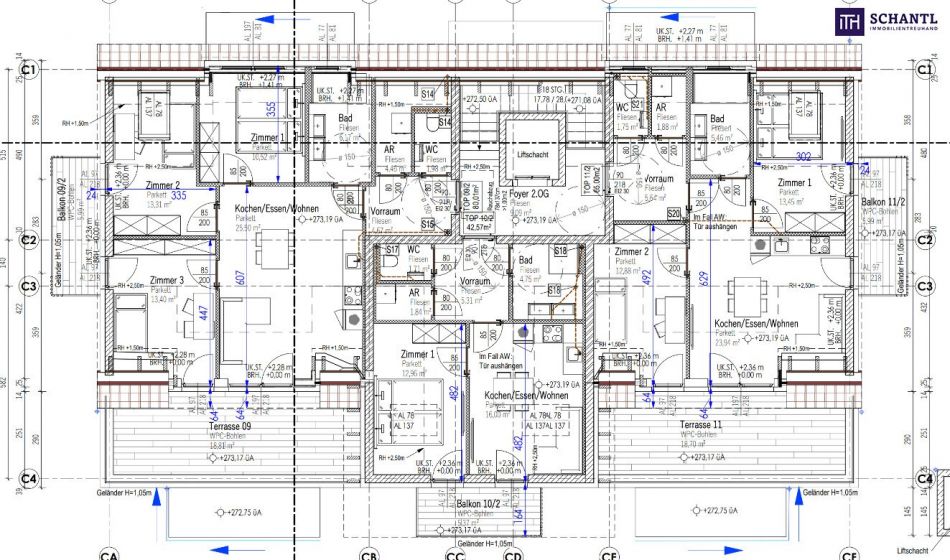
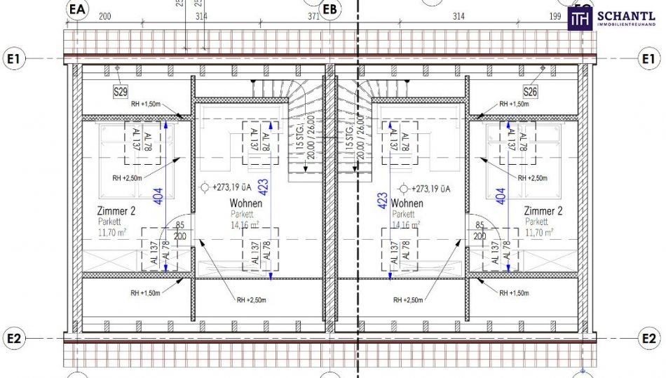
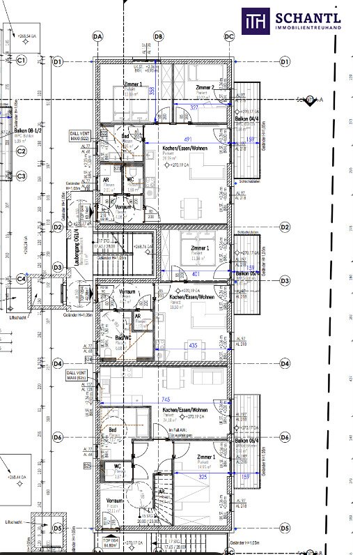
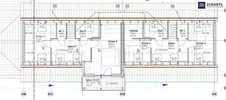
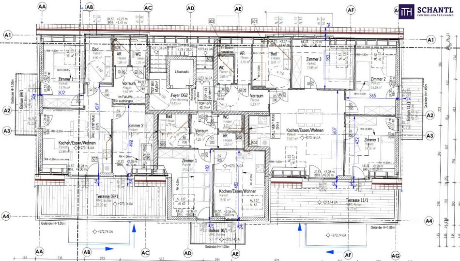
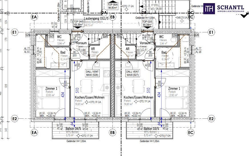
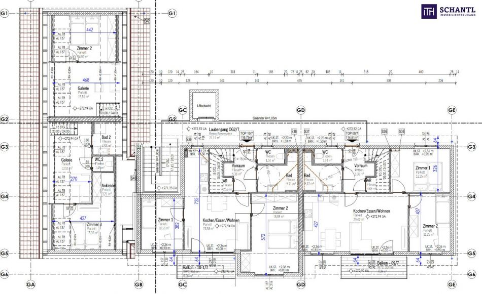
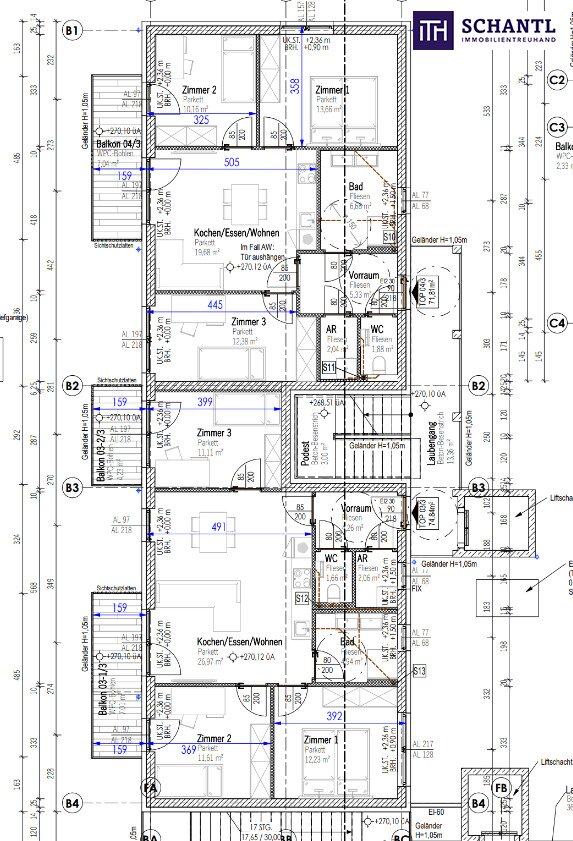
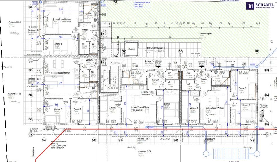
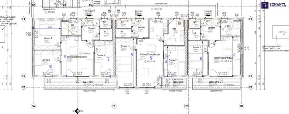
Dieses Wohnbauprojekt besticht durch die TOP Lage direkt im Zentrum des aufstrebenden Bezirkes Leibnitz. Es entstehen insgesamt 7 Bauteile mit insgesamt 59 barrierefreie Wohnungen von 41 m² bis 124 m².
Die große Tiefgarage bietet einen Platz für rund 90 PKW-Abstellplätze sowie 81 Fahrrad-Abstellplätze.
Die Wohnnutzfläche beträgt rund 3.972 m².
Kaufpreis: € 2.445.000,-- zzgl. 20 % USt
FACTS
Grundstücksgröße: ca. 5.624 m²
Gesamtwohnnutzfläche: ca. 3.971,64 m²
Geschoße: TG, EG , 1.OG, 2.OG & 3.OG
Wohneinheiten: rund 59 Wohnungen von 41 m² bis 124 m²
90 PKW-Abstellplätze sowie 81 Fahrrad-Abstellplätze
Lift in allen Bauteilen vorhanden
Baubewilligung liegt bereits vor!
HIGHLIGHTS
Erstklassige Lage: Ideal gelegen in der besten Wohngegend von Leibnitz, nur wenige Minuten vom Stadtzentrum entfernt.
Vielfältige Freizeitmöglichkeiten: In unmittelbarer Nähe finden sich zahlreiche Parks, Sporteinrichtungen und Erholungsgebiete.
Nachhaltige Bauweise: Hochwertige Materialien und innovative Techniken sorgen für eine umweltfreundliche und langlebige Konstruktion.
Wertsteigerungspotenzial: Das Projekt bietet attraktive Chancen für zukünftige Wertzuwächse in dieser gefragten Lage.
Vielfältige Wohnungstypen: Eine breite Auswahl an verschiedenen Wohnungstypen für unterschiedliche Bedürfnisse und Lebensstile.
Moderne Grundrisse: Durchdachte und funktionale Wohnungsdesigns, die den Wohnkomfort maximieren.
Großzügige Freiflächen: Attraktive Außenbereiche bieten Raum für Erholung und geselliges Beisammensein.
Hohe Lebensqualität: Eine harmonische Umgebung mit guter Infrastruktur, die das tägliche Leben angenehm gestaltet.
Gute Verkehrsanbindung: Schnelle Erreichbarkeit des Stadtzentrums und weiterer wichtiger Einrichtungen durch öffentliche Verkehrsmittel.
Familienfreundliche Umgebung: Die Nähe zu Schulen und Kindergärten macht das Projekt besonders attraktiv für Familien.
Zusammenfassung
Adresse: Rudolf-Hans-Bartsch-Gasse, 8430 Leibnitz
Geschoße: TG, EG , 1.OG, 2. OG & 3.OG
Gesamtwohnnutzfläche: ca. 3.971,64 m²
Wohneinheiten: rund 59 Wohnungen von 41 m² bis 124 m²
Tiefgaragenplätze: rund 90 PKW-Abstellplätze
Irrtum und Druckfehler vorbehalten. Alle Angaben beruhen auf Informationen des Abgebers und sind ohne Gewähr. Sämtliche Pläne und Renderings sind als Muster zu verstehen. Änderungen ausdrücklich vorbehalten.
Worauf noch warten?
Vereinbaren Sie noch heute eine Besichtigung oder eine persönliche Beratung mit uns!
Sie wollen Ihre Immobilie verkaufen? Dann sind Sie bei uns goldrichtig!
Wir sind gerne für Sie da und unterstützen Sie unverbindlich bei der Bewertung Ihrer Immobilie. Mit viel Sorgfalt stellen wir Ihnen alle wichtigen Informationen und Unterlagen zusammen, damit Sie die besten Entscheidungen treffen können.
In Kooperation mit unserer SFI Vermögenstreuhand begleiten wir Sie bei der Verwirklichung Ihres Traumobjekts und unterstützen Sie beim nachhaltigen Vermögensaufbau.
Mit unseren erfahrenen Experten sorgen wir dafür, dass Sie die besten Konditionen erhalten – damit Ihre Träume Wirklichkeit werden!
www.schantl-ith.at in Kooperation mit www.sfi-invest.com
Die Angaben über das angebotene Objekt erfolgen mit der Sorgfalt eines ordentlichen Immobilienmaklers; für die Richtigkeit solcher Angaben, die auf Informationen der über das Objekt Verfügungsberechtigten beruhen, wird keine Gewähr geleistet.
Wir weisen darauf hin, dass zwischen dem Vermittler und dem zu vermittelnden Dritten ein familiäres oder wirtschaftliches Naheverhältnis besteht.
Der Vermittler ist als Doppelmakler tätig.Infrastruktur / EntfernungenGesundheitArzt <500mApotheke <500mKrankenhaus <2.500mKinder & SchulenSchule <500mKindergarten <1.000mHöhere Schule <1.500mNahversorgungSupermarkt <500mBäckerei <500mEinkaufszentrum <500mSonstigeBank <500mGeldautomat <500mPost <1.000mPolizei <1.500mVerkehrBus <500mAutobahnanschluss <4.000mBahnhof <1.500mAngaben Entfernung Luftlinie / Quelle: OpenStreetMap

Maria Schantl, BA, MSc
Schantl ITH Immobilientreuhand GmbH
maria@schantl-ith.at