1099 m² 351.718,4 €

Ihr Premium-Bauplatz in idyllischer Lage – Grundstücke ab 850 m² - Nähe Lannach & St. Josef Oisnitz

20.01.2026

Objekt Standort

A-8503 Lannach

marker Entfernung sowie Fahrtzeit (PKW) zu deinem Standort berechnen
oder
Die Route konnte nicht ermittelt werden

Allgemeine Informationen

Objekt ID: 293403
  • Vergabeart
    Kauf
  • Kaufpreis
    351.718,4 €
  • Grundfläche
    1099 m²

Beschreibung

Ihr Premium-Bauplatz in idyllischer Lage – Grundstücke ab 850 m² - Nähe Lannach & St. Josef Oisnitz

Ihr Premium-Bauplatz in idyllischer Lage – Grundstücke ab 850 m² - Nähe Lannach & St. Josef Oisnitz


Ihr Traum beginnt hier:


Inmitten der idyllischen Hügellandschaft der Weststeiermark entstehen exklusive Baugrundstücke, die keine Wünsche offenlassen. Mit einer Gesamtfläche von rund 5.000 m² und Parzellen ab 850 m² bietet dieses Projekt Raum für Individualität und höchste Wohnqualität. Exklusives Wohnen in Best-Lage, Grundstücke für höchste Ansprüche. Diese Grundstücke sind mehr als nur Bauplätze, sie sind die Grundlage für Ihr persönliches Wohnparadies. Sichern Sie sich Ihr Stück Weststeiermark und verwirklichen Sie Ihren Traum vom exklusiven Wohnen.

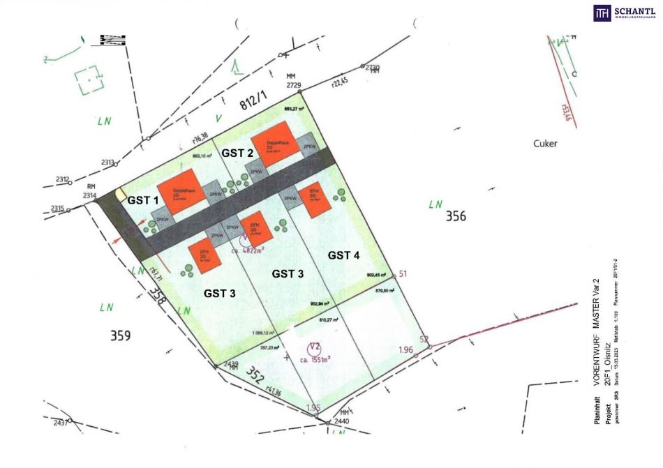
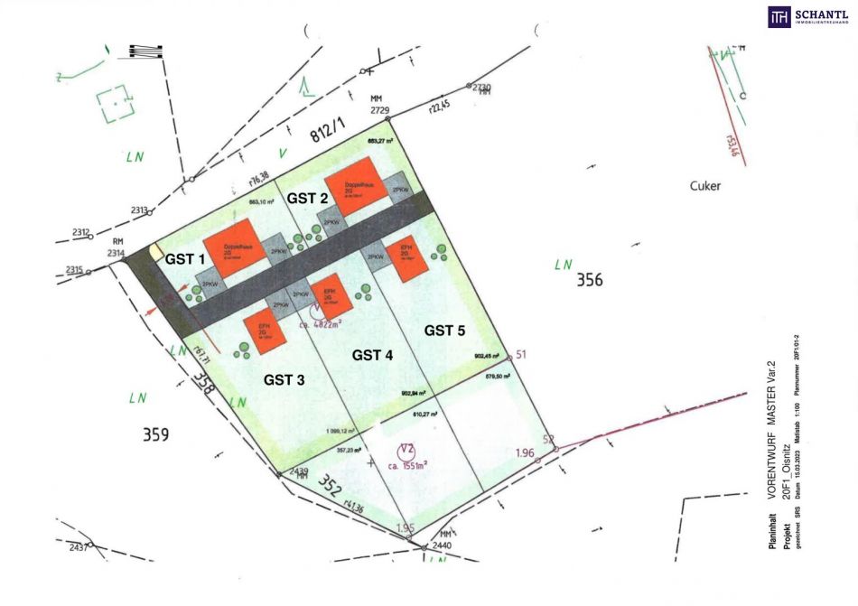
Das gesamte Bau- Grundstück beträgt gesamt 4.822m² (zur Zeit in insgesamt 5 Baugrundstücke aufgeteilt)


GST 3 - Oisitz, 8503 St. Josef:




  • Grundstücksfläche: 1.099,12 m²




  • Kaufpreis € 351.718 (€ 320/m²)




  • ebenes Grundstück!




  • Baudichte bis 0,6!




  • Errichtung von ca. 500m² Wohnfläche möglich!




  • TOP Anbindung!




  • Ganztagssonne!




  • Wohlfühlgarantie!




  • Ruhelage mit tollem Ausblick!




  • Vollerschlossen - sämtliche Anschlüsse (Wasser, Strom, Kanal) direkt am Grundstück!




  • sinnvolle Parzellierung im Sinne des Bebauungsplanes, die Mindestgröße muss jedoch 850m² betragen!




  • komplette Aufschließung an den Grundstücken!




  • Nahwärme wird angeschlossen!




  • rechtlich gesicherte und technisch geeignete Zufahrt!




  • Gefahrenfreistellung hinsichtlich Erdrutsch!




  • 3% Provision zuzüglich UST




Weitere verfügbare Grundstücke:


Zwei der Grundstücke befinden sich an der Straße!


GST 1 mit 683,10m², (geeignet für eine DHH), S-Ausrichtung, um € 150.282 (€ 220/m²)

GST 2 mit 663,27m², (geeignet für eine DHH), S-Ausrichtung, um € 145.919 (€ 220/m²)

Drei der Grundstücke befinden sich in Richtung Landwirtschaftliche Fläche, tolle Aussicht!


GST 3 mit 1.099,12m², (geeignet für EFH), S-Ausrichtung, € 351.718 (€ 320/m²), hier gibt es auch noch die Möglichkeit sein Grundstück mit LF-Nutzung zu erweitern

GST 4 mit 902,94m², (geeignet für EFH), S-Ausrichtung, € 288.940 (€ 320/m²), hier gibt es auch noch die Möglichkeit sein Grundstück mit LF-Nutzung um zu erweitern

GST 5 mit 902,45m², (geeignet für EFH), S-Ausrichtung, € 288.784 (€320/m², hier gibt es auch noch die Möglichkeit sein Grundstück mit LF-Nutzung um zu erweitern 

Ein zusätzliches Grundstück mit LF-Nutzung beträgt gesamt 1.551m², dieses kann je nach Wunsch den Grundstücken 3-5 um € 22,00 /m² hinzugefügt werden!


 


Worauf noch warten?


Vereinbaren Sie noch heute eine Besichtigung mit uns! Sie wollen Ihre Immobilie verkaufen? Dann sind Sie bei uns goldrichtig! Wir sind gerne für Sie da und unterstützen Sie unverbindlich bei der Bewertung Ihrer Immobilie. Mit viel Sorgfalt stellen wir Ihnen alle wichtigen Informationen und Unterlagen zusammen, damit Sie die besten Entscheidungen treffen können. In Kooperation mit unserer SFI Vermögenstreuhand begleiten wir Sie bei der Verwirklichung Ihres Traumobjekts und unterstützen Sie beim nachhaltigen Vermögensaufbau. Mit unseren erfahrenen Experten sorgen wir dafür, dass Sie die besten Konditionen erhalten, damit Ihre Träume Wirklichkeit werden!

www.schantl-ith.at in Kooperation mit www.sfi-invest.com 

Die Angaben über das angebotene Objekt erfolgen mit der Sorgfalt eines ordentlichen Immobilienmaklers; für die Richtigkeit solcher Angaben, die auf Informationen der über das Objekt Verfügungsberechtigten beruhen, wird keine Gewähr geleistet.

 


Der Vermittler ist als Doppelmakler tätig.


Infrastruktur / Entfernungen

Gesundheit
Arzt <3.250m
Apotheke <5.500m
Kinder & Schulen
Schule <1.500m
Kindergarten <2.500m
Nahversorgung
Supermarkt <1.750m
Bäckerei <4.750m
Sonstige
Geldautomat <1.500m
Bank <1.500m
Polizei <5.500m
Post <5.250m
Verkehr
Bus <750m
Bahnhof <2.750m
Autobahnanschluss <7.250m
Angaben Entfernung Luftlinie / Quelle: OpenStreetMap

Agent Name

Ursula Seiwald

Schantl ITH Immobilientreuhand GmbH

ursula.seiwald@schantl-ith.at

Anbieter


Anfragen

Ergebnisse werden geladen ...