162.2 m² 498.000 € 5 Zimmer

Großzügig - Geräumig - Individuell ! DIE Immobilie, die für Sie alle Stückerln spielen kann.

01.10.2025

Objekt Standort

A-3442 Langenschönbichl

marker Entfernung sowie Fahrtzeit (PKW) zu deinem Standort berechnen
oder
Die Route konnte nicht ermittelt werden

Allgemeine Informationen

Objekt ID: 4730
  • Vergabeart
    Kauf
  • Kaufpreis
    498.000 €
  • Wohnfläche
    162.2 m²
  • Nutzfläche
    167.2 m²
  • Grundfläche
    1102 m²
  • Zimmer
    5
  • Provision
    17.928,00 € inkl. 20% USt.

Ausstattung

  • Swimming-Pool
  • Rolladen
  • Garage
  • Abstellraum
  • Carport
  • Parkplatz

Freiflächen

  • Terrasse

Beschreibung

Großzügig - Geräumig - Individuell ! DIE Immobilie, die für Sie alle Stückerln spielen kann.

Großzügig - Geräumig - Individuell ! DIE Immobilie, die für Sie alle Stückerln spielen kann.

Diese Immobilie ermöglicht Ihnen viele Möglichkeiten und Arten des Wohnens und der Nutzung. Entweder Sie bewohnen die Immobilie, wie derzeit genutzt, als ein Zwei-Generationen-Haushalt auf zwei Etagen oder Sie verwandeln die Immobilie wieder in ein geräumiges Haus für eine große Familie. Ebenfalls könnte diese Immobilie im Erdgeschoss als Büro, Atelier oder Studio genutzt werden, wobei im 1.Stock weiter ruhig und komfortabel gewohnt werden kann.

Die Liegenschaft besteht aus zwei rechtlich getrennten Grundstücken, mit je einer eigenen Einlagezahl im Grundbuch. Entweder Sie nutzen somit den großzügigen Garten von ca. 1.102 m² mit dem Bestandshaus oder Sie nutzen die Möglichkeit , auf dem noch unbebauten Grundstück von  ca. 542 m² eine zusätzliche Wohnmöglichkeit neu zu errichten. Natürlich können Sie diese unbebaute Grundstücksparzelle auch veräußern und genießen somit das Bestandshaus mit seiner ca. 560 m² großen Grundstücksfläche.

Das 1928 erbaute Haus wurde im Jahre 1962 um ein Stockwerk erweitert. Somit entstanden zahlreiche Räumlichkeiten, zur Entfaltung Ihrer persönlichen Raumbedürfnisse. Der grosszügige Garten mit einem herrlichen Pool, bietet Platz für Grillabende mit der Familie und Freunden, Trampolinbereich für Ihre Kinder und diverse Stauden und Beetanlagen. Eine vollausgestattete Sommerküche ist bereits vorhanden und lädt zum kochen ein. Die bereits vorhandenen Gartenhütten, sind ideal um Werkzeug, Rasenmäher & Co zu verstauen.

Von der Straße gelangen Sie über einen überdachten Autoabstellplatz, wo sich auch die Einfahrt in die Garage befindet, in einen lichten und überdachten Eingangsbereich vor dem Haus. Von Hier gelangen Sie in den Vorraum des Hauses, in einen Teil des Hauskellers und in den Garten.

Vom Vorraum des Hauses gelangen Sie in die weiteren Räumlichkeiten des Erdgeschosses.

Räumlichkeiten:

Erdgeschoss Wohnfläche ca. 83 m²


Vorraum ca. 9,0 m²
Gang ca. 7,0 m²
Wohnraum ca. 19,0 m²
Wohnküche ca. 19,0 m²
Zimmer 1 ca. 13,0 m²
Zimmer 2 ca. 10,0 m²
Duschbad ca. 4,8 m²
Abstellraum ca. 1,0 m²


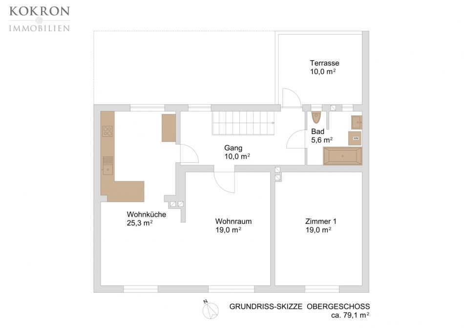
Über die zentrale und geradläufige Holzstiege gelangen Sie in das Obergeschoss.

Obergeschoss Wohnfläche ca. 79 m²


Gang ca. 10,0 m²
Wohnraum ca. 19,0 m²
Wohnküche ca. 28,5 m²
Zimmer 1 ca. 19,0 m²
Wannenbad ca. 5,8 m²
Terrasse ca. 10.0 m²


Ein ca. 80 m² großer Keller bietet mit einzelnen Räumlichkeiten viel Stauraum für Ihr Hab und Gut.

Die Lage bietet Ihnen absolute Ruhe und Naturnähe. In einer ruhigen Einfamilienhaus Siedlung mit grünen Gärten wachsen ihre Kinder stressfrei auf. Ihr neues Zuhause liegt wenige Minuten von Tulln und vom Tullnerfelder Bahnhof entfernt. Schulen, Kindergärten und Ärzte befinden sich in Tulln oder in den nahegelegenen Ortschaften. Für die Naherholung genießen Sie die angrenzenden Donauauen.

Besichtigungen:

Hat diese Immobilie Ihr Interesse geweckt? Ich freue mich auf Ihre Anfrage! Für weitere Fragen stehe ich Ihnen gerne jederzeit zur Verfügung! Lediglich Anfragen mit vollständigem Namen, einer Telefonnummer sowie einer E-Mail-Adresse können unsererseits bearbeitet werden. Die von uns bereitgestellten Informationen beruhen auf Angaben des Abgebers. Für die Richtigkeit und Vollständigkeit der Angaben kann keine Gewähr bzw. Haftung übernommen werden. Änderungen vorbehalten!

 

 
Wir weisen darauf hin, dass zwischen dem Vermittler und dem zu vermittelnden Dritten ein familiäres oder wirtschaftliches Naheverhältnis besteht.
Der Vermittler ist als Doppelmakler tätig.Infrastruktur / EntfernungenGesundheitArzt <4.500mApotheke <4.500mKlinik <4.500mKrankenhaus <7.000mKinder & SchulenSchule <3.500mKindergarten <3.500mUniversität <7.000mHöhere Schule <6.500mNahversorgungSupermarkt <4.000mBäckerei <4.000mEinkaufszentrum <6.000mSonstigeBank <5.500mGeldautomat <5.500mPost <4.000mPolizei <6.000mVerkehrBus <500mBahnhof <4.500mAutobahnanschluss <7.500mAngaben Entfernung Luftlinie / Quelle: OpenStreetMap
Kokron Immobilien e.U.
Agent Name

Thomas Nöldner

Kokron Immobilien e.U.

noeldner@kokron-immobilien.at

Energie/Heizung

Heizungsart: Zentralheizung

Befeuerung: Gas

HWB (kWh/m²/Jahr): 240

HWB Energieklasse: F

fGEE: 3.42

fGEE Energieklasse: F

Anbieter


Anfragen

Ergebnisse werden geladen ...