510.87 m² 316.800 €

Altbau-Villa mit prunkvoller Fassade in Knittelfeld zur Sanierung mit Garten und Parkplatzmöglichkeiten

10.02.2026

Objekt Standort

Seckauerstraße , A-8720 Knittelfeld

marker Entfernung sowie Fahrtzeit (PKW) zu deinem Standort berechnen
oder
Die Route konnte nicht ermittelt werden

Allgemeine Informationen

Objekt ID: 6349/456
  • Vergabeart
    Kauf
  • Kaufpreis
    316.800 €
  • Wohnfläche
    510.87 m²
  • Nutzfläche
    653.21 m²
  • Grundfläche
    623 m²
  • Provision
    3% des Kaufpreises zzgl. 20% USt.

Ausstattung

  • Abstellraum
  • Parkplatz

Freiflächen

  • Garten

Beschreibung

Altbau-Villa mit prunkvoller Fassade in Knittelfeld zur Sanierung mit Garten und Parkplatzmöglichkeiten

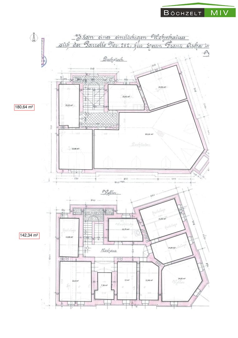
Zum Verkauf steht ein sanierungsbedürftiges Wohnhaus mit prunkvoller, gegliederter Fassade in der Seckauerstraße in Knittelfeld. Mit den nötigen Umbaumaßnahmen können dabei sechs bis neun moderne Altbauwohnungen in bester Knittelfelder Lage errichtet werden. Die 3 oberirdischen Geschosse (Erdgeschoss, 1. Obergeschoss und Dachgeschoss) weisen eine Fläche zwischen 155 - 181 m² auf, woraus sich eine Gesamtnutzfläche nach den Umbaumaßnahmen bzw. nach dem Dachgeschossausbau von ungefähr 480 m² ergibt. Das Objekt ist zudem voll unterkellert (ca. 142 m²).


Bisher wurden die jeweiligen Bestandseinheiten mit Einzelöfen beheizt. Es ist allerdings auch ein Gasanschluss im Keller vorhanden, an dem angeschlossen werden kann. Auch andere Heizungsalternativen wie z. B. Fernwärme oder eine Pelletsheizung wären denkbar, die Fernwärmeleitung liegt in der Straße, ein Anschlussangebot liegt bei Bedarf ebenfalls bereits vor. Das Objekt verfügt auch über einen großzügigen Hinterhof, der sich einerseits ideal für Eigengärten und Balkonflächen eignet, andererseits aber auch genügend Platz bietet um Parkplätze, Garagen oder Carports für künftige Mieter zu schaffen.


Aufgrund des Baujahres und des Erhaltungszustandes des Objektes würde sich auch die Sanierung unter Inanspruchnahme einer Wohnbauförderung anbieten. Mit der umfassenden Sanierung des Landes Steiermark werden 45% nicht rückzahlbare Annuitätenzuschüsse für die Sanierung gewährt. Zudem kommen Sie in den steuerlichen Genuss der 15tel Abschreibung und damit zur Reduktion Ihrer persönlichen Einkommenssteuerlast. Nähere Informationen zur umfassenden Sanierung finden Sie hier.
Wie erwähnt ist die Infrastruktur für eine geplante Wohnhaussanierung durch die unmittelbare Nähe zu Nahversorgern, Schulen, öffentlichen Verkehrsmitteln und dem Bahnhof als ideal anzusehen (fußläufig alles in ca. 5 Minuten erreichbar). Auch auch das Stadtzentrum Knittelfeld ist nur wenige Gehminuten entfernt.


Eckdaten und Ausstattungshighlights:



  • 623 m² Grundstücksgröße in perfekter Lage in Knittelfeld

  • ca. 330 m² Wohnnutzfläche im EG und 1. OG

  • ca. 181 m² Nutzfläche im Dachgeschoss

  • ca. 142 m² Kellerfläche

  • ca. 12,8 m² westseitige Terrasse

  • knapp 653 m² Gesamtnutzfläche (inkl. Keller und Dachgeschoss)

  • großzügige Gartenfläche für Freiflächen, Balkone, Stellplätze, Carports etc.

  • Fernwärme vor der Haustüre (Gasleitung im Keller)

  • Altbauvilla mit prunkvoller, gegliederter Fassade

  • Kaufpreis: 316.800 € 


Überzeugen Sie sich selbst und vereinbaren Sie noch heute einen Besichtigungstermin. Herr Weikl steht Ihnen gerne unter 0660/4740573 für Fragen und Terminvereinbarungen zur Verfügung.


Hinweis gemäß Energieausweisvorlagegesetz: Ein Energieausweis wurde vom Eigentümer bzw. Verkäufer, nach unserer Aufklärung über die generell geltende Vorlagepflicht, sowie Aufforderung zu seiner Erstellung noch nicht vorgelegt. Daher gilt zumindest eine dem Alter und der Art des Gebäudes entsprechende Gesamtenergieeffizienz als vereinbart. Wir übernehmen keinerlei Gewähr oder Haftung für die tatsächliche Energieeffizienz der angebotenen Immobilie.


Wir weisen darauf hin, dass zwischen dem Vermittler und dem zu vermittelnden Dritten ein familiäres oder wirtschaftliches Naheverhältnis besteht.


Der Vermittler ist als Doppelmakler tätig.


Infrastruktur / Entfernungen

Gesundheit
Arzt <750m
Apotheke <500m
Krankenhaus <1.250m
Kinder & Schulen
Schule <250m
Kindergarten <1.000m
Nahversorgung
Supermarkt <750m
Bäckerei <750m
Einkaufszentrum <7.000m
Sonstige
Bank <500m
Geldautomat <500m
Post <1.000m
Polizei <500m
Verkehr
Bus <500m
Autobahnanschluss <1.250m
Bahnhof <500m
Flughafen <7.250m
Angaben Entfernung Luftlinie / Quelle: OpenStreetMap

Agent Name

Tobias Weikl

Böchzelt Immobilien GmbH

tobias.weikl@boechzelt-immobilien.at

Energie/Heizung

Befeuerung: Fernwärme Gas

Anbieter


Anfragen

Ergebnisse werden geladen ...