184.06 m² 149.000 € 6 Zimmer

Barrierefreie Geschäfts-, Büro- oder Ordinationsliegenschaft in Zentrumsnähe von +++ Knittelfeld +++

10.02.2026

Objekt Standort

Sandgasse , A-8720 Knittelfeld

marker Entfernung sowie Fahrtzeit (PKW) zu deinem Standort berechnen
oder
Die Route konnte nicht ermittelt werden

Allgemeine Informationen

Objekt ID: 6349/1561
  • Vergabeart
    Kauf
  • Kaufpreis
    149.000 €
  • Nutzfläche
    184.06 m²
  • Zimmer
    6
  • Provision
    3% des Kaufpreises zzgl. 20% USt.

Ausstattung

  • Fahrstuhl
  • Barrierefrei
  • Carport

Beschreibung

Barrierefreie Geschäfts-, Büro- oder Ordinationsliegenschaft in Zentrumsnähe von +++ Knittelfeld +++

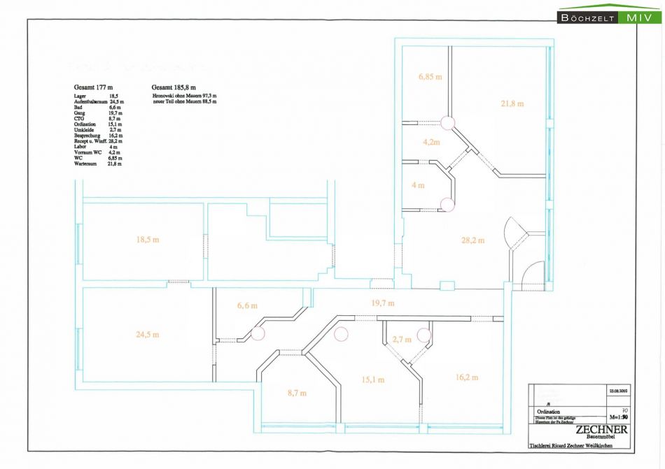
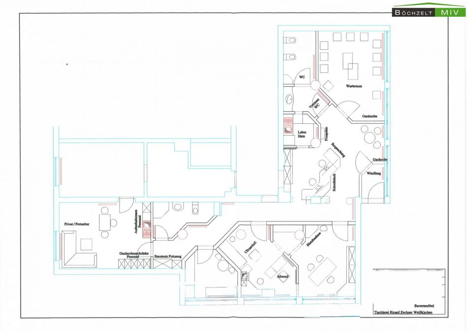
Zum Verkauf gelangt eine gut aufgeteilte und barrierefreie Geschäftsräumlichkeit mit knapp 184 m² Nutzfläche im Erdgechoss des Hochhauses in der Sandgasse in Knittelfeld. Das Objekt teilt sich wie folgt auf: Windfang mit dahinterliegendem Empfangsbereich sowie angeschlossenem Wartezimmer, WC, drei Lagerräumlichkeiten, ein Badezimmer, ein Aufenthaltsraum für Sie und Ihre Mitarbeiter und drei separate Büroräume.


Am Gebäude selbst wurden in den vergangenen Jahren viele Sanierungsmaßnahmen durchgeführt. So wurde beispielsweise an der Fassade bereits ein Vollwärmeschutz angebracht und das Dach der Liegenschaft vor ca. 20 Jahren saniert, in diesem Zuge wurden auch neue 2-fach-verglaste Kunststofffenster eingebaut.  Das Objekt wird mittels Fernwärme beheizt und wird nach Verbrauch abgerechnet. Im Objekt sind Kunststoff-, Laminat- und Fliesenböden verlegt. Die auf den Fotos abgebildeten Möbel sowie Inventar sind im Kaufpreis bereits enthalten, vereinzelte Einrichtungsgegenstände und persönliche Gegenstände werden noch entfernt. Im Jahr 2003 wurden die beiden ursprünglich selbstständigen Geschäftsräumlichkeiten zusammengelegt und umfassend saniert. Dabei wurde die Elektrik samt Fluchtwegsbeleuchtung, Wasser- und Heizungsleitungen, Böden, Türen, Fenster, Möbel usw. gänzlich erneuert. Überdies wurden andere Grundrisse geschaffen, die EDV-Verkabelung und Technik eingebaut, eine Alarmanlage installiert und eine Klimaanlage für einen Raum eingebaut. Die Fenster verfügen an zwei von drei Gebäudeseiten über außenliegende Beschattungsmöglichkeiten. Das Geschäftslokal ist außen über eine barrierefreie Rampe erschlossen und kann auch über das Stiegenhaus betreten werden.


Diese Gewerbefläche weist einen tollen Erhaltungszustand auf und kann sofort bezogen werden. Aufgrund der Raumaufteilung und Lage eignet sich das Geschäftslokal für verschiedenste Anwendungsbereiche, wie beispielsweise Büro, Handel, Ordination, Lagermöglichkeiten etc. Für Sie und Ihre Kunden finden sich im näheren Umkreis viele öffentliche Parkplätze. Auf der gegenüberliegenden Straßenseite kann zudem ein Carport fix angemietet werden (ca. 45,00 € pro Monat).


Eckdaten und Ausstattungshighlights:



  • barrierefreies Geschäftslokal

  • zwei Zugänge

  • ca. 184 m² Gesamtnutzfläche (ohne neue Grundrissgestaltung)

  • Empfang, Wartebereich, 3 Büros, 2 WC bzw. Bad, Lagerräume und Aufenthaltsraum

  • begehrte Lage in Knittelfeld

  • öffentliche Parkplätze in der Nähe - Carport anmietbar

  • gut erhaltene Geschäftseinrichtung vorhanden

  • Klima-, Alarmanlage, Beschattung, EDV-Technik, Fluchtwegsbeleuchtung etc.

  • Kaufpreis: 149.000 € inkl. Inventar

  • kurzfristige Verfügbarkeit


Wir haben Ihr Interesse an dieser Geschäftsräumlichkeit geweckt? Dann überzeugen Sie sich selbst und zögern Sie nicht einen unverbindlichen Besichtigungstermin zu vereinbaren. Gerne können Sie Herrn Weikl unter 0660 4740573 kontaktieren!


Der Vermittler ist als Doppelmakler tätig.


Infrastruktur / Entfernungen

Gesundheit
Arzt <250m
Apotheke <250m
Krankenhaus <1.000m
Kinder & Schulen
Schule <500m
Kindergarten <500m
Nahversorgung
Supermarkt <250m
Bäckerei <250m
Einkaufszentrum <6.250m
Sonstige
Bank <250m
Geldautomat <250m
Post <500m
Polizei <1.000m
Verkehr
Bus <250m
Autobahnanschluss <2.000m
Bahnhof <750m
Flughafen <6.750m
Angaben Entfernung Luftlinie / Quelle: OpenStreetMap

Agent Name

Tobias Weikl

Böchzelt Immobilien GmbH

tobias.weikl@boechzelt-immobilien.at

Energie/Heizung

Heizungsart: Zentralheizung

Befeuerung: Fernwärme

HWB (kWh/m²/Jahr): 60.7

HWB Energieklasse: C

fGEE: 1.05

fGEE Energieklasse: C

Anbieter


Anfragen

Ergebnisse werden geladen ...