121.04 m² 773.000 € 5 Zimmer

Nur noch 2 Einheiten verfügbar! Neubau Familien-Reihenhaus in Kirchbichl – modernes Wohnen in ruhiger Lage

07.11.2025

Objekt Standort

A-6322 Kirchbichl

marker Entfernung sowie Fahrtzeit (PKW) zu deinem Standort berechnen
oder
Die Route konnte nicht ermittelt werden

Allgemeine Informationen

Objekt ID: 5390/1059
  • Vergabeart
    Kauf
  • Kaufpreis
    773.000 €
  • Wohnfläche
    121.04 m²
  • Nutzfläche
    128.33 m²
  • Grundfläche
    846 m²
  • Zimmer
    5
  • Provision
    3% des Kaufpreises zzgl. 20% USt.

Ausstattung

  • Rolladen
  • Abstellraum
  • Carport
  • Parkplatz

Freiflächen

  • Terrasse

Beschreibung

Nur noch 2 Einheiten verfügbar! Neubau Familien-Reihenhaus in Kirchbichl – modernes Wohnen in ruhiger Lage

Neubau Familien-Reihenhaus in Kirchbichl – modernes Wohnen in ruhiger Lage, Einzug Weihnachten 2026

Morgens die Sonne im eigenen Garten genießen, während die Kinder im Grünen spielen – willkommen in Ihrem neuen Zuhause in Kirchbichl. Hier entsteht ein modernes Reihenhausprojekt, das Komfort, Energieeffizienz und nachhaltige Bauweise ideal vereint.

Das Projekt wird nach den Bestimmungen des Bauträgervertragsgesetzes (BTVG) umgesetzt – Käufer profitieren somit von höchster rechtlicher und finanzieller Sicherheit während der gesamten Bauphase. Die Bauarbeiten haben bereits begonnen, der Einzug ist für Weihnachten 2026 geplant.

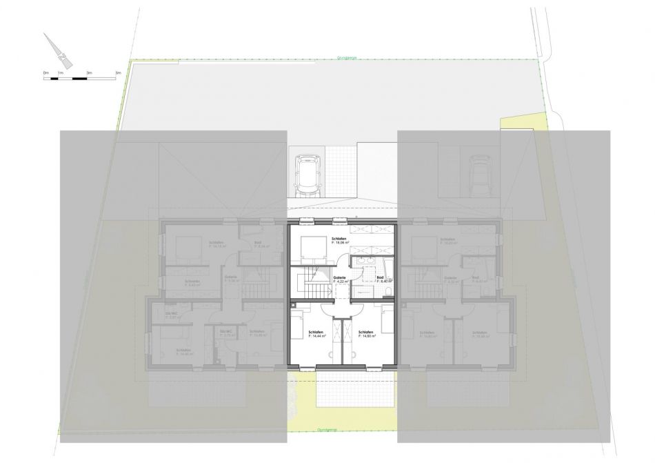
Jedes Haus überzeugt durch eine durchdachte Raumaufteilung:

Ein großzügiger Wohn- und Essbereich mit Zugang zur Terrasse und Garten bildet das Herzstück. Drei helle Schlafzimmer im Obergeschoss bieten Platz für die ganze Familie, während ein zusätzliches Zimmer im Erdgeschoss flexibel als Büro, Gäste- oder Spielzimmer genutzt werden kann.

Hochwertige Parkettböden, italienische Designer-Badmöbel, eine effiziente Luftwärmepumpe und eine Photovoltaikanlage sorgen für ein zukunftssicheres, energieeffizientes Wohngefühl.

Das Reihenhaus ist in massiver Ziegelbauweise errichtet – langlebig, wertbeständig und ideal isoliert.

Ein Carport, ein zusätzlicher Stellplatz sowie ein Außenabstellraum bieten den Komfort, den Familien im Alltag schätzen.

Lage – Familienfreundlich und naturnah

Das Wohnprojekt befindet sich in einer besonders ruhigen, familienfreundlichen Wohngegend am Waldrand von Kirchbichl. Kindergarten, Volksschule, Arzt und Nahversorger sind in wenigen Minuten erreichbar. Die Umgebung lädt zum Spazieren, Radfahren und Erholen ein – gleichzeitig ist die Anbindung perfekt: Die Autobahn A12 sowie die Bahnhöfe in Wörgl und Kirchbichl verbinden Sie schnell mit Innsbruck, Kufstein oder München.

Ihr Vorteil auf einen Blick:


Umsetzung nach BTVG – maximale Sicherheit für Käufer
Baustart erfolgt, Einzug Weihnachten 2026
Massivbauweise mit hochwertiger Ausstattung
Luftwärmepumpe & PV-Anlage für niedrige Betriebskosten
Eigener Garten & Terrasse – ideal für Familien
5 Zimmer, 121 qm Wohnfläche
Zwei Stellplätze + Außenabstellraum
Ruhige, familienfreundliche Lage in Kirchbichl


Lassen Sie sich diese Gelegenheit nicht entgehen – sichern Sie sich schon jetzt Ihr Zuhause für die Zukunft Ihrer Familie.Noch nichts gefunden? Wir informieren Sie über geeignete Immobilienangebote noch vor allen anderen.
Legen Sie jetzt Ihren individuellen Suchagenten unter folgendem Link an. Wir schicken Ihnen passende Immobilien exklusiv vorab zu.
Suchagent anlegen - https://zefi-immobilien.service.immo/registrieren/de
Wir weisen darauf hin, dass zwischen dem Vermittler und dem zu vermittelnden Dritten ein familiäres oder wirtschaftliches Naheverhältnis besteht.
Der Vermittler ist als Doppelmakler tätig.Infrastruktur / EntfernungenGesundheitArzt <1.000mApotheke <1.500mKlinik <2.000mKrankenhaus <9.500mKinder & SchulenSchule <1.500mKindergarten <1.500mHöhere Schule <8.500mNahversorgungSupermarkt <1.000mBäckerei <1.500mEinkaufszentrum <2.000mSonstigeBank <1.500mGeldautomat <1.500mPolizei <2.000mPost <1.500mVerkehrBus <500mAutobahnanschluss <1.000mBahnhof <2.000mFlughafen <8.000mAngaben Entfernung Luftlinie / Quelle: OpenStreetMap
Agent Name

Klaudio Zefi

Zefi Immobilien GmbH

klaudio@zefi.at

Energie/Heizung

Heizungsart: Zentralheizung

Befeuerung:

HWB (kWh/m²/Jahr): 33.8

HWB Energieklasse: B

fGEE: 0.59

fGEE Energieklasse: A+

Anbieter


Anfragen

Ergebnisse werden geladen ...