2.433 € 2 Zimmer

Top moderne Bürofläche in erstklassigem Neubau - verfügbar ab Juli 2026

17.03.2026

Objekt Standort

A-6971 Hard

marker Entfernung sowie Fahrtzeit (PKW) zu deinem Standort berechnen
oder
Die Route konnte nicht ermittelt werden

Allgemeine Informationen

Objekt ID: 6566/2502
  • Vergabeart
    Miete
  • monatliche kosten
    2.433 €
  • Zimmer
    2
  • Provision
    nach Maklervertrag

Ausstattung

  • Einbauküche
  • Fahrstuhl

Beschreibung

Top moderne Bürofläche in erstklassigem Neubau - verfügbar ab Juli 2026

Kmenta & Partner Immobilienmakler GmbH in Kooperation mit Perfekt Immo GmbH

Modernes Gebäude mit gemischter Nutzung in Bodenseenähe

 

In attraktiver Lage von Hard, nicht weit vom Ufer des Bodensees entfernt, entsteht ein moderner Neubau, der Wohnen, Arbeiten und Gewerbe in zeitgemäßer Architektur miteinander verbindet. Die Lage an der Harder Rheinstraße sowie direkt am internationalen Bodenseeradweg sorgt für eine ausgezeichnete Verkehrsanbindung und eröffnet zugleich vielfältige Freizeitmöglichkeiten. Ob mit dem Fahrrad, zu Fuß oder mit dem Auto – die Wege in Richtung Bodenseeufer, ins Ortszentrum von Hard oder in die umliegenden Gemeinden sind kurz und komfortabel. Diese Kombination aus naturnaher Umgebung, guter Infrastruktur und moderner Bauweise macht das Projekt zu einem besonders attraktiven Wohnort für Singles, Paare und Familien.

Der Neubau besteht aus einem architektonisch klar gestalteten Gebäudekomplex mit zwei Hauptgebäuden, die sich eine gemeinsame Garage teilen. Während eines der Gebäude in naher Zukunft als Hotel ausgeführt wird, befindet sich im zweiten Baukörper, der bereits in Errichtung ist, ein Wohn- und Geschäftsgebäude, in dem die hier angebotenen Wohnungen und Büroflächen ab Juli 2026 zur Vermietung stehen. Dieses Gebäude gliedert sich in zwei in ihrer Höhe abgestufte Baukörper. Der größere Teil beherbergt Wohn-, Büro- und Geschäftseinheiten, während im angrenzenden Bereich eine Halle zur gewerblichen Nutzung vorgesehen ist. Ein moderner, behindertengerechter Aufzug verbindet sämtliche Ebenen miteinander und sorgt für eine komfortable Erreichbarkeit aller Bereiche.

Im Untergeschoss befinden sich die Garagenflächen mit den Stellplätzen. Zusätzlich stehen Fahrradabstellplätze zur Verfügung, was insbesondere für Nutzer des nahegelegenen Bodenseeradwegs einen praktischen Mehrwert darstellt. Darüber hinaus befinden sich im Untergeschoss ein Müllraum, Lagerflächen sowie die erforderlichen Technikräume. Jede Einheit verfügt außerdem über ein eigenes Kellerabteil im UG, das zusätzlichen Stauraum bietet.

Das Erdgeschoss ist mit flexibel einteilbaren Gewerbeeinheiten ausgestattet. Im Außenbereich steht ein Kinderspielplatz zur Verfügung, der besonders für Familien eine attraktive Ergänzung darstellt. Im ersten Obergeschoss befinden sich sowohl Büroflächen als auch erste Wohneinheiten, während das zweite und dritte Obergeschoss ausschließlich dem Wohnen vorbehalten sind und eine ruhige Wohnatmosphäre bieten.

Die Wohnungen und die Büros überzeugen durch großzügige Fensterflächen, die für viel Tageslicht sorgen und ein helles, freundliches Raumgefühl schaffen. Auch technisch entspricht das Gebäude modernen Anforderungen an Energieeffizienz. Die Wärmeversorgung erfolgt über eine monovalente Wärmepumpe mit zentraler Warmwasseraufbereitung. Ergänzend dazu wird auf dem Dach eine Photovoltaikanlage installiert, die zur nachhaltigen Energieversorgung beiträgt.

Die Ausstattung der Räume wurde hochwertig und zeitlos gewählt. Innentüren mit weiß-matter Beschichtung sorgen für ein modernes Erscheinungsbild. Holz-Alu-Fenster mit dreifacher Isolierverglasung gewährleisten eine ausgezeichnete Wärmedämmung und sind mit Sonnenschutz an allen Fenstern ausgestattet. Jede Einheit verfügt über eine Leerverrohrung für Telekabel und Telefonanschluss sowie über eine Gegensprechanlage mit Türöffner. Für angenehme Wärme sorgt eine Fußbodenheizung in allen Wohnräumen.

In den Wohnungen wird in Vorraum, Küche, Wohnzimmer und Schlafzimmer wird helles Eichenparkett verlegt, das eine warme und wohnliche Atmosphäre schafft. Badezimmer und WC sind mit Fliesen bzw. Feinsteinzeug ausgestattet. Die Küchen verfügen über cremeweiße Küchenblöcke inklusive Arbeitsplatte und Oberschränken sowie über ein Einbaubackrohr mit Cerankochfeld, einen Kühlschrank mit integriertem Gefrierfach und eine Spüle. Die Badezimmer sind mit einem weißen Waschtisch, Rechteckspiegel, einer WC-Anlage mit Tiefspüler sowie einer Duschanlage mit Duschtrennwand ausgestattet.

Ergänzt wird das Wohnangebot durch attraktive Loggien, die einen angenehmen Außenbereich schaffen und zum Entspannen einladen. Durch die Kombination aus moderner Architektur, hochwertiger Ausstattung und der Nähe zum Bodenseeufer entsteht hier ein Wohnumfeld, das Komfort, Funktionalität und Lebensqualität miteinander verbindet.

Die Büros werden mit pflegeleichtem Linoleum und Fliesen als Bodenbeläge ausgestattet. Die Badezimmer werden elegant ausgestattet und die Büros erhalten eine hochwertige Einbauküche in cremeweiß. Durch die offene Raumplanung sind bei Bedarf Wände flexibel einziehbar.

 

ECKDATEN:

Objekttyp: Neubauprojekt mit 24 Wohnungen, 2 Büros und 3 Geschäften

voraussichtl. Fertigstellung: Juli 2026

Personenaufzug: vorhanden, behindertengerecht

Heizung | Befeuerung: Fußbodenheizung | Zentralheizung | Luftwärmepumpe

Energieausweis: in Arbeit

Widmung: Bau-Mischgebiet

 

Mietwohnungen:

Ausstattung: cremeweiße Einbauküchen, Badezimmereinrichtung

Fenster: 3-fach verglast, mit Sonnenschutz

Böden: Parkett und Fliesen

 

Büroflächen:

Ausstattung: cremeweiße Einbauküchen, Badezimmereinrichtung

Fenster: 3-fach verglast, mit Sonnenschutz

Böden: Linoleum und Fliesen

 

Haben wir Ihr Interesse geweckt? Dann melden Sie sich gerne bei uns und überzeugen Sie sich im Rahmen eines persönlichen Besichtigungstermins selbst von diesem attraktiven Neubauprojekt. Wir stehen Ihnen jederzeit für weitere Informationen zur Verfügung und freuen uns darauf, Ihnen Ihr mögliches neues Zuhause in Hard präsentieren zu dürfen.Großzügige, flexible Bürofläche in hochmodernem Neubau zu vermieten:

 

In Hard, nur rund zwei Kilometer vom Bodenseeufer entfernt, gelangen in einem modernen Neubau ab Juli 2026 diese erstklassige Bürofläche zur Vermietung. Die Lage an der Harder Rheinstraße sowie direkt am internationalen Bodenseeradweg bietet eine gute Verkehrsanbindung und zahlreiche Freizeitmöglichkeiten in der Bodenseeregion.

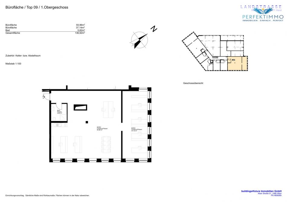
Die Büroeinheit Top 09 befindet sich im ersten Obergeschoss des neu errichteten Wohn- und Geschäftsgebäudes und ist bequem über einen behindertengerechten Aufzug erreichbar. Auf rund 136,92 m² Nutzfläche bietet sie eine großzügige und gut durchdachte Raumaufteilung. Große Fensterflächen sorgen für viel Tageslicht und schaffen ein angenehmes Aufenthaltsgefühl.

Die Ausstattung überzeugt durch hochwertige und zeitlose Materialien. In den Büroräumen ist Linoleum verlegt, während im Bad pflegeleichte Fliesen beziehungsweise Feinsteinzeug zum Einsatz kommen. Eine moderne Einbauküche in cremeweißer Ausführung ist bereits vorhanden. Für angenehme Wärme sorgt eine Fußbodenheizung. Holz-Alu-Fenster mit dreifacher Isolierverglasung und Sonnenschutz sorgen zusätzlich für ein angenehmes Raumklima.

Zur Wohnung gehört ein Kellerabteil im Untergeschoss. Ausreichend Tiefgaragenplätze können bei Bedarf gegen Aufpreis angemietet werden.

 

TOP 9: Bürofläche im 1. Obergeschoß

 

Raumaufteilung:

Bürofläche: 93,96 m²

Bürofläche: 37,14 m²

Bad/WC: 5,82 m²

Nutzfläche: 136,92 m²

 

Zubehör:

Keller-/Abstellraum

 

monatliche Kosten:

Miete netto: 2.050,00 € 

zzgl. 20 % USt: 410,00 €

voraussichtl. BK: ca. 383,00 €

Gesamtkosten: 2.843,00 €

 

Nebenkosten:

Kaution: 3 BMM

Vergebührung: nach Laufzeit, gem. Gebührengesetz

Vertragserrichtung: nach Vereinbarung

Maklerhonorar: nach Maklervertrag

je TG-Platz: netto 80,00 € zzgl. 20 % USt

 

Mietverhältnis:

Vertragsdauer: 5 Jahre

 

Haben wir Ihr Interesse geweckt? Dann freuen wir uns über Ihre Kontaktaufnahme und vereinbaren gerne einen Besichtigungstermin mit Ihnen.

 

IHR ANSPRECHPARTNER:
Herr Alessandro Lenz
Selbstständiger geprüfter Immobilienmakler
Telefon: ​+43 5574 54325-15
E-Mail: al@kmenta-immo.at
www.kmenta-immo.at
www.perfektimmo.at


Alle Angaben erfolgen nach bestem Wissen und mit der Sorgfalt eines ordentlichen Maklers. Für die Richtigkeit solcher Angaben, die auf Informationen der über ein Objekt Verfügungsberechtigten beruhen, wird keine Gewähr geleistet oder Haftung übernommen.

Weitere tolle Angebote finden Sie unter: https://www.perfektimmo.at/angebote
Wir weisen darauf hin, dass zwischen dem Vermittler und dem zu vermittelnden Dritten ein familiäres oder wirtschaftliches Naheverhältnis besteht.
Der Vermittler ist als Doppelmakler tätig.Infrastruktur / EntfernungenGesundheitArzt <1.000mApotheke <1.000mKrankenhaus <4.000mKlinik <6.000mKinder & SchulenSchule <1.500mKindergarten <1.000mUniversität <6.500mHöhere Schule <8.000mNahversorgungSupermarkt <500mBäckerei <500mEinkaufszentrum <500mSonstigeBank <1.000mGeldautomat <1.000mPost <1.500mPolizei <2.000mVerkehrBus <500mBahnhof <1.000mAutobahnanschluss <3.500mFlughafen <9.000mAngaben Entfernung Luftlinie / Quelle: OpenStreetMap
Agent Name

Alessandro Lenz

Perfekt Immo GmbH

al@kmenta-immo.at

Energie/Heizung

Befeuerung:

Anbieter

Agent Name

Alessandro Lenz

al@kmenta-immo.at

Anfragen

Ergebnisse werden geladen ...