AUSGEZEICHNETE MÖGLICHKEIT! BAUBEWILLIGTES Wohnbauprojekt in Graz Don Bosco – Zwei vollständig genehmigte Projekte können rasch realisiert werden!
Objekt Standort
A-8020 Graz
Allgemeine Informationen
Objekt ID: 288198-
VergabeartKauf
-
Kaufpreis1.850.000 €
-
Wohnfläche1548.73 m²
-
Grundfläche3163 m²
-
Provision3% des Kaufpreises zzgl. 20% USt.
Beschreibung
AUSGEZEICHNETE MÖGLICHKEIT! BAUBEWILLIGTES Wohnbauprojekt in Graz Don Bosco – Zwei vollständig genehmigte Projekte können rasch realisiert werden!
AUSGEZEICHNETE MÖGLICHKEIT! BAUBEWILLIGTES Wohnbauprojekt in Graz Don Bosco – Zwei vollständig genehmigte Projekte können rasch realisiert werden!
Investieren Sie in eines der attraktivsten Wohnbauprojekte im begehrten Grazer Bezirk Gries! Dieses exklusive Doppelprojekt, bestehend aus zwei baugenehmigten Wohnanlagen mit insgesamt 25 Wohneinheiten, vereint moderne Architektur, nachhaltige Bauweise und optimale Wohnflächen. Perfekt für Investoren und Bauträger, die von der stetig wachsenden Wohnraumnachfrage in Graz profitieren wollen. Sofortiger Baustart und eine zentrale, aber ruhige Lage machen dieses Projekt zur idealen Investition in den dynamischen Immobilienmarkt der Stadt Graz.
Projekt 1: Wohngebäude mit 7 Wohneinheiten
Auf einem Grundstück von 1.035 m² ist ein modernes Wohngebäude mit 7 Wohneinheiten und einer Wohnnutzfläche von insgesamt 464 m² geplant.
- Wohnflächen: 43 m² bis 91 m²
- Tiefgarage mit 7 Stellplätzen für komfortables Parken
- Photovoltaikanlage am Dach für nachhaltige Energieversorgung
- Ein überdachter Müllplatz und Einfriedungen sorgen für ein sauberes und sicheres Umfeld
- Durchdachte Architektur und hochwertige Ausstattung garantieren Wohnkomfort und attraktive Renditen
Flächenaufstellung:
Geschoss | Top Nr. | m² | Zimmer | Balkon | Terrasse | Dach- Terrasse | Garten |
EG | Top 1 | 67,44 | 3 | 19,22 | 95,18 | ||
EG | Top 2 | 61,93 | 3 | 25,48 | 73,40 | ||
EG | Top 3 | 42,71 | 2 | 14,78 | 73,94 | ||
1.OG | Top 4 | 76,64 | 4 | 49,12 | |||
1.OG | Top 5 | 47,56 | 2 | 8,63 | |||
1.OG | Top 6 | 77,13 | 4 | 16,19 | |||
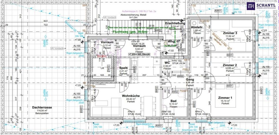
2. OG_PH | Top 7 | 91,23 | 4 | 114,54 | |||
Gesamtfläche | 464,64 | 22 | 24,82 | 59,48 | 163,66 | 242,52 |
Projekt 2: Zwei Wohnblöcke mit gesamt 18 Wohneinheiten
Zusätzlich ist ein weiteres Wohnbauprojekt auf einem angrenzenden Baugrundstück geplant. Dieses Projekt umfasst zwei moderne Wohnblöcke mit insgesamt 18 Wohneinheiten, die perfekt auf unterschiedliche Wohnbedürfnisse zugeschnitten sind.
- Haus 1: 11 Wohneinheiten
- Haus 2: 7 Wohneinheiten
- Wohnflächen: 43 m² bis 96 m²
- 18 Tiefgaragenstellplätze sorgen für ausreichend Parkmöglichkeiten
- Effiziente Grundrisse mit lichtdurchfluteten Räumen bieten hohen Wohnkomfort
Flächenaufstellung:
Haus | Geschoss | Top Nr. | m² | Zimmer | Balkon | Terrasse | Garten |
Haus 1 | EG | Top 1 | 62,18 | 3 | 24,63 | 100,18 | |
Haus 1 | EG | Top 2 | 63,50 | 3 | 46,79 | 46,54 | |
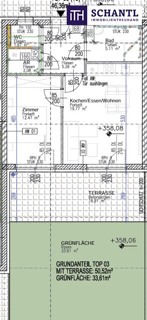
Haus 1 | EG | Top 3 | 46,36 | 2 | 16,91 | 33,61 | |
Haus 1 | EG | Top 4 | 63,41 | 3 | 24,46 | 41,37 | |
Haus 1 | 1.OG | Top 8 | 45,57 | 2 | 10,73 | ||
Haus 1 | 1.OG | Top 9 | 62,42 | 3 | 11,24 | 19,94 | |
Haus 1 | 1.OG | Top 10 | 46,36 | 2 | 17,25 | ||
Haus 1 | 1.OG | Top 11 | 63,41 | 3 | 24,72 | ||
Haus 1 | 2.OG | Top 15 | 62,97 | 3 | 48,19 | ||
Haus 1 | 2.OG | Top 16 | 46,40 | 2 | 17,23 | ||
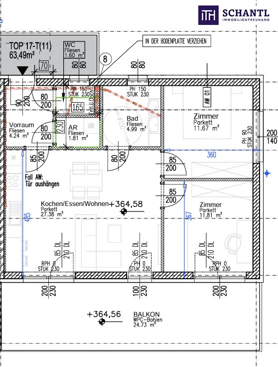
Haus 1 | 2.OG | Top 17 | 63,49 | 3 | 24,73 | ||
Gesamtfläche Haus 1 | 626,07 | 29 | 105,90 | 180,92 | 221,70 | ||
Haus | Geschoss | Top Nr. | m² | Zimmer | Balkon | Terrasse | Garten |
Haus 2 | EG | Top 5 | 73,34 | 4 | 53,8 | 122,96 | |
Haus 2 | EG | Top 6 | 63,91 | 3 | 23,88 | 47,67 | |
Haus 2 | EG | Top 7 | 43,75 | 2 | 17,10 | 36,20 | |
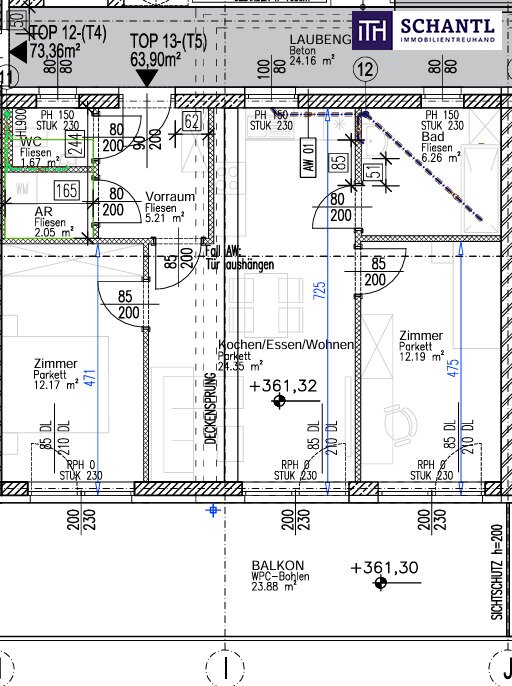
Haus 2 | 1.OG | Top 12 | 73,36 | 4 | 37,13 | ||
Haus 2 | 1.OG | Top 13 | 63,90 | 3 | 23,88 | ||
Haus 2 | 1.OG | Top 14 | 43,52 | 2 | 16,88 | ||
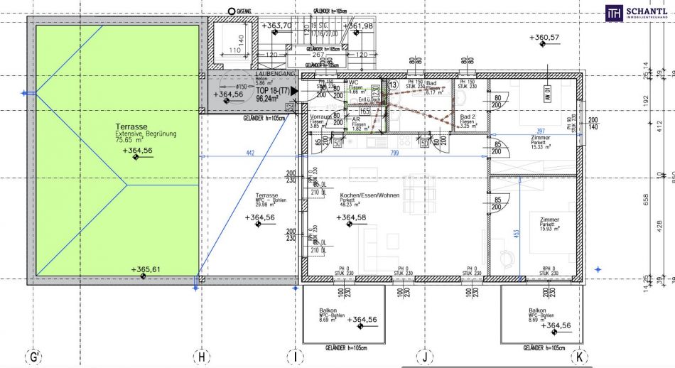
Haus 2 | 2.OG | Top 18 | 96,24 | 3 | 17,38 | 29,98 | 75,65 |
Gesamtfläche Haus 2 | 458,02 | 21 | 95,27 | 124,76 | 282,48 | ||
Gesamtfläche Projekt | 1 084,09 | 50 | 201,17 | 305,68 | 504,18 |
Facts:
- Zwei vollständig baugenehmigte Projekte: Insgesamt 25 Wohneinheiten auf zwei Baugrundstücken, bereit für den sofortigen Baustart.
- Flexible Wohnungsgrößen: Die Wohnflächen reichen von 43 m² bis 96 m², ideal für Singles, Paare und Familien.
- Tiefgaragenplätze: Projekt 1 bietet 7 Stellplätze, Projekt 2 umfasst 18 Stellplätze – insgesamt 25 Parkmöglichkeiten.
- Nachhaltigkeit: Beide Projekte verfügen über Photovoltaikanlagen auf den Dächern für umweltfreundliche Energieversorgung.
- Attraktive Lage: Zentrale, aber ruhige Wohngegend im Grazer Bezirk Gries, mit hervorragender Anbindung an den öffentlichen Nahverkehr.
Highlights:
- Zukunftssicheres Investment: Hohe Nachfrage nach Wohnraum in Graz sorgt für langfristige Wertsteigerung.
- Vollständig baugenehmigt: Beide Projekte sind baureif, ein sofortiger Baustart ist möglich.
- Insgesamt 25 Wohneinheiten: Flexible Wohnungsgrößen von 43 m² bis 96 m² für Singles, Paare und Familien.
- Tiefgaragenplätze: 7 Stellplätze in Projekt 1, 18 in Projekt 2 – insgesamt 25 komfortable Parkmöglichkeiten.
- Moderne und energieeffiziente Bauweise: Nachhaltigkeit durch Photovoltaikanlagen am Dach.
- Ruhige und zentrale Lage: Hohe Lebensqualität im beliebten Bezirk Gries, mit direkter Anbindung an den Nahverkehr.
- Attraktive Wohnungsgrößen: Durchdachte Grundrisse mit funktionalen, lichtdurchfluteten Räumen.
- Barrierefreier Zugang: Beide Gebäude sind mit Aufzügen ausgestattet.
- Hohe Vermietbarkeit: Gefragte Lage und flexible Wohnungsgrößen machen das Projekt ideal für Investoren.
- Nachhaltige Energieversorgung: Photovoltaikanlagen auf den Dächern bieten umweltfreundliche Energienutzung.
Dieses Doppelprojekt bietet Bauträgern die Möglichkeit, in einem der gefragtesten Bezirke von Graz zu investieren und von der stark wachsenden Wohnraumnachfrage zu profitieren. Die genehmigten Projekte ermöglichen einen reibungslosen Baustart und garantieren eine zukunftssichere Investition in hochwertigen, modernen Wohnraum.
Worauf noch warten?
Vereinbaren Sie noch heute eine Besichtigung oder eine persönliche Beratung mit uns!
Sie wollen Ihre Immobilie verkaufen? Dann sind Sie bei uns goldrichtig!
Wir sind gerne für Sie da und unterstützen Sie unverbindlich bei der Bewertung Ihrer Immobilie. Mit viel Sorgfalt stellen wir Ihnen alle wichtigen Informationen und Unterlagen zusammen, damit Sie die besten Entscheidungen treffen können.
In Kooperation mit unserer SFI Vermögenstreuhand begleiten wir Sie bei der Verwirklichung Ihres Traumobjekts und unterstützen Sie beim nachhaltigen Vermögensaufbau. Mit unseren erfahrenen Experten sorgen wir dafür, dass Sie die besten Konditionen erhalten – damit Ihre Träume Wirklichkeit werden!
http://www.schantl-ith.at in Kooperation mit www.sfi-invest.com
Die Angaben über das angebotene Objekt erfolgen mit der Sorgfalt eines ordentlichen Immobilienmaklers; für die Richtigkeit solcher Angaben, die auf Informationen der über das Objekt Verfügungsberechtigten beruhen, wird keine Gewähr geleistet!
Hinweis gemäß Energieausweisvorlagegesetz: Ein Energieausweis wurde vom Eigentümer bzw. Verkäufer, nach unserer Aufklärung über die generell geltende Vorlagepflicht, sowie Aufforderung zu seiner Erstellung noch nicht vorgelegt. Daher gilt zumindest eine dem Alter und der Art des Gebäudes entsprechende Gesamtenergieeffizienz als vereinbart. Wir übernehmen keinerlei Gewähr oder Haftung für die tatsächliche Energieeffizienz der angebotenen Immobilie.
Wir weisen darauf hin, dass zwischen dem Vermittler und dem zu vermittelnden Dritten ein familiäres oder wirtschaftliches Naheverhältnis besteht.
Der Vermittler ist als Doppelmakler tätig.
Infrastruktur / Entfernungen
Gesundheit
Arzt <500m
Apotheke <1.000m
Klinik <1.000m
Krankenhaus <1.000m
Kinder & Schulen
Schule <1.000m
Kindergarten <1.000m
Universität <1.500m
Höhere Schule <1.500m
Nahversorgung
Supermarkt <1.000m
Bäckerei <1.000m
Einkaufszentrum <1.000m
Sonstige
Geldautomat <1.000m
Bank <1.000m
Post <1.000m
Polizei <1.500m
Verkehr
Bus <500m
Straßenbahn <500m
Autobahnanschluss <3.000m
Bahnhof <500m
Flughafen <8.000m
Angaben Entfernung Luftlinie / Quelle: OpenStreetMap

Maria Schantl, BA, MSc
Schantl ITH Immobilientreuhand GmbH
maria@schantl-ith.at