106 m² 295.000 € 4 Zimmer

Zentraler geht es nicht - Stilvolle 4-Zimmer-Dachgeschosswohnung im Herzen der Grazer Altstadt! 3D-Rundgang verfügbar!

19.01.2026

Objekt Standort

Schmiedgasse , A-8010 Graz

marker Entfernung sowie Fahrtzeit (PKW) zu deinem Standort berechnen
oder
Die Route konnte nicht ermittelt werden

Allgemeine Informationen

Objekt ID: 293192
  • Vergabeart
    Kauf
  • Kaufpreis
    295.000 €
  • Nutzfläche
    106 m²
  • Zimmer
    4
  • Provision
    10.620,00 € inkl. 20% USt.

Beschreibung

Zentraler geht es nicht - Stilvolle 4-Zimmer-Dachgeschosswohnung im Herzen der Grazer Altstadt! 3D-Rundgang verfügbar!

Zentraler geht es nicht - Stilvolle 4-Zimmer-Dachgeschosswohnung im Herzen der Grazer Altstadt!


-TOP-LAGE-


Willkommen in Ihrem neuen Zuhause in der pulsierenden Stadt Graz! 


 


Hier gehts zum 3D-Rundgang




  1. Einzigartige Lage mitten in der Grazer Fußgängerzone – direkt bei Oper, Hauptplatz und Altstadt.




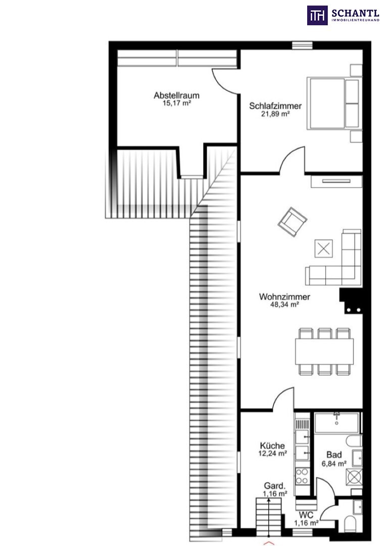
  2. Charmante 4-Zimmer-Dachgeschosswohnung mit ca. 108 m² Nutzfläche (ca. 90 m² reine Wohnfläche).




  3. Historisches, denkmalgeschütztes Gebäude mit kunstvoller spätbarocker Marienkrönungsskulptur.




  4. Reiche Geschichte – ehemals zwei mittelalterliche Hofstätten, später zu einem Doppelhaus vereint.




  5. Charaktervolle Architektur mit trauf- und giebelständiger Fassade und gotischem Steintorrahmen im Innenhof.




  6. Durchdachte Raumaufteilung mit offenem Koch-Essbereich, Wohnzimmer, Schlafzimmer und flexiblem Arbeits- oder Gästezimmer.




  7. Idyllischer Blick in den ruhigen Innenhof – mitten in der Stadt und doch herrlich ruhig.




  8. Maßgefertigte Einbauten in den Dachschrägen – cleverer Stauraum und stilvolle Gestaltung.




  9. Effiziente Nachtspeicherheizung für angenehme Wärme.




  10. Kulturelle und kulinarische Highlights direkt vor der Haustür – Oper, Schauspielhaus, Restaurants und Cafés fußläufig erreichbar.




  11. TOP Preis-Leistung 




Diese großzügige Wohnung im HERZEN von Graz bietet Ihnen nicht nur ein komfortables Wohnerlebnis, sondern auch eine erstklassige Anbindung an alle wichtigen Einrichtungen des täglichen Bedarfs.


Mit einer beeindruckenden Fläche von 95 m² ist diese gepflegte Wohnung der ideale Rückzugsort für Familien, Paare oder Singles, die sowohl Ruhe als auch die Vorzüge einer lebendigen Stadt suchen.


Diese außergewöhnliche Wohnung befindet sich im 3. Obergeschoss eines denkmalgeschützten Gebäudes direkt in der Grazer Fußgängerzone.


Auf ca. 108 m² Nutzfläche (davon ca. 95 m² Wohnfläche) überzeugt sie mit einer durchdachten Raumaufteilung, einem offenen Koch-Essbereich, einem gemütlichen Wohnzimmer, zwei Schlafzimmern und einem modernen Bad mit separatem WC.


Die Wohnung überzeugt durch hochwertige Materialien, die in jedem Raum zum Ausdruck kommen. Fliesen und Parkettböden verleihen den Räumen ein modernes und einladendes Ambiente, während die massiven Elemente für Stabilität und Langlebigkeit sorgen.


Maßgefertigte Einbauten in den Dachschrägen sorgen für optimalen Stauraum, während historische Details – wie ein gotischer Steintorrahmen und eine barocke Marienkrönungsskulptur – dem Haus besonderen Charme verleihen.


Mit ihrer unschlagbaren Zentrumslage bietet die Wohnung unmittelbaren Zugang zu Oper, Schauspielhaus, Restaurants und Boutiquen – urbanes Leben mit historischem Flair!


Einkäufe des täglichen Bedarfs sind ebenfalls bequem zu erledigen. Supermärkte, Bäckereien und ein Einkaufszentrum befinden sich in der Nähe und bieten Ihnen eine große Auswahl an Waren und Dienstleistungen. Genießen Sie die Vorzüge des urbanen Lebensstils, ohne auf die Annehmlichkeiten eines ruhigen Zuhauses verzichten zu müssen.


Worauf noch warten?


Vereinbaren Sie noch heute eine Besichtigung oder eine persönliche Beratung mit uns!


Sie wollen Ihre Immobilie verkaufen? Dann sind Sie bei uns goldrichtig!



Wir sind gerne für Sie da und unterstützen Sie unverbindlich bei der Bewertung Ihrer Immobilie. Mit viel Sorgfalt stellen wir Ihnen alle wichtigen Informationen und Unterlagen zusammen, damit Sie die besten Entscheidungen treffen können.


In Kooperation mit unserer SFI Vermögenstreuhand begleiten wir Sie bei der Verwirklichung Ihres Traumobjekts und unterstützen Sie beim nachhaltigen Vermögensaufbau.


Mit unseren erfahrenen Experten sorgen wir dafür, dass Sie die besten Konditionen erhalten – damit Ihre Träume Wirklichkeit werden!


www.schantl-ith.at in Kooperation mit www.sfi-invest.com 


Die Angaben über das angebotene Objekt erfolgen mit der Sorgfalt eines ordentlichen Immobilienmaklers; für die Richtigkeit solcher Angaben, die auf Informationen der über das Objekt Verfügungsberechtigten beruhen, wird keine Gewähr geleistet.


Infrastruktur / Entfernungen

Gesundheit
Arzt <250m
Apotheke <250m
Klinik <750m
Krankenhaus <750m
Kinder & Schulen
Schule <500m
Kindergarten <750m
Universität <500m
Höhere Schule <500m
Nahversorgung
Supermarkt <250m
Bäckerei <250m
Einkaufszentrum <500m
Sonstige
Geldautomat <250m
Bank <250m
Post <250m
Polizei <250m
Verkehr
Bus <250m
Straßenbahn <250m
Autobahnanschluss <4.750m
Bahnhof <750m
Flughafen <9.250m
Angaben Entfernung Luftlinie / Quelle: OpenStreetMap

Agent Name

Christopher Wischenbart, BSc

Schantl ITH Immobilientreuhand GmbH

christopher.wischenbart@schantl-ith.at

Anbieter


Anfragen

Ergebnisse werden geladen ...