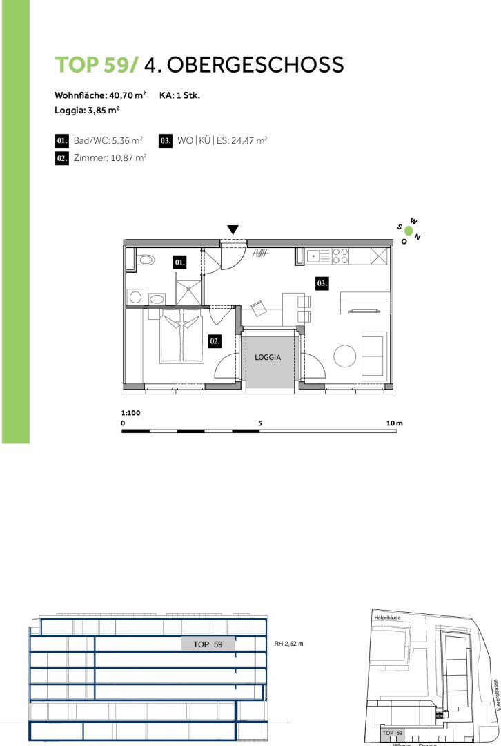
40.7 m² 581,82 € 2 Zimmer

HERRLICHE Neubau 2-Zimmer-Wohnung mit Weitblick und bester Anbindung

07.11.2025

Objekt Standort

A-8051 Graz

marker Entfernung sowie Fahrtzeit (PKW) zu deinem Standort berechnen
oder
Die Route konnte nicht ermittelt werden

Allgemeine Informationen

Objekt ID: 5971/5047
  • Vergabeart
    Miete
  • monatliche kosten
    581,82 €
  • Wohnfläche
    40.7 m²
  • Zimmer
    2
  • Provision
    Gemäß Erstauftraggeberprinzip bezahlt der Abgeber die Provision.

Ausstattung

  • Einbauküche
  • Fahrstuhl
  • Parkplatz

Beschreibung

HERRLICHE Neubau 2-Zimmer-Wohnung mit Weitblick und bester Anbindung

BEZUGSFERTIG: ab sofort!


Weitere Informationen unter: +43 664 500 92 10


Bruttomiete inkl. BK € 640


Strom + Heizung extra!


PROVISIONSFREI 


Die Wohnanlage All in One befindet sich in Graz-Gösting in der Wiener Straße Ecke Ibererstraße. Hier befindet man sich direkt am Puls der Stadt und dennoch mit einem Fuß im Grünen. Dank zeitgemäßer Infrastruktur und maximaler Wohnqualität verschmelzen hier Leben, Wohnen und Arbeiten zu einem Ganzen. Die 67 Wohnungen weisen ideale Grundrisse auf und verfügen alle über eine moderne Einbauküche, sowie Balkon oder Loggia. Insgesamt fügt sich der Komplex ideal in das Areal ein. 


Innerhalb kürzester Zeit gelangen Sie von hier aus in das Grazer Zentrum, auf die Autobahnen, zum Flughafen Graz sowie zum Hauptbahnhof. Durch die optimale Anbindung an das öffentliche Verkehrsnetz lässt sich die gesamte Stadt Graz auch ohne eigenes Fahrzeug erreichen. Die Bushaltestelle ist über einen kurzen Fußweg in einer Minute erreichbar. In unmittelbarer Umgebung finden Sie auch alle Annehmlichkeiten für den täglichen Bedarf, wie zum Beispiel ein Einkaufszentrum, Schulen und medizinische Versorgung. Auch das Naherholungsgebiet Plabutsch ist in Kürze erreichbar.


AUSSTATTUNG



  • Neubauwohnungen mit Balkon oder Loggia

  • moderne Einbauküche, bad- und Sanitärausstattung 

  • Eichenparkettböden

  • Kunststoff-Fenster mit Isolierglas und Jalousien 

  • Fußbodenheizung, Fernwärme

  • zentrale SAT-Anlage 

  • Lift, Tiefgarage, Parkplatzflächen, Fahrradabstellplätze 

  • Innenhof und Kinderspielplatz 


Weitere Informationen unter +43 664 500 92 10


Der Immobilienmakler erklärt, dass er – entgegen dem in der Immobilienwirtschaft üblichen Geschäftsgebrauch des Doppelmaklers – einseitig nur für den Vermieter tätig ist.


Infrastruktur / Entfernungen

Gesundheit
Arzt <500m
Apotheke <500m
Klinik <1.500m
Krankenhaus <2.000m
Kinder & Schulen
Schule <500m
Kindergarten <500m
Universität <3.000m
Höhere Schule <3.000m
Nahversorgung
Supermarkt <500m
Bäckerei <500m
Einkaufszentrum <1.500m
Sonstige
Geldautomat <500m
Bank <500m
Post <500m
Polizei <500m
Verkehr
Bus <500m
Straßenbahn <1.500m
Bahnhof <2.500m
Autobahnanschluss <3.500m
Angaben Entfernung Luftlinie / Quelle: OpenStreetMap

Agent Name

Hr. Trabi

Immotura Consulting GmbH

vermietungsservice@captura-group.cc

Energie/Heizung

Heizungsart: Fernwärme

HWB (kWh/m²/Jahr): 44

HWB Energieklasse: B

fGEE: 0.8

fGEE Energieklasse: A

Anbieter


Anfragen

Ergebnisse werden geladen ...