422 m² 950.000 € 11 Zimmer

Ein wahrlich prachtvolles LUXUSANWESEN in Italien mit nur 45 Fahrminuten zum Meer!

14.03.2026

Objekt Standort

Via Solari , A-33080 Fiume Veneto

marker Entfernung sowie Fahrtzeit (PKW) zu deinem Standort berechnen
oder
Die Route konnte nicht ermittelt werden

Allgemeine Informationen

Objekt ID: 295748
  • Vergabeart
    Kauf
  • Kaufpreis
    950.000 €
  • Wohnfläche
    422 m²
  • Zimmer
    11
  • Provision
    4% des Kaufpreises zzgl. 20% USt.

Ausstattung

  • Garage

Beschreibung

Ein wahrlich prachtvolles LUXUSANWESEN in Italien mit nur 45 Fahrminuten zum Meer!

Ein wahrlich prachtvolles LUXUSANWESEN in Italien mit nur 45 Fahrminuten zum Meer!


Schantl ITH Graz/Wien und dessen italienisches Partnerunternehmen freuen sich, Ihnen eine einzigartige Villa präsentieren zu können!
Die Immobilie liegt vollkommen im Grünen, nur 4 km vom Zentrum von Fiume Veneto und 5 km vom Autobahnkreuz entfernt. Hier vereint sich modernster Komfort und Luxus in einer Oase der Ruhe, ohne auf die Bequemlichkeit der Verkehrsanbindung zu verzichten.


Beschreibung der Immobilie:



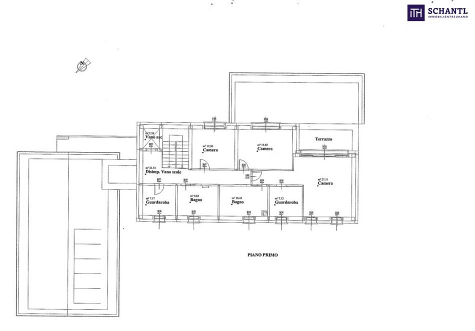
  • eine gigantische Wohnfläche von 422m² Nutzfläche

  • 11 Zimmer

  • Renovierungsarbeiten wurden durchgeführt!

  • Gartenfläche 3.466m²

  • einer großzügigen Doppelgarage von 47 m² 

  • einem Abstellraum von 9 m²

  • die Liebe zum Detail und die Sorge um die Umwelt sind in jedem Aspekt der Immobilie offensichtlich, von der Photovoltaik- und Geothermikanlage, die sie energieeffizient machen, bis hin zur Wahl hochwertiger Materialien für die Innenausstattung

  • die Raumaufteilung ist so konzipiert, dass sie maximalen Komfort bietet und sich auf zwei Ebenen entwickelt

  • im Erdgeschoss finden wir eine Design-Wohnküche mit Valcucine-Möbeln und ”Giotto” gelben Porphyrboden, ein Wohnzimmer mit einem Palazzetti Kamin und Glastüren für den Zugang zur Außenveranda, ein Arbeitszimmer, ein Badezimmer mit Doppelwaschbecken und eine Speisekammer            zusätzlich zu den Service-Räumen. Das Vorhandensein einer Doppelgarage und eines Abstellraums bietet auch reichlich Platz zum Parken und Lagern

  • die offene Holztreppe führt in den ersten Stock, hier befinden sich drei Schlafzimmer, zwei Bäder und zwei Garderoben. Das Hauptschlafzimmer verfügt außerdem über eine Terrasse, die den Raum noch heller macht. In allen Zimmern gibt es freiliegende, geweißte Balken und gebürstete Eichendielen-Bö-den, die für Homogenität sorgen. In den Wirtschaftsräumen ist der Boden aus sandgestrahltem gelbegstrischen Marmor. In allen Räumen, auch in der Waschküche, dem Abstellraum und der Garage, gibt es eine Fußbodenheizung.

  • die Villa verfügt über ein hochmodernes Kühlsystem, das eine gleichmäßige Temperatur ohne plötzliche Schwankungen in den verschiedenen Räumen garantiert. In den Wirtschaftsräumen und der Garage sorgt eine Erdwärmepumpe für die Kühlung. Alle dreifach verglasten Fenster sind aus Holz, ebenso die Fensterläden, und wo diese nicht vorhanden sind, ist das Glas bruchsicher. Ein volumetrisches Alarmsystem und eine Panzertür der Klasse 5 von Oikos sorgen für höchste Sicherheit. All dies ist von einem Hausautomationssystem umgeben, das das sofortige automatische Schließen aller Fensterläden ermöglicht


Ausstattungs- Beschreibung:


Die Immobilie ist ein 0-Energie-Gebäude und genießt die höchste Energieklasse A4, die 17,5 KWPhotovoltaikanlage mit 8 KW erweiterbaren Speicherbatterien und das geothermische System ermöglichen ein Leben in Harmonie mit der Umwelt bei unglaublich niedrigen jährlichen Betriebskosten. Um
die Ausstattung der Immobilie zu bereichern, heben wir das Vorhandensein eines 20 cm dicken Isolationssystems aus Kalksilikat und die sorgfältige Beachtung der Antiseismizität und der Akustik hervor.


Sonstige Angaben:


Der 3.466 Quadratmeter große Garten mit einem automatischen Bewässerungssystem mit direkter Versorgung aus dem Brunnen und einem Rasenpflegeroboter runden das Angebot ab und bieten einen perfekten Außenbereich zum Entspannen und Genießen.
Zusammenfassend lässt sich sagen, dass diese Villa eine perfekte Kombination aus Luxus, Komfort, Energieeffizienz und Sicherheit bietet, was sie zu einer idealen Wahl für diejenigen macht, die das Beste in Sachen Wohnqualität suchen.



  • es besteht die Möglichkeit, das Mobiliar separat zu erwerben

  • Energieklasse A4


Provision: 4% vom KP zuzüglich UST (ist in Italien üblich)


Gerne können Sie einen Besichtigungstermin mit uns vereinbaren! Nach Absprache wäre es am Wochenende möglich!


Sie wollen Ihre Immobilie verkaufen? Dann sind Sie bei uns goldrichtig!
Wir sind gerne für Sie da und unterstützen Sie unverbindlich bei der Bewertung Ihrer Immobilie. Mit viel Sorgfalt stellen wir Ihnen alle wichtigen Informationen und Unterlagen zusammen, damit Sie die besten Entscheidungen treffen können.
In Kooperation mit unserer SFI Vermögenstreuhand begleiten wir Sie bei der Verwirklichung Ihres Traumobjekts und unterstützen Sie beim nachhaltigen Vermögensaufbau. Mit unseren erfahrenen Experten sorgen wir dafür, dass Sie die
besten Konditionen erhalten – damit Ihre Träume Wirklichkeit werden!



www.schantl-ith.at in Kooperation mit sfi-invest.com



Die Angaben über das angebotene Objekt erfolgen mit der Sorgfalt eines ordentlichen Immobilienmaklers; für die Richtigkeit solcher Angaben, die auf Informationen der über das Objekt Verfügungsberechtigten beruhen, wird keine Gewähr geleistet!


Hinweis gemäß Energieausweisvorlagegesetz: Ein Energieausweis wurde vom Eigentümer bzw. Verkäufer, nach unserer Aufklärung über die generell geltende Vorlagepflicht, sowie Aufforderung zu seiner Erstellung noch nicht vorgelegt. Daher gilt zumindest eine dem Alter und der Art des Gebäudes entsprechende Gesamtenergieeffizienz als vereinbart. Wir übernehmen keinerlei Gewähr oder Haftung für die tatsächliche Energieeffizienz der angebotenen Immobilie.


Wir weisen darauf hin, dass zwischen dem Vermittler und dem zu vermittelnden Dritten ein familiäres oder wirtschaftliches Naheverhältnis besteht.


Der Vermittler ist als Doppelmakler tätig.


Agent Name

Ursula Seiwald

Schantl ITH Immobilientreuhand GmbH

ursula.seiwald@schantl-ith.at

Anbieter


Anfragen

Ergebnisse werden geladen ...