235.71 m²
1.190.000 €
Charmantes Zinshaus in Badens Fußgängerzone
12.10.2024
Objekt Standort
A-2500 Baden
oder
Allgemeine Informationen
Objekt ID: 310389-
VergabeartKauf
-
Kaufpreis1.190.000 €
-
Wohnfläche235.71 m²
-
Nutzfläche458.39 m²
-
Grundfläche212 m²
-
Provision3% des Kaufpreises zzgl. 20% USt.
Freiflächen
-
Terrasse
Beschreibung
Charmantes Zinshaus in Badens Fußgängerzone
Zum Verkauf steht dieses charmante Zinshaus in der Fußgängerzone von Baden bei Wien. Dieses Altbaugebäude bietet sowohl Wohn- als auch Gewerbenutzungsmöglichkeiten.Allgemeine Informationen:
Das Zinshaus verfügt über ein Geschäftslokal im Erdgeschoss, eine Wohnung im Obergeschoss und eine weitere Wohnung im Dachgeschoss. Im Keller befindet sich ein ehemaliges Lokal, welches aktuell als Lagerfläche genutzt wird. Die beiden Wohnungen und das Geschäftslokal sind derzeit vermietet. Wohnungseigentum ist nicht begründet. Genauere Informationen zu den einzelnen Einheiten finden Sie bei den Unterpunkten Geschäftslokal, Top 1 und Top 2.
Im Jahr 2004 haben Umbauarbeiten im Haus stattgefunden sowie der DG-Ausbau. Die Immobilie verfügt über eine Gaszentralheizung aus dem Jahr 2006. Im Jahr 2013 wurde die Immobilie saniert (laut Eigentümerangabe).
Die Liegenschaft weist eine Grundfläche von 212 m² (laut Grundbuch) und eine Nutzfläche von ungefähr 458 m² auf.
Folgende Flächenwidmung und Bebauungsvorschriften liegen vor:
Flächenwidmung: BK - 6 WE
Bebauung: 60, g, 6-9
Ebenso machen wir darauf aufmerksam, dass sich die Liegenschaft in der Schutzzone befindet. Gerne stehen wir Ihnen diesbezüglich für genauere Informationen zur Verfügung.
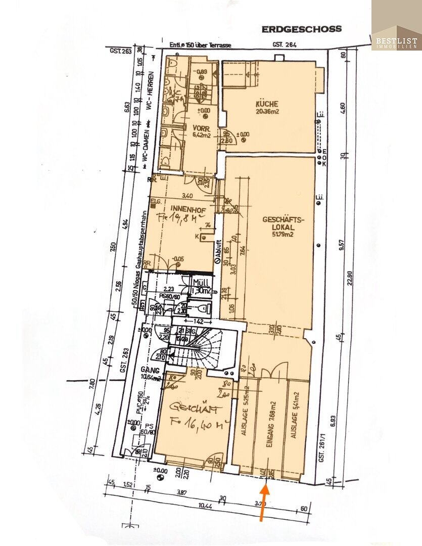
Geschäftslokal:
Das Geschäftslokal im Erdgeschoss bietet eine großzügige Nutzfläche von ca. 121 m². Diese erstreckt sich über drei geräumige Zimmer, einen Innenhof mit ansprechendem Glasdach, einen Vorraum und eine Toilettenanlage.
Zusätzlich verfügt das Geschäftslokal über einen einladenden Eingangsbereich (7,68 m²), eine attraktive Auslagenfläche (10,82 m²) und eine große Lagerfläche von ca. 64 m² im Keller.
Die derzeitigen Mieter werden die Geschäftsräume bis Ende des Jahres nutzen. Anschließend stehen die Räumlichkeiten im Erdgeschoss zur neuen Vermietung oder Eigennutzung zur Verfügung.
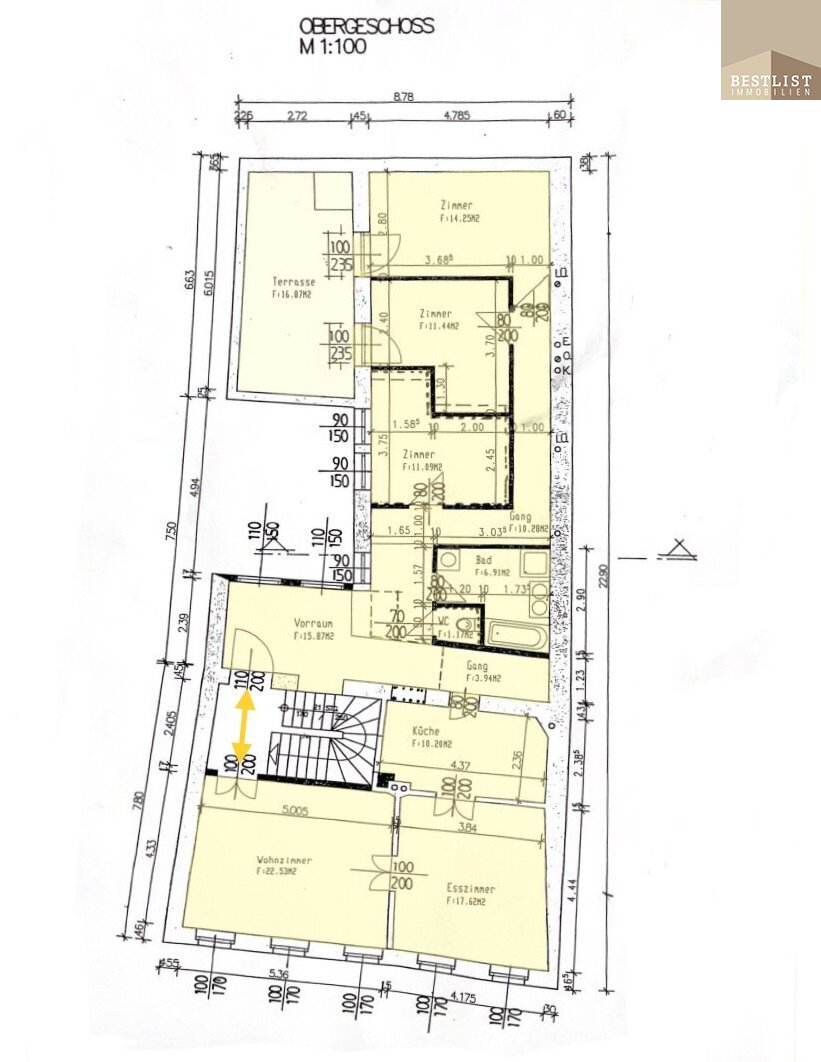
Top 1:
Diese großzügige Wohnung erstreckt sich über das gesamte Obergeschoss und bietet eine Wohnfläche von ca. 125 m². Die Fläche verteilt sich auf einen Vorraum, ein Wohnzimmer, ein Esszimmer, eine Küche, ein Bad, ein separates WC und drei weitere Zimmer. Zur Wohnung gehört auch eine großzügige Terrasse.
Beim Betreten der Wohnung gelangen Sie in den Vorraum, von dem aus mehrere Zimmer zentral erreichbar sind.
Das gut ausgestattete Badezimmer verfügt über eine Dusche, eine Badewanne, einen Waschtisch und einen Waschmaschinenanschluss. Das WC ist separat untergebracht.
Die drei Zimmer können vielfältig genutzt werden, beispielsweise als Schlafzimmer, Kinderzimmer oder Arbeitszimmer. Zwei der Zimmer bieten direkten Zugang zur Terrasse.
Von der Küche aus gelangen Sie in das Esszimmer, das wiederum ins Wohnzimmer führt. Wohn- und Esszimmer bieten durch ihre großzügige Fläche ausreichend Platz für eine komplette Wohn- und Esszimmermöblierung, wobei noch genügend Freiraum verbleibt.
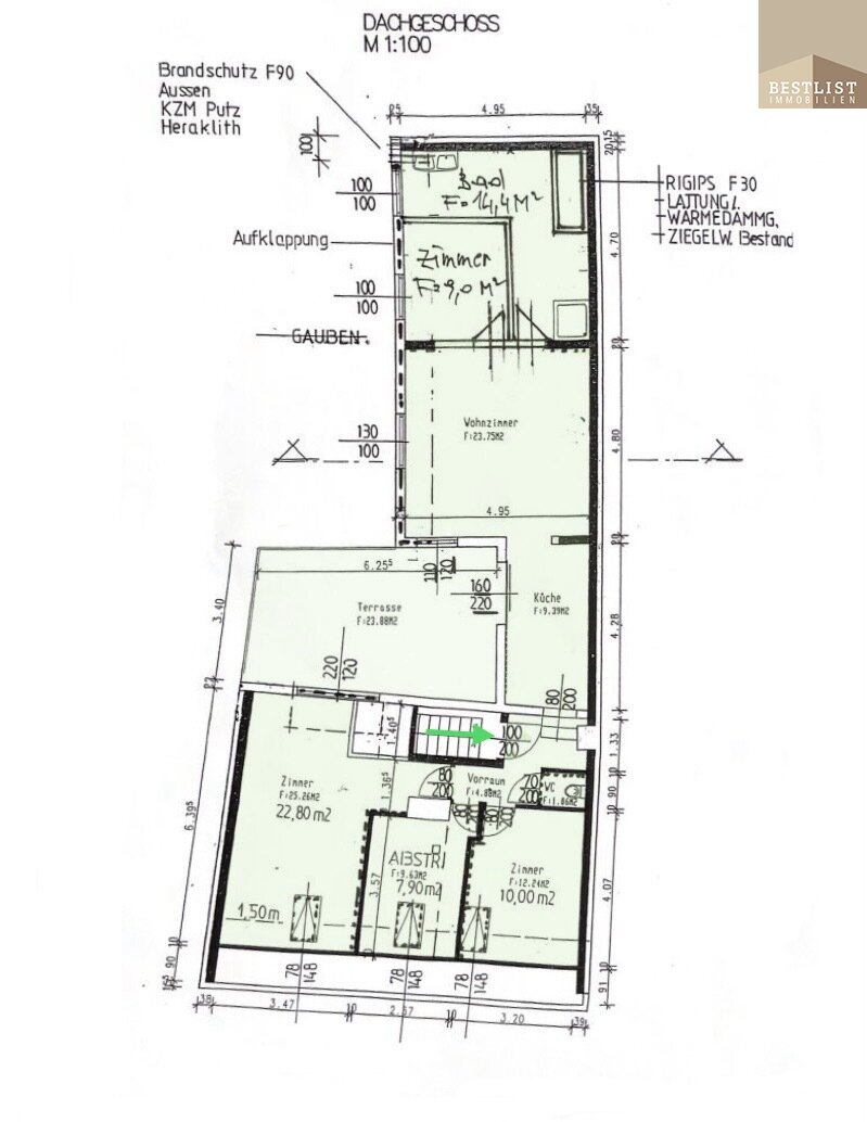
Top 2:
Diese Wohnung befindet sich im Dachgeschoss und verfügt über eine ca. 23 m2 große Terrasse. Die Wohnung hat eine Wohnfläche von ca. 110 m². Die Fläche verteilt sich auf einen Vorraum, ein Wohn-/Esszimmer, eine Küche, ein Bad, ein WC, einen Abstellraum und vier weitere Räume, die vielseitig genutzt werden können.
Beim Betreten der Wohnung gelangt man in den Vorraum, von dem aus mehrere Räume zentral zugänglich sind. Rechts befinden sich zwei Schlafzimmer und ein Abstellraum. Auf der linken Seite befindet sich die Küche, von der aus man in den großzügigen Wohn-/Essbereich gelangt. Von hier aus gelangt man in das Bad und ein weiteres Zimmer.
Das derzeitige Jahreseinkommen (netto) beträgt € 38.472,-, woraus sich eine Bruttoanfangsrendite von 3,2 % ergibt. (laut Eigentümerangaben).
Unser nachhaltiger Denkansatz sieht auch die Vermeidung von unnötigen Ausdrucken in Papierform vor, daher geben Sie uns Bescheid, ob Sie schriftliche Unterlagen ausgehändigt haben möchten oder ob wir diese einfach per Mail an Sie senden sollen. Wir richten uns gerne nach Ihren Wünschen!
Ulrike List / Geschäftsführung
Rechtlicher Hinweis:
BESTLIST Immobilien ist eine Marke der Friends Immobilien List GmbH.
Die Vermarktung erfolgt im Namen und auf Rechnung der Friends Immobilien List GmbH,
FN 293044y, 2500 Baden, Vöslauer Straße 2, 2352 Gumpoldskirchen, Wiener Straße 11.
Wir weisen darauf hin, dass zwischen dem Vermittler und dem zu vermittelnden Dritten ein familiäres oder wirtschaftliches Naheverhältnis besteht.
Der Vermittler ist als Doppelmakler tätig.Infrastruktur / EntfernungenGesundheitArzt <500mApotheke <500mKlinik <1.000mKrankenhaus <1.500mKinder & SchulenSchule <500mKindergarten <500mHöhere Schule <8.500mUniversität <10.000mNahversorgungSupermarkt <500mBäckerei <500mEinkaufszentrum <5.000mSonstigeBank <500mGeldautomat <500mPolizei <500mPost <500mVerkehrBus <500mBahnhof <500mAutobahnanschluss <4.000mStraßenbahn <500mFlughafen <5.000mAngaben Entfernung Luftlinie / Quelle: OpenStreetMap

Ulrike List
Friends Immobilien Dienstleistungs GmbH & Co KG
anfrage@bestlist.immoEnergie/Heizung
Befeuerung: Gas
HWB (kWh/m²/Jahr): 86
HWB Energieklasse: C
fGEE: 1.5
fGEE Energieklasse: C